300 000 $
2 941  $/м²
пер. Лук'яновський, 2
торговое помещение, помещение свободного назначения, производственное помещение, склад, помещение для оказания услуг, офисное помещение, банковское помещение
102 м²
сегодня
3 мес. назад
12 (сегодня 0, вчера 0)
Описание
Продається комерційне приміщення в Liberty Residence

Основні характеристики приміщення:

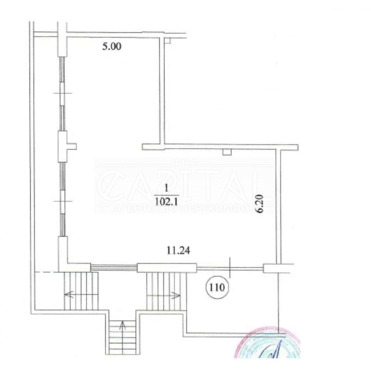
Загальна площа: 102.1 м².
Розташування: 1-й поверх 5-поверхової фасадної будівлі.
Тип приміщення: офісне приміщення №110 (підходить для різних видів бізнесу).

Переваги приміщення:
- Фасадне розташування, яке забезпечує чудову видимість і постійний потік клієнтів.
- Великі панорамні вікна, що роблять приміщення світлим і комфортним.
- Підходить для різних видів бізнесу: стоматологічної клініки, салону краси, пекарні, кав’ярні, офісу, шоуруму, медичного центру та інших проєктів.
- Просторе планування, яке дозволяє організувати зону ресепшн, робочі місця, кабінети та зони для клієнтів.

Про комплекс Liberty Residence:
- Знаходиться у престижній та зручній локації.
- Забезпечений охороною та відеоспостереженням, що гарантує безпеку.
- Сучасний житловий комплекс, який поєднує комфортне проживання та комерційну інфраструктуру.
- Наявність паркувальних місць для клієнтів та співробітників.

Додаткова інформація:
- Розвинена інфраструктура навколо комплексу: ресторани, магазини, банки, зручна транспортна розв’язка.
- Можливість зробити ремонт і перепланування під конкретні потреби бізнесу.
- Комплекс виконаний у сучасному архітектурному стилі, що підкреслює його престижність.
- Ідеальний вибір для тих, хто шукає готове комерційне приміщення в активно розвиваючому районі.

Звертайтеся до нас для отримання додаткової інформації або організації перегляду!

A21979
Детали
Объект коммерческой недвижимости, Класс A, Помещение в жилом здании, Готовое здание, Банковское помещение, Офисное помещение, Помещение для оказания услуг, Склад, Производственное помещение, Помещение свободного назначения, Торговое помещение. Объект на 1 этаже, В здании 5 этажей. В помещении 2 комнаты. Безбарьерность: вход в дом на уровне земли, дверные проемы в доме шириной более 0.9 м. Комиссия за услуги 5 %
THE Capital
Верифицированный профиль
PRO аккаунт
Професійний акаунт
Platinum partner
2
Года опыта
8
Месяцев на сайте
Активных объявлений 553
Эксклюзивных объектов 0
Рекламная активность 22622
Последний визит на сайт сегодня
Рекомендовать
Адрес
Киев, пер. Лук'яновський, 2, Шевченковский р-н
Ваша жалоба принята!
Выберите способ подтверждения
Чтобы ваша рекомендация была засчитана, подтвердите свою личность
* Личные данные не будут отображаться на сайте и будут служить только для подтверждения личности.
Как верифицироваться через Дію?
Считайте QR-код сканером в приложении Действие и подтвердите авторизацию Действие.
QR-код будет действителен еще 02:00
Как верифицироваться через Bankid?
Верификация BankID откроется в новом окне. Если страница верификации не открылась, значит окно было заблокировано вашим браузером.
Чтобы разрешить открытие окна, выполните следующие шаги:

1. Проверьте адресную строку браузера на наличие сообщения об ошибке или значка блокировки. Нажмите на него.
2. Если у вас установлен блокировщик всплывающих окон, временно отключите его для этого сайта.
3. Проверьте настройки вашего браузера и убедитесь, что блокировка всплывающих окон отключена или настроена на разрешение открытия данного окна.

Если проблема остается нерешенной, свяжитесь с нашей службой поддержки.
Как верифицироваться через Дію?
Верификация Дія откроется в новом окне. Если страница верификации не открылась, значит окно было заблокировано вашим браузером.
Чтобы разрешить открытие окна, выполните следующие шаги:

1. Проверьте адресную строку браузера на наличие сообщения об ошибке или значка блокировки. Нажмите на него.
2. Если у вас установлен блокировщик всплывающих окон, временно отключите его для этого сайта.
3. Проверьте настройки вашего браузера и убедитесь, что блокировка всплывающих окон отключена или настроена на разрешение открытия данного окна.

Если проблема остается нерешенной, свяжитесь с нашей службой поддержки.
Поздравляем!
Рекомендация засчитана!
В скором времени рекомендация появится на странице риелтора.
Рекомендация не засчитана.
Вы уже оставляли рекомендацию данному риелтору.
В пропозиції є незбережені дані.