580 000 $
1 933
$/м²
Севастопольская ул., 7/13
торговое помещение
300 м²
3 нед. назад
4 мес. назад
14 (сегодня 0,
вчера 0)
Описание
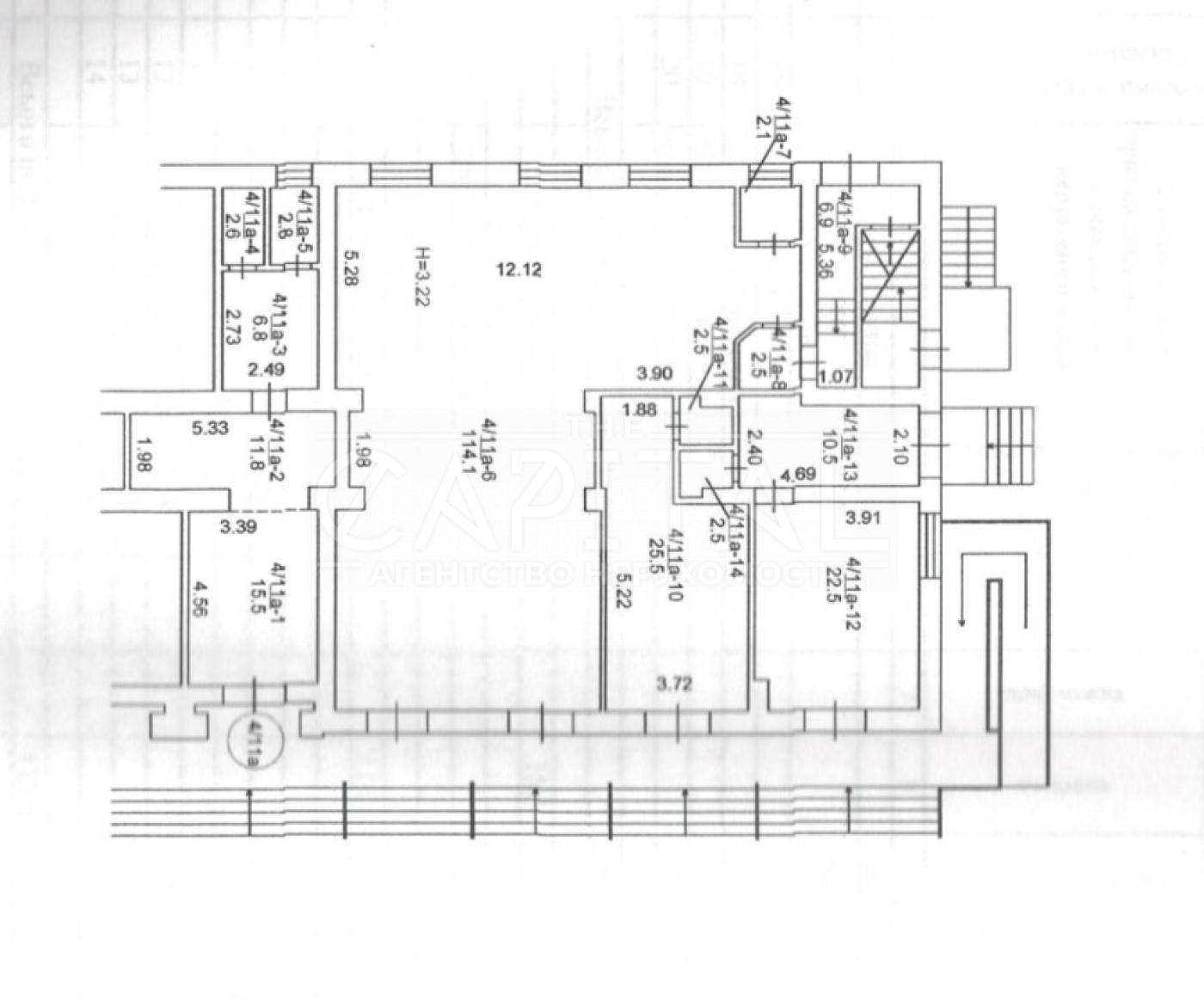
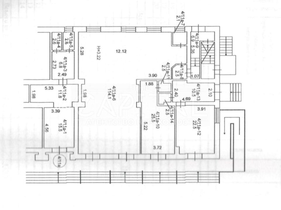
Продаж фасадного приміщення, 1-й поверх, 300 м²
Пропонується до продажу комерційне приміщення загальною площею 300 м² на першому поверсі фасадної будівлі.
Локація з активним пішохідним і автомобільним трафіком — ідеально підходить для інвестиції.
Основні характеристики:
• Площа: 300 м²
• Фасадний вхід і великі вітрини
• Перший поверх — зручний доступ для клієнтів
• Чотири надійні орендарі, стабільний орендний дохід
• Сучасний ремонт і всі необхідні комунікації
Приміщення ідеально підходить для інвестора, який шукає готовий дохідний актив із перевіреними орендарями.
#A22981
Пропонується до продажу комерційне приміщення загальною площею 300 м² на першому поверсі фасадної будівлі.
Локація з активним пішохідним і автомобільним трафіком — ідеально підходить для інвестиції.
Основні характеристики:
• Площа: 300 м²
• Фасадний вхід і великі вітрини
• Перший поверх — зручний доступ для клієнтів
• Чотири надійні орендарі, стабільний орендний дохід
• Сучасний ремонт і всі необхідні комунікації
Приміщення ідеально підходить для інвестора, який шукає готовий дохідний актив із перевіреними орендарями.
#A22981
Детали
Объект коммерческой недвижимости, Помещение в жилом здании, Готовое здание, Торговое помещение. Объект на 1 этаже, В здании 5 этажей. В помещении 4 комнаты. Комиссия за услуги 5 %














