466 000 $
1 958  $/м²
торговое помещение, помещение свободного назначения, помещение для оказания услуг, офисное помещение
238 м²
2013 год постройки
2 дня назад
3 мес. назад
19 (сегодня 0, вчера 0)
Описание
Продаж фасадного комерційного приміщення.
Адреса: вул. Воздвиженська, 48, Подільський район, Київ

Пропонується до продажу:
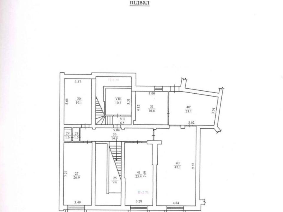
перший поверх - 53 м2 - фасад зі своїм входом
цокольний поверх - 185,8 м2 - просторе цокольне комерційне приміщення з вікнами

Ідеальне рішення для інвесторів та бізнесу, який цінує локацію, статус та зручність.

Основні характеристики:
• Загальна площа: 238,8 м²
• Поверх: перший та цоколь (є фасадний вхід з вулиці Воздвиженська)
• Висота стелі: 3,3 м
• Кількість входів: 2 входи
• Наявність мокрих точок: 2

Переваги:
• Приміщення має гнучке планування та підходить для будь-якого виду діяльності: склад, магазин, торговий зал тощо
• Можливість об'єднання - є ще на продаж 171,9 м2 цоколю.
• Додатково можна придбати приміщення на першому поверсі під стріт-рітейл, магазин, офіс, кав'ярню і т.п.

Локація:
Воздвиженка - один із найпопулярніших кварталів Києва, що поєднує історичну архітектуру, сучасну інфраструктуру та статусність. Поруч ресторани, галереї, бутики, зручна транспортна доступність.

Це приміщення стане ідеальним вибором як для власного бізнесу, так і для інвестиції з подальшою здачею в оренду.

Додаткова інформація - за запитом.
Запрошуємо на перегляд разом з агенцією THE Capital.

#A26358 Продажа / Офис / ул. Воздвиженська, Поділ, Київ
Детали
Объект коммерческой недвижимости, Класс B, Помещение в жилом здании, Готовое здание, Офисное помещение, Помещение для оказания услуг, Помещение свободного назначения, Торговое помещение. Объект на 0, 1 этажах, В здании 5 этажей. Здание построено в 2013 году. Комиссия за услуги 3 %
THE Capital
Верифицированный профиль
Silver partner
3
Года опыта
3
Года на сайте
Активных объявлений 15
Эксклюзивных объектов 0
Рекламная активность 6408
Последний визит на сайт 2 дня назад
Рекомендовать
Адрес
Ваша жалоба принята!
Выберите способ подтверждения
Чтобы ваша рекомендация была засчитана, подтвердите свою личность
* Личные данные не будут отображаться на сайте и будут служить только для подтверждения личности.
Как верифицироваться через Дію?
Считайте QR-код сканером в приложении Действие и подтвердите авторизацию Действие.
QR-код будет действителен еще 02:00
Как верифицироваться через Bankid?
Верификация BankID откроется в новом окне. Если страница верификации не открылась, значит окно было заблокировано вашим браузером.
Чтобы разрешить открытие окна, выполните следующие шаги:

1. Проверьте адресную строку браузера на наличие сообщения об ошибке или значка блокировки. Нажмите на него.
2. Если у вас установлен блокировщик всплывающих окон, временно отключите его для этого сайта.
3. Проверьте настройки вашего браузера и убедитесь, что блокировка всплывающих окон отключена или настроена на разрешение открытия данного окна.

Если проблема остается нерешенной, свяжитесь с нашей службой поддержки.
Как верифицироваться через Дію?
Верификация Дія откроется в новом окне. Если страница верификации не открылась, значит окно было заблокировано вашим браузером.
Чтобы разрешить открытие окна, выполните следующие шаги:

1. Проверьте адресную строку браузера на наличие сообщения об ошибке или значка блокировки. Нажмите на него.
2. Если у вас установлен блокировщик всплывающих окон, временно отключите его для этого сайта.
3. Проверьте настройки вашего браузера и убедитесь, что блокировка всплывающих окон отключена или настроена на разрешение открытия данного окна.

Если проблема остается нерешенной, свяжитесь с нашей службой поддержки.
Поздравляем!
Рекомендация засчитана!
В скором времени рекомендация появится на странице риелтора.
Рекомендация не засчитана.
Вы уже оставляли рекомендацию данному риелтору.
В пропозиції є незбережені дані.