400 000 $
1 667  $/м²
помещение свободного назначения
240 м²
2013 год постройки
2 дня назад
2 мес. назад
6 (сегодня 0, вчера 0)
Описание
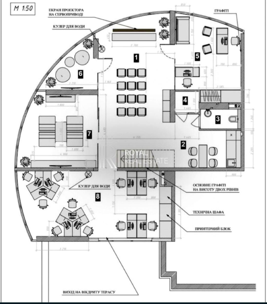
Продаж офісу з орендарем | 240 м² | ЖК «Новодеміївський»
вул. Лобановського, 150 | 18 поверх | панорамний вид

Пропонується на продаж сучасний двохрівневий офіс із чинним орендарем у житловому комплексі «Новодеміївський». Готовий інвестиційний об’єкт із стабільним грошовим потоком.

Основні характеристики:

Локація: Голосіївський район, вул. Лобановського, 150

ЖК: «Новодеміївський»

Площа: 240 м²

Поверх: 18

Планування: open-space + 5 окремих кабінетів

Стиль: Loft

Переваги об’єкта:

Панорамні вікна з видом на Київ

Два повноцінні рівні з автономним функціоналом

по 2 санвузли на кожному рівні

2 обладнані кухні

Балкон

Професійна система безпеки: броньовані двері, контроль доступу, авторизація за відбитком пальця

Система «Розумний дім»: відеоспостереження, сигналізація, контроль доступу

Автономна вентиляція, опалення та кондиціювання

Місткість:

Комфортно — до 20 робочих місць

Максимально — 30–35 посадкових місць

Інвестиційна привабливість:

Продаж з орендарем

Стабільний дохід

Висока ліквідність об’єкта

Попит на офіси такого формату в локації

Інфраструктура:

Розвинений район із зручним транспортним сполученням. Поруч кафе, ресторани, магазини, бізнес-центри. Зручне розташування для клієнтів і співробітників.

Ідеальний варіант для інвестора, який шукає готовий офісний актив із доходом.
Перегляд — за домовленістю.
RR16040
Детали
Объект коммерческой недвижимости, Помещение в жилом здании, Готовое здание, Помещение свободного назначения. Объект на 18 этаже, В здании 25 этажей. Здание построено в 2013 году. Комиссия за услуги 5 %
Royal Real Estate
Верифицированный профиль
7
Лет опыта
3
Верифицированные рекомендации
2
Года на сайте
Активных объявлений 347
Эксклюзивных объектов 0
Рекламная активность 23194
Последний визит на сайт сегодня
Рекомендовать
Адрес
Ваша жалоба принята!
Выберите способ подтверждения
Чтобы ваша рекомендация была засчитана, подтвердите свою личность
* Личные данные не будут отображаться на сайте и будут служить только для подтверждения личности.
Как верифицироваться через Дію?
Считайте QR-код сканером в приложении Действие и подтвердите авторизацию Действие.
QR-код будет действителен еще 02:00
Как верифицироваться через Bankid?
Верификация BankID откроется в новом окне. Если страница верификации не открылась, значит окно было заблокировано вашим браузером.
Чтобы разрешить открытие окна, выполните следующие шаги:

1. Проверьте адресную строку браузера на наличие сообщения об ошибке или значка блокировки. Нажмите на него.
2. Если у вас установлен блокировщик всплывающих окон, временно отключите его для этого сайта.
3. Проверьте настройки вашего браузера и убедитесь, что блокировка всплывающих окон отключена или настроена на разрешение открытия данного окна.

Если проблема остается нерешенной, свяжитесь с нашей службой поддержки.
Как верифицироваться через Дію?
Верификация Дія откроется в новом окне. Если страница верификации не открылась, значит окно было заблокировано вашим браузером.
Чтобы разрешить открытие окна, выполните следующие шаги:

1. Проверьте адресную строку браузера на наличие сообщения об ошибке или значка блокировки. Нажмите на него.
2. Если у вас установлен блокировщик всплывающих окон, временно отключите его для этого сайта.
3. Проверьте настройки вашего браузера и убедитесь, что блокировка всплывающих окон отключена или настроена на разрешение открытия данного окна.

Если проблема остается нерешенной, свяжитесь с нашей службой поддержки.
Поздравляем!
Рекомендация засчитана!
В скором времени рекомендация появится на странице риелтора.
Рекомендация не засчитана.
Вы уже оставляли рекомендацию данному риелтору.
В пропозиції є незбережені дані.