447 000 $
3 000  $/м²
торговое помещение, помещение свободного назначения, помещение для оказания услуг, офисное помещение, банковское помещение
149 м²
2 нед. назад
1 мес. назад
0 (сегодня 0, вчера 0)
Описание
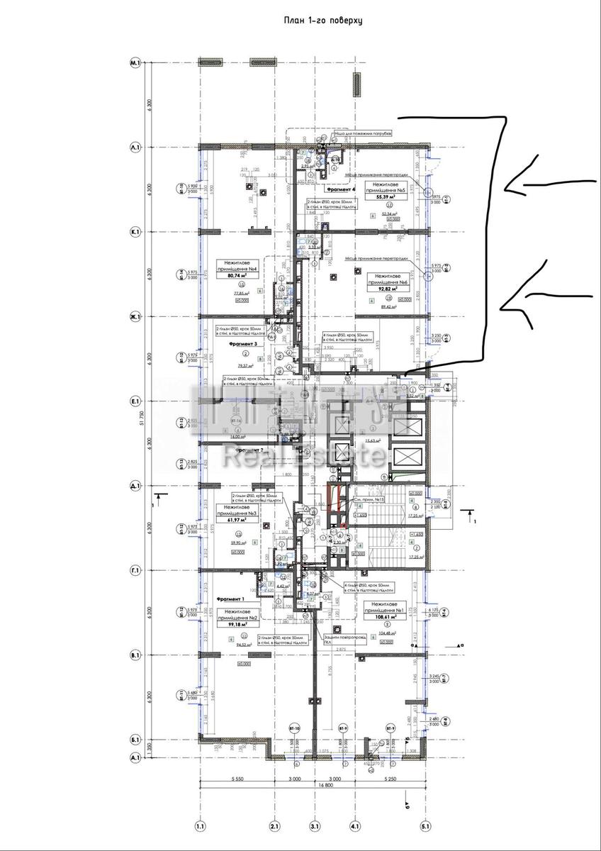
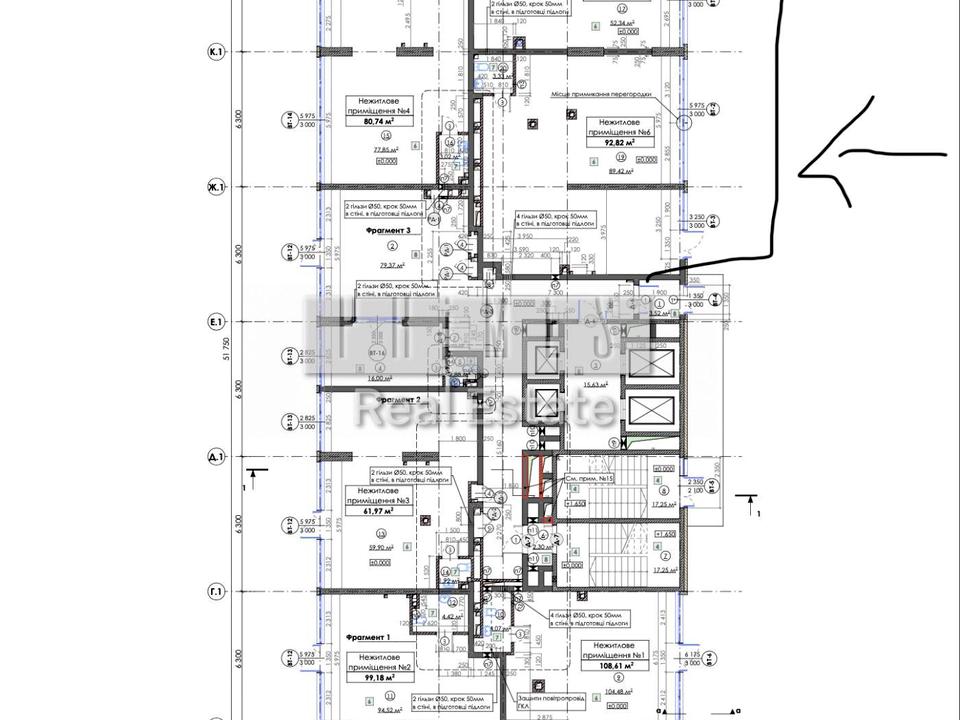
Пропонується фасадне комерційне приміщення у престижному ЖК Nordica в центрі Києва, район Липки.
Об’єкт розташований у Будинку 1, секція 1, на 1 поверсі, з фасадними вікнами на Липки та панорамним склінням у підлогу, що забезпечує відмінну видимість, максимум природного світла та презентабельний вигляд для будь-якого бізнесу.
У продажу два приміщення: офіс №5 площею 56,49 м² та офіс №6 площею 92,82 м².
Приміщення №6 є єдиним із додатковим вентиляційним каналом, що робить його ідеальним варіантом для кафе, кав’ярні або іншого формату закладу громадського харчування. Приміщення підходять для кафе, салону краси, шоуруму, медичного кабінету, офісу компанії або будь-якого іншого виду діяльності. Престижна локація, активний пішохідний та автомобільний трафік, фасадне розміщення, вільне планування та інвестиційна привабливість роблять цей об’єкт відмінним вибором як для власного бізнесу, так і для подальшої здачі в оренду
Є відео
Запрошую на перегляд.
#34315
Детали
Объект коммерческой недвижимости, Класс A, Часть здания, Готовое здание, Банковское помещение, Офисное помещение, Помещение для оказания услуг, Помещение свободного назначения, Торговое помещение. Объект на 1 этаже, В здании 21 этаж. В помещении 3 комнаты. Безбарьерность: парковочные места для людей з инвалидностью. Комиссия за услуги 3 %
PRIMES
Верифицированный профиль
2
Года опыта
6
Месяцев на сайте
Активных объявлений 275
Эксклюзивных объектов 0
Рекламная активность 0
Последний визит на сайт вчера
Рекомендовать
Адрес
Ваша жалоба принята!
Выберите способ подтверждения
Чтобы ваша рекомендация была засчитана, подтвердите свою личность
* Личные данные не будут отображаться на сайте и будут служить только для подтверждения личности.
Как верифицироваться через Дію?
Считайте QR-код сканером в приложении Действие и подтвердите авторизацию Действие.
QR-код будет действителен еще 02:00
Как верифицироваться через Bankid?
Верификация BankID откроется в новом окне. Если страница верификации не открылась, значит окно было заблокировано вашим браузером.
Чтобы разрешить открытие окна, выполните следующие шаги:

1. Проверьте адресную строку браузера на наличие сообщения об ошибке или значка блокировки. Нажмите на него.
2. Если у вас установлен блокировщик всплывающих окон, временно отключите его для этого сайта.
3. Проверьте настройки вашего браузера и убедитесь, что блокировка всплывающих окон отключена или настроена на разрешение открытия данного окна.

Если проблема остается нерешенной, свяжитесь с нашей службой поддержки.
Как верифицироваться через Дію?
Верификация Дія откроется в новом окне. Если страница верификации не открылась, значит окно было заблокировано вашим браузером.
Чтобы разрешить открытие окна, выполните следующие шаги:

1. Проверьте адресную строку браузера на наличие сообщения об ошибке или значка блокировки. Нажмите на него.
2. Если у вас установлен блокировщик всплывающих окон, временно отключите его для этого сайта.
3. Проверьте настройки вашего браузера и убедитесь, что блокировка всплывающих окон отключена или настроена на разрешение открытия данного окна.

Если проблема остается нерешенной, свяжитесь с нашей службой поддержки.
Поздравляем!
Рекомендация засчитана!
В скором времени рекомендация появится на странице риелтора.
Рекомендация не засчитана.
Вы уже оставляли рекомендацию данному риелтору.
В пропозиції є незбережені дані.