3 827 500 $
2 500  $/м²
офисное помещение
1531 м²
2007 год постройки
2 нед. назад
1 мес. назад
2 (сегодня 0, вчера 0)
Описание
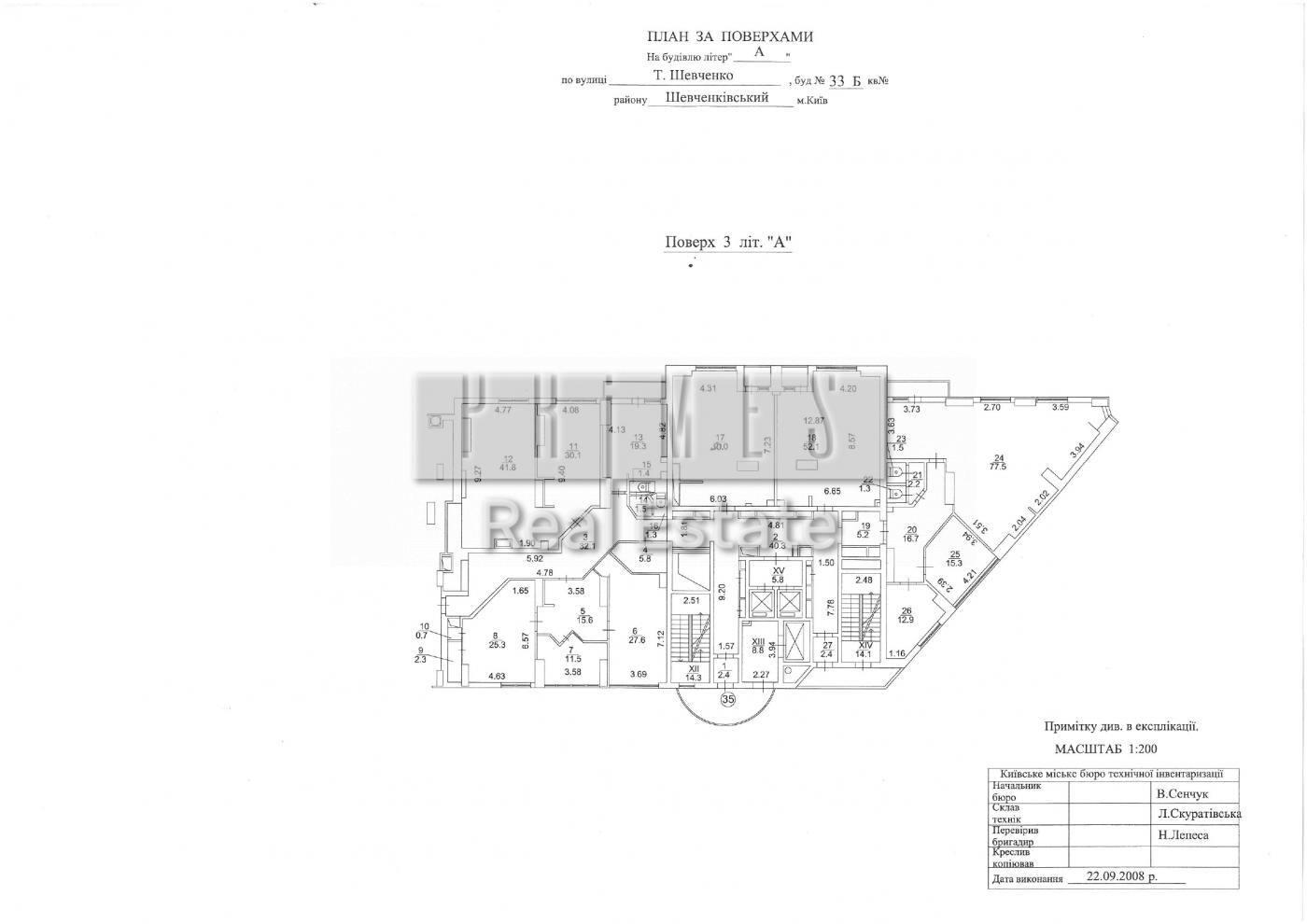
Опис будівлі:
• Введення в експлуатацію в 2008 році
• Загальна площа: 14 434 м2, 25 поверхів
• Офісна площа: 7 868 м2
• Площа типового поверху: 550 м2
• Коефіцієнт площ загального користування: 1,15
• «Чиста» висота в приміщеннях: 2,8 м
• 2 ліфти «KONE» (8 чоловік)
• 2-рівневий підземний критий паркінг 52 п/м

Розташування: бул. Т. Шевченка, 33б, м.Київ
• До ст.метро «Університет»: 7 хв. пішки (650 м)
• До вул. Хрещатик: 1,7 км
Будівля розташована у центральному діловому районі.
У пішохідній досяжності - ресторани, готелі 3-5*
Поверхи на продаж:
2 й поверх: 335 м2
3 й поверх: 503 м2
5-6 поверхи: 550 м2
24-й поверх: 143 м2

Базові умови продажу (без податків):
• $2 500/м2

За більш детальною інформацією та на перегляд звертайтесь в особисті повідомлення.
#34450
Детали
Объект коммерческой недвижимости, Класс A, Помещение в офисном центре, Готовое здание, Офисное помещение. Объект на 2, 3, 6, 24 этажах, В здании 25 этажей. Здание построено в 2007 году. В помещении 6 комнат или больше. Безбарьерность: парковочные места для людей з инвалидностью. Комиссия за услуги 2 %
PRIMES
Верифицированный профиль
2
Года опыта
6
Месяцев на сайте
Активных объявлений 275
Эксклюзивных объектов 0
Рекламная активность 0
Последний визит на сайт 2 дня назад
Рекомендовать
Адрес
Ваша жалоба принята!
Выберите способ подтверждения
Чтобы ваша рекомендация была засчитана, подтвердите свою личность
* Личные данные не будут отображаться на сайте и будут служить только для подтверждения личности.
Как верифицироваться через Дію?
Считайте QR-код сканером в приложении Действие и подтвердите авторизацию Действие.
QR-код будет действителен еще 02:00
Как верифицироваться через Bankid?
Верификация BankID откроется в новом окне. Если страница верификации не открылась, значит окно было заблокировано вашим браузером.
Чтобы разрешить открытие окна, выполните следующие шаги:

1. Проверьте адресную строку браузера на наличие сообщения об ошибке или значка блокировки. Нажмите на него.
2. Если у вас установлен блокировщик всплывающих окон, временно отключите его для этого сайта.
3. Проверьте настройки вашего браузера и убедитесь, что блокировка всплывающих окон отключена или настроена на разрешение открытия данного окна.

Если проблема остается нерешенной, свяжитесь с нашей службой поддержки.
Как верифицироваться через Дію?
Верификация Дія откроется в новом окне. Если страница верификации не открылась, значит окно было заблокировано вашим браузером.
Чтобы разрешить открытие окна, выполните следующие шаги:

1. Проверьте адресную строку браузера на наличие сообщения об ошибке или значка блокировки. Нажмите на него.
2. Если у вас установлен блокировщик всплывающих окон, временно отключите его для этого сайта.
3. Проверьте настройки вашего браузера и убедитесь, что блокировка всплывающих окон отключена или настроена на разрешение открытия данного окна.

Если проблема остается нерешенной, свяжитесь с нашей службой поддержки.
Поздравляем!
Рекомендация засчитана!
В скором времени рекомендация появится на странице риелтора.
Рекомендация не засчитана.
Вы уже оставляли рекомендацию данному риелтору.
В пропозиції є незбережені дані.