200 200 $
1 100  $/м²
торговое помещение, помещение свободного назначения, производственное помещение, склад, помещение для оказания услуг, офисное помещение, банковское помещение
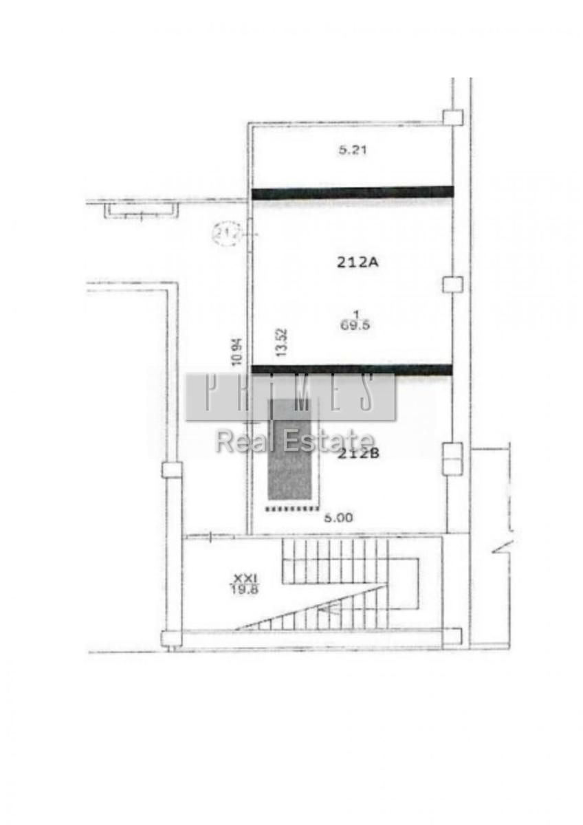
182 м²
1 мес. назад
1 мес. назад
3 (сегодня 0, вчера 0)
Описание
#34875

Продаж нежитл.приміщ. 182 м2, ст.м.Позняки, БЦ Паралель
Приміщення розташоване на 2-му поверсі Бізнес центра Паралель.
Вхід загальний чарез охоронця – спостерегача.
БЦ має свій потужний генератор ! Завжди є світло, тепло, вода гаряча та холодна !
БЦ розташований на території заселеного ЖК, з високою щільністю населення. Ст.м .Позняки – 70 м. Поруч офіси, банки, термінали – банкомати, супермаркети, поштові відділення. Кав’ярні та інші заклади громадського харчування.

На даний час приміщення винаймають орендарі. Фітнес клуб.
Приміщення розділено на декілька кімнат: велика спортивна зала, масажний кабінет, душові, туалет, роздягальні.
Кондиціювання, Відеоспостереження, Пожежна сигналізація, Серверна кімната, кабельна мережа інтернету.
Детали
Объект коммерческой недвижимости, Помещение в офисном центре, Готовое здание, Банковское помещение, Офисное помещение, Помещение для оказания услуг, Склад, Производственное помещение, Помещение свободного назначения, Торговое помещение. Объект на 2 этаже. Комиссия за услуги 5 %
PRIMES
Верифицированный профиль
2
Месяца опыта
2
Месяца на сайте
Активных объявлений 67
Эксклюзивных объектов 0
Рекламная активность 149
Последний визит на сайт вчера
Рекомендовать
Адрес
Ваша жалоба принята!
Выберите способ подтверждения
Чтобы ваша рекомендация была засчитана, подтвердите свою личность
* Личные данные не будут отображаться на сайте и будут служить только для подтверждения личности.
Как верифицироваться через Дію?
Считайте QR-код сканером в приложении Действие и подтвердите авторизацию Действие.
QR-код будет действителен еще 02:00
Как верифицироваться через Bankid?
Верификация BankID откроется в новом окне. Если страница верификации не открылась, значит окно было заблокировано вашим браузером.
Чтобы разрешить открытие окна, выполните следующие шаги:

1. Проверьте адресную строку браузера на наличие сообщения об ошибке или значка блокировки. Нажмите на него.
2. Если у вас установлен блокировщик всплывающих окон, временно отключите его для этого сайта.
3. Проверьте настройки вашего браузера и убедитесь, что блокировка всплывающих окон отключена или настроена на разрешение открытия данного окна.

Если проблема остается нерешенной, свяжитесь с нашей службой поддержки.
Как верифицироваться через Дію?
Верификация Дія откроется в новом окне. Если страница верификации не открылась, значит окно было заблокировано вашим браузером.
Чтобы разрешить открытие окна, выполните следующие шаги:

1. Проверьте адресную строку браузера на наличие сообщения об ошибке или значка блокировки. Нажмите на него.
2. Если у вас установлен блокировщик всплывающих окон, временно отключите его для этого сайта.
3. Проверьте настройки вашего браузера и убедитесь, что блокировка всплывающих окон отключена или настроена на разрешение открытия данного окна.

Если проблема остается нерешенной, свяжитесь с нашей службой поддержки.
Поздравляем!
Рекомендация засчитана!
В скором времени рекомендация появится на странице риелтора.
Рекомендация не засчитана.
Вы уже оставляли рекомендацию данному риелтору.
В пропозиції є незбережені дані.