415 000 $
1 812  $/м²
помещение свободного назначения
229 м²
1 мес. назад
1 мес. назад
0 (сегодня 0, вчера 0)
Описание
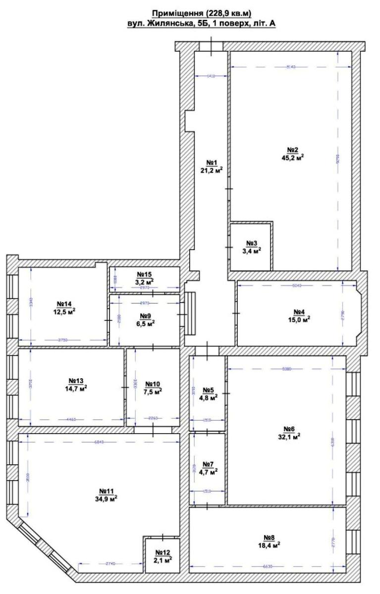
Пропонується просторе комерційне приміщення площею 228,9 м², розташоване у центральній частині Київ за адресою вул. Жилянська, 5Б.
Локація відзначається зручною транспортною доступністю — лише 5 хвилин пішки до станції метро Олімпійська станція метро.

Приміщення розташоване на 1 поверсі, що забезпечує легкий доступ для співробітників і клієнтів. Простір світлий та функціональний, добре підходить для організації офісу, творчої студії або хостелу. Планування дозволяє ефективно організувати робочі зони та адаптувати приміщення під потреби конкретного бізнесу.
Стан приміщення — потребує косметичного ремонту.

Основні характеристики:
• загальна площа — 228,9 м²
• 1 поверх
• електрична потужність — 18 кВт
• без паркінгу

Завдяки центральному розташуванню та зручній близькості до метро, приміщення стане практичним рішенням для бізнесу, що потребує доступної та помітної локації в центрі міста.
#A28501
Детали
Объект коммерческой недвижимости, Отдельно стоящее здание, Готовое здание, Помещение свободного назначения. Объект на 1 этаже, В здании 5 этажей. Комиссия за услуги 3 %
THE Capital
Верифицированный профиль
3
Года опыта
2
Года на сайте
Активных объявлений 694
Эксклюзивных объектов 0
Рекламная активность 285
Последний визит на сайт вчера
Рекомендовать
Адрес
Ваша жалоба принята!
Выберите способ подтверждения
Чтобы ваша рекомендация была засчитана, подтвердите свою личность
* Личные данные не будут отображаться на сайте и будут служить только для подтверждения личности.
Как верифицироваться через Дію?
Считайте QR-код сканером в приложении Действие и подтвердите авторизацию Действие.
QR-код будет действителен еще 02:00
Как верифицироваться через Bankid?
Верификация BankID откроется в новом окне. Если страница верификации не открылась, значит окно было заблокировано вашим браузером.
Чтобы разрешить открытие окна, выполните следующие шаги:

1. Проверьте адресную строку браузера на наличие сообщения об ошибке или значка блокировки. Нажмите на него.
2. Если у вас установлен блокировщик всплывающих окон, временно отключите его для этого сайта.
3. Проверьте настройки вашего браузера и убедитесь, что блокировка всплывающих окон отключена или настроена на разрешение открытия данного окна.

Если проблема остается нерешенной, свяжитесь с нашей службой поддержки.
Как верифицироваться через Дію?
Верификация Дія откроется в новом окне. Если страница верификации не открылась, значит окно было заблокировано вашим браузером.
Чтобы разрешить открытие окна, выполните следующие шаги:

1. Проверьте адресную строку браузера на наличие сообщения об ошибке или значка блокировки. Нажмите на него.
2. Если у вас установлен блокировщик всплывающих окон, временно отключите его для этого сайта.
3. Проверьте настройки вашего браузера и убедитесь, что блокировка всплывающих окон отключена или настроена на разрешение открытия данного окна.

Если проблема остается нерешенной, свяжитесь с нашей службой поддержки.
Поздравляем!
Рекомендация засчитана!
В скором времени рекомендация появится на странице риелтора.
Рекомендация не засчитана.
Вы уже оставляли рекомендацию данному риелтору.
В пропозиції є незбережені дані.