4 500 000 $
1 667  $/м²
торговое помещение, помещение свободного назначения, производственное помещение, склад, помещение для оказания услуг, офисное помещение, банковское помещение
2700 м²
1975 год постройки
1 мес. назад
1 мес. назад
5 (сегодня 0, вчера 1)
Описание
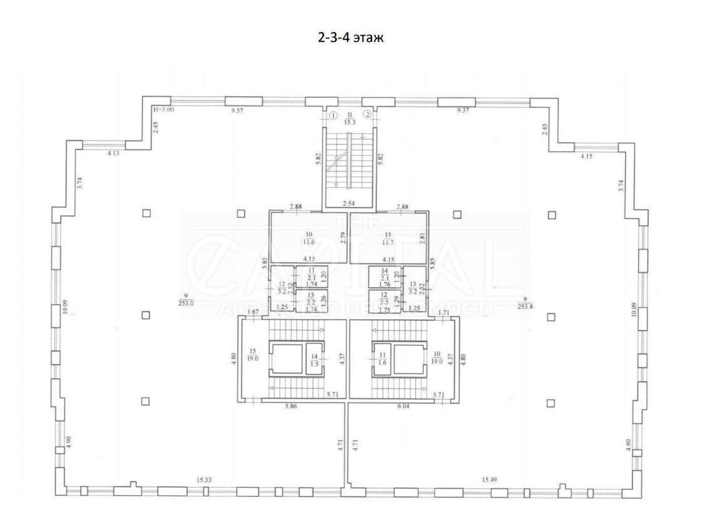
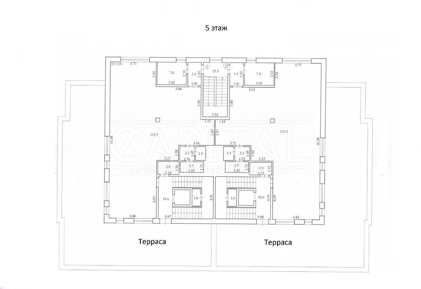
Продаж окремо розташованої офісно-торговельної будівлі, 5 поверхів, Київ

Пропонується в продаж сучасна окремо розташована будівля площею 2700 м² з терасою на п’ятому поверсі, ідеальна для корпоративного офісу, комерційного центру або змішаного бізнесу.

Основні характеристики:

Поверховість: 5

Загальна площа: 2700 м²

Планування: open-space, готові офісні приміщення з оздобленням

Стелі: 3,3 м на 1-му поверсі, 3 м на інших

Тераси на 5-му поверсі з панорамним видом на місто

Санвузли та зони загального користування повністю обладнані

Підведені всі комунікації

Інфраструктура та транспорт:

Відмінна транспортна розв’язка

15 хвилин пішки до метро «Деміївська»

Технічне оснащення:

2 газові котельні та 4 газових котли

2 ліфти OTIS

Система припливно-витяжної вентиляції та кондиціонування

Автоматична пожежна сигналізація

Відеоспостереження

Охоронна сигналізація

Централізоване водопостачання

Електропостачання: 90 кВт, можливе збільшення до 700 кВт (підстанція поруч)

Переваги:

Просторі, світлі офіси з open-space плануванням

Готовність до використання без додаткових вкладень

Панорамні тераси для відпочинку та зустрічей

Потужна інженерна база та енергонезалежність

Ідеально для IT-компанії, банку, медичного чи торгового центру

Цей об’єкт — чудова інвестиція або готовий простір для розвитку великого бізнесу в Голосіївському районі.

Код об’єкта: #315917343019
Детали
Объект коммерческой недвижимости, Класс A, Отдельно стоящее здание, Готовое здание, Банковское помещение, Офисное помещение, Помещение для оказания услуг, Склад, Производственное помещение, Помещение свободного назначения, Торговое помещение. Объект на 1, 2, 3, 4, 5 этажах, В здании 5 этажей. Здание построено в 1975 году. Помещение свободной планировки. Комиссия за услуги 2 %
THE Capital
Верифицированный профиль
10
Лет опыта
9
Лет на сайте
Активных объявлений 65
Эксклюзивных объектов 0
Рекламная активность 5100
Последний визит на сайт вчера
Рекомендовать
Адрес
Ваша жалоба принята!
Выберите способ подтверждения
Чтобы ваша рекомендация была засчитана, подтвердите свою личность
* Личные данные не будут отображаться на сайте и будут служить только для подтверждения личности.
Как верифицироваться через Дію?
Считайте QR-код сканером в приложении Действие и подтвердите авторизацию Действие.
QR-код будет действителен еще 02:00
Как верифицироваться через Bankid?
Верификация BankID откроется в новом окне. Если страница верификации не открылась, значит окно было заблокировано вашим браузером.
Чтобы разрешить открытие окна, выполните следующие шаги:

1. Проверьте адресную строку браузера на наличие сообщения об ошибке или значка блокировки. Нажмите на него.
2. Если у вас установлен блокировщик всплывающих окон, временно отключите его для этого сайта.
3. Проверьте настройки вашего браузера и убедитесь, что блокировка всплывающих окон отключена или настроена на разрешение открытия данного окна.

Если проблема остается нерешенной, свяжитесь с нашей службой поддержки.
Как верифицироваться через Дію?
Верификация Дія откроется в новом окне. Если страница верификации не открылась, значит окно было заблокировано вашим браузером.
Чтобы разрешить открытие окна, выполните следующие шаги:

1. Проверьте адресную строку браузера на наличие сообщения об ошибке или значка блокировки. Нажмите на него.
2. Если у вас установлен блокировщик всплывающих окон, временно отключите его для этого сайта.
3. Проверьте настройки вашего браузера и убедитесь, что блокировка всплывающих окон отключена или настроена на разрешение открытия данного окна.

Если проблема остается нерешенной, свяжитесь с нашей службой поддержки.
Поздравляем!
Рекомендация засчитана!
В скором времени рекомендация появится на странице риелтора.
Рекомендация не засчитана.
Вы уже оставляли рекомендацию данному риелтору.
В пропозиції є незбережені дані.