910 000 $
3 098  $/м²
торговое помещение
293.7 м²
2019 год постройки
1 нед. назад
2 нед. назад
1 (сегодня 0, вчера 0)
Описание
Продаж двоповерхового приміщення під комерційну діяльність в ЖК Delmar, вул. Драгомирова, 14а. Приміщення розташоване на фасаді першого поверху житлового будинку. До будинку прилягають комплекси преміум-сегмента, що дозволить власнику приміщення охопити не тільки аудиторію ЖК Delmar, а й аудиторію ЖК "Новопечерські Липки", ЖК "Підвисоцький та інших.

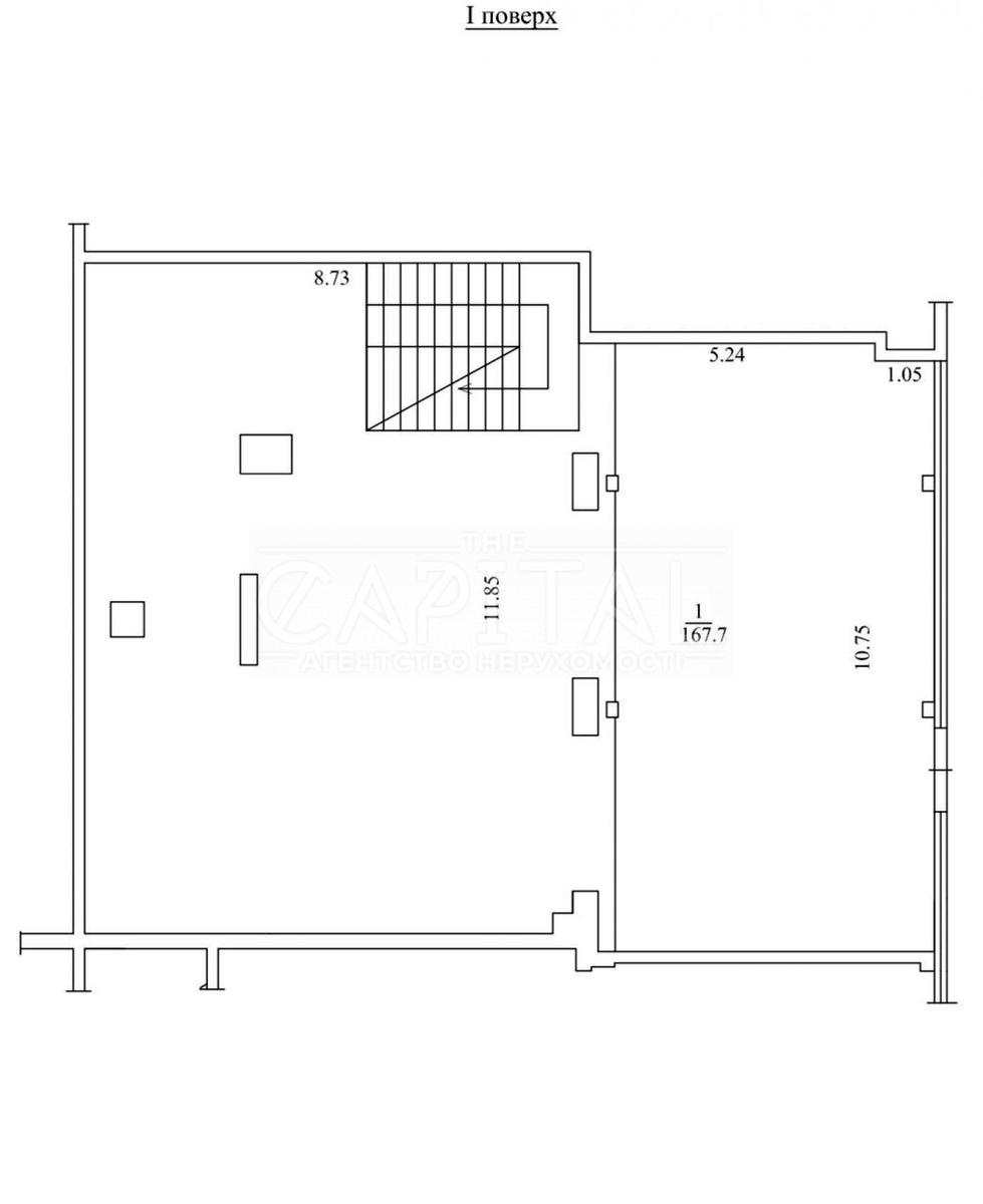
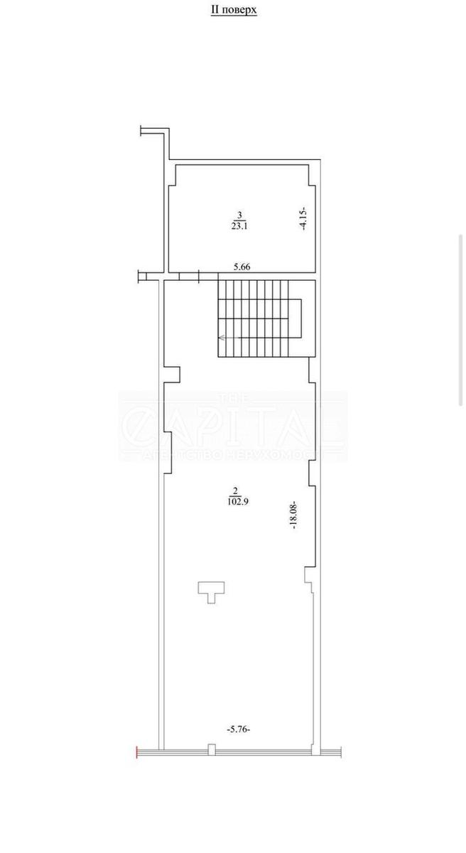
Приміщення має 2 поверхи та фасадний вхід з видом на внутрішній двір. Висота стелі - 3 метри.

1 поверх - 167.7 м2.

2 поверх - 125.1 м2.

Стан ремонту - після будівельників.

На території комплексу розвинена інфраструктура, магазини, ресторани і тд. В пішій доступності метро Дружби народів.

315917349315
Детали
Объект коммерческой недвижимости, Помещение в жилом здании, Готовое здание, Торговое помещение. В здании 30 этажей. Здание построено в 2019 году. Комиссия за услуги 5 %
THE Capital
Верифицированный профиль
PRO аккаунт
Професійний акаунт
Platinum partner
2
Года опыта
8
Месяцев на сайте
Активных объявлений 547
Эксклюзивных объектов 0
Рекламная активность 19458
Последний визит на сайт сегодня
Рекомендовать
Адрес
Ваша жалоба принята!
Выберите способ подтверждения
Чтобы ваша рекомендация была засчитана, подтвердите свою личность
* Личные данные не будут отображаться на сайте и будут служить только для подтверждения личности.
Как верифицироваться через Дію?
Считайте QR-код сканером в приложении Действие и подтвердите авторизацию Действие.
QR-код будет действителен еще 02:00
Как верифицироваться через Bankid?
Верификация BankID откроется в новом окне. Если страница верификации не открылась, значит окно было заблокировано вашим браузером.
Чтобы разрешить открытие окна, выполните следующие шаги:

1. Проверьте адресную строку браузера на наличие сообщения об ошибке или значка блокировки. Нажмите на него.
2. Если у вас установлен блокировщик всплывающих окон, временно отключите его для этого сайта.
3. Проверьте настройки вашего браузера и убедитесь, что блокировка всплывающих окон отключена или настроена на разрешение открытия данного окна.

Если проблема остается нерешенной, свяжитесь с нашей службой поддержки.
Как верифицироваться через Дію?
Верификация Дія откроется в новом окне. Если страница верификации не открылась, значит окно было заблокировано вашим браузером.
Чтобы разрешить открытие окна, выполните следующие шаги:

1. Проверьте адресную строку браузера на наличие сообщения об ошибке или значка блокировки. Нажмите на него.
2. Если у вас установлен блокировщик всплывающих окон, временно отключите его для этого сайта.
3. Проверьте настройки вашего браузера и убедитесь, что блокировка всплывающих окон отключена или настроена на разрешение открытия данного окна.

Если проблема остается нерешенной, свяжитесь с нашей службой поддержки.
Поздравляем!
Рекомендация засчитана!
В скором времени рекомендация появится на странице риелтора.
Рекомендация не засчитана.
Вы уже оставляли рекомендацию данному риелтору.
В пропозиції є незбережені дані.