1
690 000 $
614  $/м²
помещение свободного назначения, производственное помещение, помещение для оказания услуг, офисное помещение
1123 м²
2 дня назад
2 нед. назад
12 (сегодня 0, вчера 0)
Описание
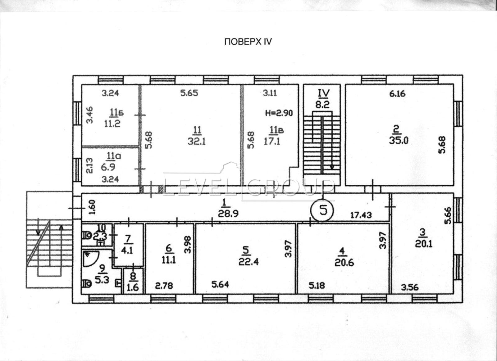
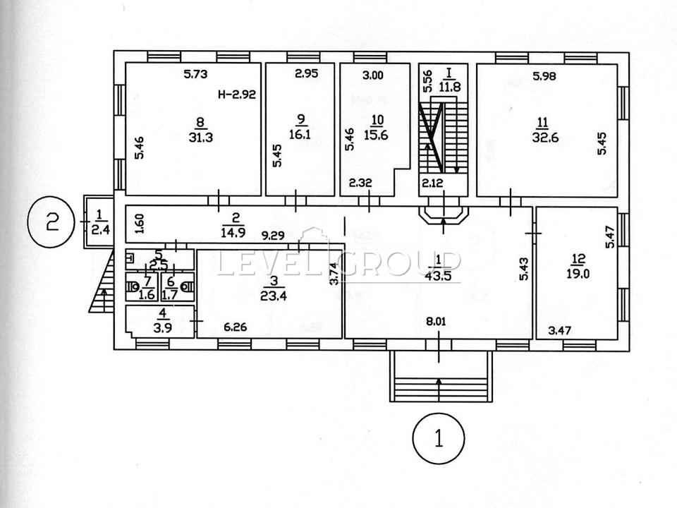
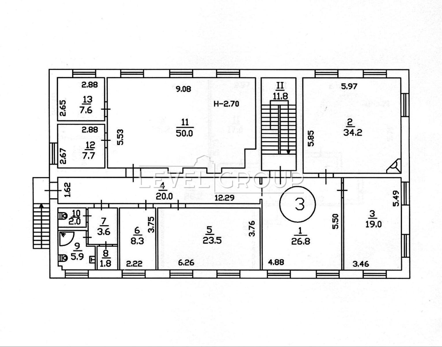
Повністю обладнана 4‑поверхова +підвальне приміщення, офісна будівля з автономною кухнею та кабінетом директора на кожному поверсі. Власний підвальний склад з технологічним підйомним краном, що опускається з вулиці, ідеально для оперативної логістики.
Будівля розташована на ділянці 21 сотка, що дозволяє розмістити додаткову інфраструктуру, паркування або майстерню просто на території.
Інфраструктура під боком: АТБ, Vanill, кафе, банки, ресторани, куренівський парк. Транспорт: метро, трамвай, автобуси, усе в 1‑3 хвилинах ходьби.
Детали
Объект коммерческой недвижимости, Отдельно стоящее здание, Готовое здание, Офисное помещение, Помещение для оказания услуг, Производственное помещение, Помещение свободного назначения. Объект на 1 этаже, В здании 4 этажа. Без комиссии
Level Group
Верифицированный профиль
Gold partner
13
Лет опыта
3
Верифицированные рекомендации
5
Лет на сайте
Активных объявлений 105
Эксклюзивных объектов 1
Рекламная активность 111732
Последний визит на сайт сегодня
Рекомендовать
Адрес
Ваша жалоба принята!
Выберите способ подтверждения
Чтобы ваша рекомендация была засчитана, подтвердите свою личность
* Личные данные не будут отображаться на сайте и будут служить только для подтверждения личности.
Как верифицироваться через Дію?
Считайте QR-код сканером в приложении Действие и подтвердите авторизацию Действие.
QR-код будет действителен еще 02:00
Как верифицироваться через Bankid?
Верификация BankID откроется в новом окне. Если страница верификации не открылась, значит окно было заблокировано вашим браузером.
Чтобы разрешить открытие окна, выполните следующие шаги:

1. Проверьте адресную строку браузера на наличие сообщения об ошибке или значка блокировки. Нажмите на него.
2. Если у вас установлен блокировщик всплывающих окон, временно отключите его для этого сайта.
3. Проверьте настройки вашего браузера и убедитесь, что блокировка всплывающих окон отключена или настроена на разрешение открытия данного окна.

Если проблема остается нерешенной, свяжитесь с нашей службой поддержки.
Как верифицироваться через Дію?
Верификация Дія откроется в новом окне. Если страница верификации не открылась, значит окно было заблокировано вашим браузером.
Чтобы разрешить открытие окна, выполните следующие шаги:

1. Проверьте адресную строку браузера на наличие сообщения об ошибке или значка блокировки. Нажмите на него.
2. Если у вас установлен блокировщик всплывающих окон, временно отключите его для этого сайта.
3. Проверьте настройки вашего браузера и убедитесь, что блокировка всплывающих окон отключена или настроена на разрешение открытия данного окна.

Если проблема остается нерешенной, свяжитесь с нашей службой поддержки.
Поздравляем!
Рекомендация засчитана!
В скором времени рекомендация появится на странице риелтора.
Рекомендация не засчитана.
Вы уже оставляли рекомендацию данному риелтору.
В пропозиції є незбережені дані.