офисное помещение
156 м²
сегодня
1 нед. назад
7 (сегодня 0, вчера 2)
Описание
Комісія для Покупця =0%(Послуги ріелтора сплачує Власник)

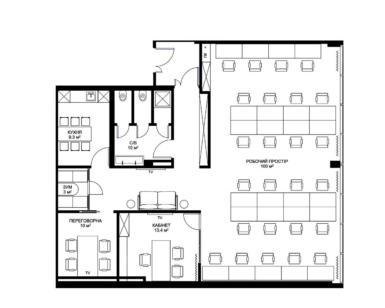
•Продаж сучасного new дизайнерського офісу у Бізнес-Центрі з гарною локацією в Печерському районі та зручною транспортною доступністю.
•Підійде як для власного бізнесу, так і для інвестиції з подальшою здачею в оренду.

•Адреса: вул. Князів Острозьких, 31/33
•БЦ: Зоряний
-Офіс: 9:2
-Поверх: 4
-Площа: 156 м²

-Ціна продажу: 779 990 $
*Без комісії для Покупця
•Потенційний орендний дохід: 8 500 $ / місяць

•Інвестиційні показники:
— Річний дохід: 102 000 $
— Рентабельність (ROI): ≈ 13,08 % річних
— Термін окупності: ≈ 7,6 року
— Формат інвестиції: орендний бізнес / пасивний дохід

•Ліквідний офіс з хорошим балансом площі та доходності у діловій частині міста.

•Поруч центр міста, гарна транспортна розв'язка, БЦ оточений розвиненою інфраструктурою та зупинками громадського транспорту. Поруч SportLife, безліч ресторанів, кафе, магазинів та все що необхідно для ведення успішного бізнесу.
-Метро: У кроковій доступності станції метро Печерська (15 хвилин пішки).

*Звертаю увагу шо офіс знаходиться на етапі ремонту та меблювання, що є великим плюсом і на даному етапі є можливість вносити зміни та адаптувати простір виключно під Вас з урахуванням вашої концепції та потреб.
•Завершення ремонту офісного простору з ремонтом та меблями - ІІІ квартал 2026 року.

•Так само є інші варіанти приміщень різних площ з ремонтом та без ремонту-досить просто зателефонувати і я вам запропоную варіанти та організую перегляд.
Детали
Объект коммерческой недвижимости, Помещение в офисном центре, Готовое здание, Офисное помещение. Объект на 4 этаже, В здании 5 этажей. Без комиссии
Верифицированный профиль
Platinum partner
Сертификат
АФНУ
11
Лет опыта
50
Верифицированных рекомендаций
6
Лет на сайте
Активных объявлений 37
Эксклюзивных объектов 0
Рекламная активность 11918
Последний визит на сайт сегодня
Рекомендовать
Адрес
Ваша жалоба принята!
Выберите способ подтверждения
Чтобы ваша рекомендация была засчитана, подтвердите свою личность
* Личные данные не будут отображаться на сайте и будут служить только для подтверждения личности.
Как верифицироваться через Дію?
Считайте QR-код сканером в приложении Действие и подтвердите авторизацию Действие.
QR-код будет действителен еще 02:00
Как верифицироваться через Bankid?
Верификация BankID откроется в новом окне. Если страница верификации не открылась, значит окно было заблокировано вашим браузером.
Чтобы разрешить открытие окна, выполните следующие шаги:

1. Проверьте адресную строку браузера на наличие сообщения об ошибке или значка блокировки. Нажмите на него.
2. Если у вас установлен блокировщик всплывающих окон, временно отключите его для этого сайта.
3. Проверьте настройки вашего браузера и убедитесь, что блокировка всплывающих окон отключена или настроена на разрешение открытия данного окна.

Если проблема остается нерешенной, свяжитесь с нашей службой поддержки.
Как верифицироваться через Дію?
Верификация Дія откроется в новом окне. Если страница верификации не открылась, значит окно было заблокировано вашим браузером.
Чтобы разрешить открытие окна, выполните следующие шаги:

1. Проверьте адресную строку браузера на наличие сообщения об ошибке или значка блокировки. Нажмите на него.
2. Если у вас установлен блокировщик всплывающих окон, временно отключите его для этого сайта.
3. Проверьте настройки вашего браузера и убедитесь, что блокировка всплывающих окон отключена или настроена на разрешение открытия данного окна.

Если проблема остается нерешенной, свяжитесь с нашей службой поддержки.
Поздравляем!
Рекомендация засчитана!
В скором времени рекомендация появится на странице риелтора.
Рекомендация не засчитана.
Вы уже оставляли рекомендацию данному риелтору.
В пропозиції є незбережені дані.