4 940 000 $
380  $/м²
производственное помещение, склад, офисное помещение
13000 м²
4 дня назад
4 дня назад
4 (сегодня 0, вчера 0)
Описание
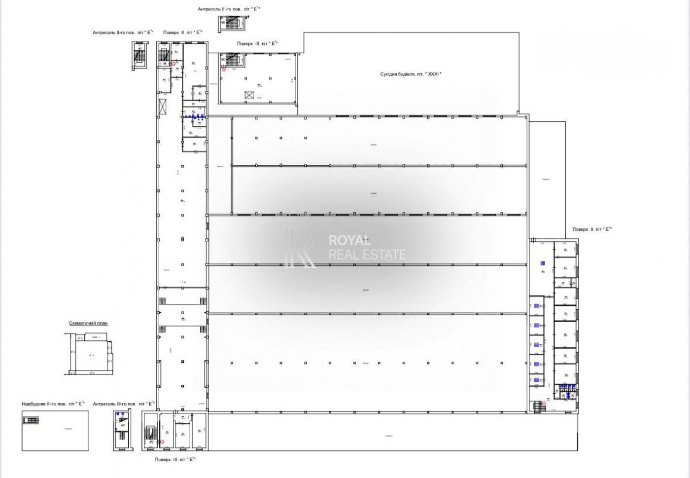
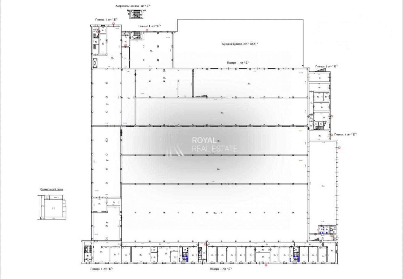
RR3113 | Виробничо-складський комплекс 13 000 м²

Інвестиційний об’єкт із частково заповненими орендарями та потенціалом розвитку

Про об’єкт

Пропонується до продажу масштабний виробничо-складський комплекс із вбудованими офісними приміщеннями.

Об’єкт вже частково генерує дохід та має додатковий потенціал для розвитку й збільшення прибутковості.

Основні характеристики
Загальна площа комплексу: 13 000 м²
В оренді: 10 600 м²
Додаткова будівля: 1500 м² (незавершений ремонт)


Планування та функціонал
Офісна частина:
2 поверхи
висота стелі — 2,7 м

Складські та виробничі приміщення:
висота стелі — від 8,5 до 11 м
підходить для різних типів виробництва та логістики

Комунікації та доступ
централізовані комунікації
зручний під’їзд для вантажного транспорту
якісне дорожнє покриття

Опалення: відсутнє (можливість реалізації під власні потреби)

Орендарі

На даний момент у комплексі розміщені:

швейне виробництво
виробництво побутових товарів
інші комерційні орендарі

Переваги
діючий орендний бізнес
значна частина площ уже приносить дохід
великі складські об’єми з високими стелями
можливість добудови та модернізації
гнучкість використання під різні бізнес-напрямки

Об’єкт підійде як для власного виробництва, так і як інвестиція з потенціалом масштабування та підвищення прибутковості.

RR3113
Детали
Объект коммерческой недвижимости, Отдельно стоящее здание, Готовое здание, Офисное помещение, Склад, Производственное помещение. В здании 4 этажа. В помещении 6 комнат или больше. Комиссия за услуги 5 %
Royal Real Estate
Верифицированный профиль
7
Лет опыта
4
Верифицированные рекомендации
1
Год на сайте
Активных объявлений 24
Эксклюзивных объектов 0
Рекламная активность 8218
Последний визит на сайт сегодня
Рекомендовать
Адрес
Ваша жалоба принята!
Выберите способ подтверждения
Чтобы ваша рекомендация была засчитана, подтвердите свою личность
* Личные данные не будут отображаться на сайте и будут служить только для подтверждения личности.
Как верифицироваться через Дію?
Считайте QR-код сканером в приложении Действие и подтвердите авторизацию Действие.
QR-код будет действителен еще 02:00
Как верифицироваться через Bankid?
Верификация BankID откроется в новом окне. Если страница верификации не открылась, значит окно было заблокировано вашим браузером.
Чтобы разрешить открытие окна, выполните следующие шаги:

1. Проверьте адресную строку браузера на наличие сообщения об ошибке или значка блокировки. Нажмите на него.
2. Если у вас установлен блокировщик всплывающих окон, временно отключите его для этого сайта.
3. Проверьте настройки вашего браузера и убедитесь, что блокировка всплывающих окон отключена или настроена на разрешение открытия данного окна.

Если проблема остается нерешенной, свяжитесь с нашей службой поддержки.
Как верифицироваться через Дію?
Верификация Дія откроется в новом окне. Если страница верификации не открылась, значит окно было заблокировано вашим браузером.
Чтобы разрешить открытие окна, выполните следующие шаги:

1. Проверьте адресную строку браузера на наличие сообщения об ошибке или значка блокировки. Нажмите на него.
2. Если у вас установлен блокировщик всплывающих окон, временно отключите его для этого сайта.
3. Проверьте настройки вашего браузера и убедитесь, что блокировка всплывающих окон отключена или настроена на разрешение открытия данного окна.

Если проблема остается нерешенной, свяжитесь с нашей службой поддержки.
Поздравляем!
Рекомендация засчитана!
В скором времени рекомендация появится на странице риелтора.
Рекомендация не засчитана.
Вы уже оставляли рекомендацию данному риелтору.
В пропозиції є незбережені дані.