870 000 $
3 222  $/м²
офисное помещение
270 м²
1967 год постройки
5 дней назад
5 дней назад
0 (сегодня 0, вчера 0)
Описание
#RR15726
Продаж інвестиційного офісу з орендарем | Кловський узвіз, 7
Центр Києва. Престижна адреса. Готовий орендний бізнес.
Пропонується до продажу сучасний офіс площею 269 м² у знаковій центральній локації — Кловський узвіз. Об’єкт уже працює та приносить стабільний дохід, що робить його ідеальним варіантом для інвестора, який цінує надійність і ліквідність.
Панорамний вид на Київ, презентабельна вхідна група та продумане планування формують статусний простір для міжнародної або української компанії.
Фінансові показники:
Ціна продажу: 870 000 $
Орендний дохід: 6 500 $ на місяць
Річний дохід: 78 000 $
ROI: 8,97% річних
Окупність: 11,15 року
Переваги об’єкта:
— чинний орендар, без простоїв
— стабільний валютний дохід
— одна з найбільш ліквідних офісних локацій Києва
— панорамні вікна та велика кількість природного світла
— автономність: встановлений генератор
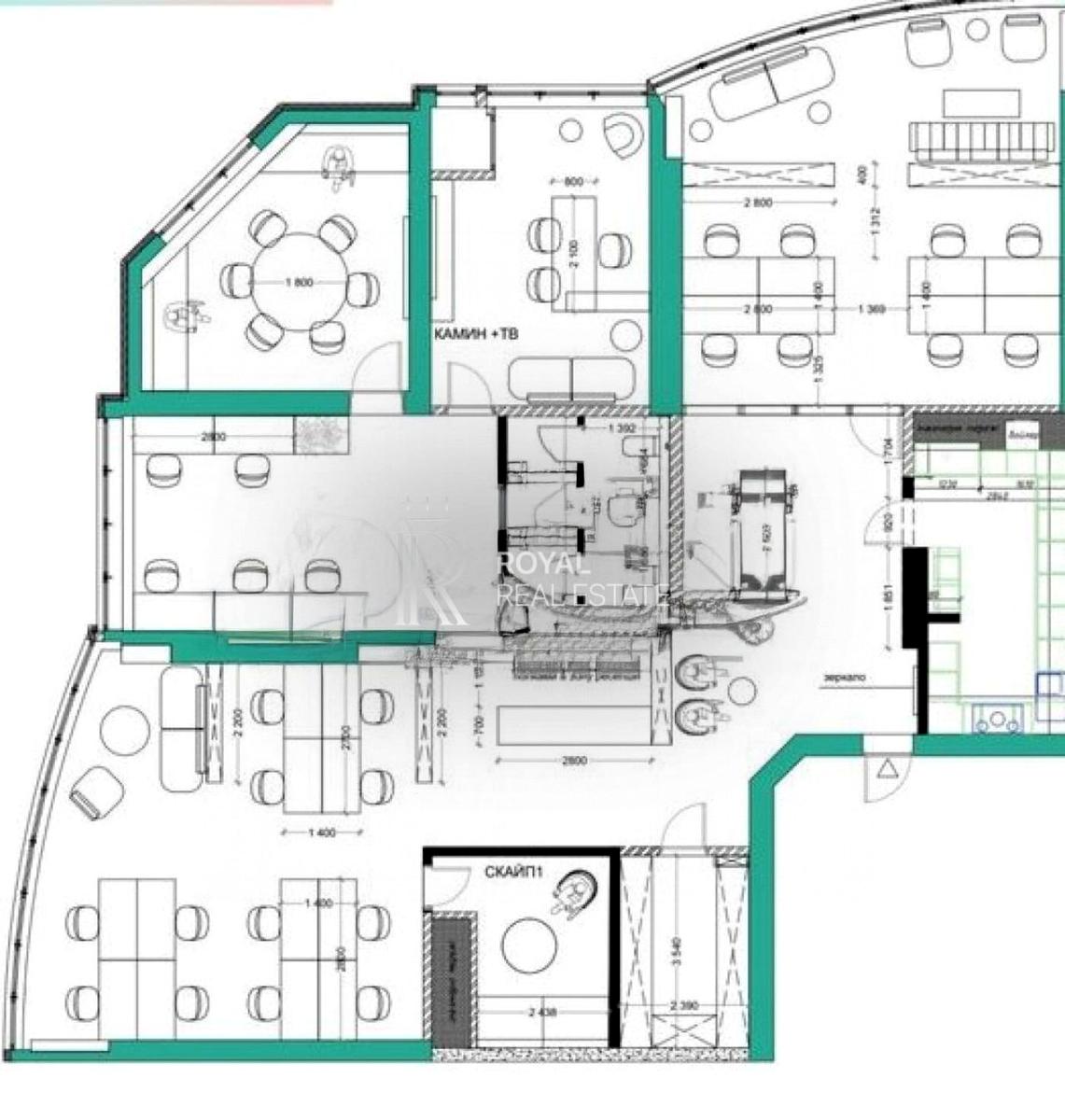
Планування та наповнення:
37 повноцінних робочих місць
Рецепція та представницька вхідна зона
Кабінет керівника
Переговорна кімната
Skype room
Велика кухня зі столовою зоною
2 санвузли
Гардеробна кімната
Об’єкти такого формату в центрі міста з чинним орендарем з’являються на ринку рідко.
Раціональна інвестиція з прогнозованим доходом та збереженням капіталу.
RR15726
Детали
Объект коммерческой недвижимости, Офисный центр, Готовое здание, Офисное помещение. Объект на 35 этаже, В здании 47 этажей. Здание построено в 1967 году. В помещении 4 комнаты. Без комиссии
Royal Real Estate
Верифицированный профиль
Silver partner
3
Года опыта
1
Верифицированная рекомендация
2
Года на сайте
Активных объявлений 71
Эксклюзивных объектов 0
Рекламная активность 9587
Последний визит на сайт сегодня
Рекомендовать
Адрес
Ваша жалоба принята!
Выберите способ подтверждения
Чтобы ваша рекомендация была засчитана, подтвердите свою личность
* Личные данные не будут отображаться на сайте и будут служить только для подтверждения личности.
Как верифицироваться через Дію?
Считайте QR-код сканером в приложении Действие и подтвердите авторизацию Действие.
QR-код будет действителен еще 02:00
Как верифицироваться через Bankid?
Верификация BankID откроется в новом окне. Если страница верификации не открылась, значит окно было заблокировано вашим браузером.
Чтобы разрешить открытие окна, выполните следующие шаги:

1. Проверьте адресную строку браузера на наличие сообщения об ошибке или значка блокировки. Нажмите на него.
2. Если у вас установлен блокировщик всплывающих окон, временно отключите его для этого сайта.
3. Проверьте настройки вашего браузера и убедитесь, что блокировка всплывающих окон отключена или настроена на разрешение открытия данного окна.

Если проблема остается нерешенной, свяжитесь с нашей службой поддержки.
Как верифицироваться через Дію?
Верификация Дія откроется в новом окне. Если страница верификации не открылась, значит окно было заблокировано вашим браузером.
Чтобы разрешить открытие окна, выполните следующие шаги:

1. Проверьте адресную строку браузера на наличие сообщения об ошибке или значка блокировки. Нажмите на него.
2. Если у вас установлен блокировщик всплывающих окон, временно отключите его для этого сайта.
3. Проверьте настройки вашего браузера и убедитесь, что блокировка всплывающих окон отключена или настроена на разрешение открытия данного окна.

Если проблема остается нерешенной, свяжитесь с нашей службой поддержки.
Поздравляем!
Рекомендация засчитана!
В скором времени рекомендация появится на странице риелтора.
Рекомендация не засчитана.
Вы уже оставляли рекомендацию данному риелтору.
В пропозиції є незбережені дані.