Новобудова
3 нед. назад
10 мес. назад
202 (сегодня 0,
вчера 1)
Описание
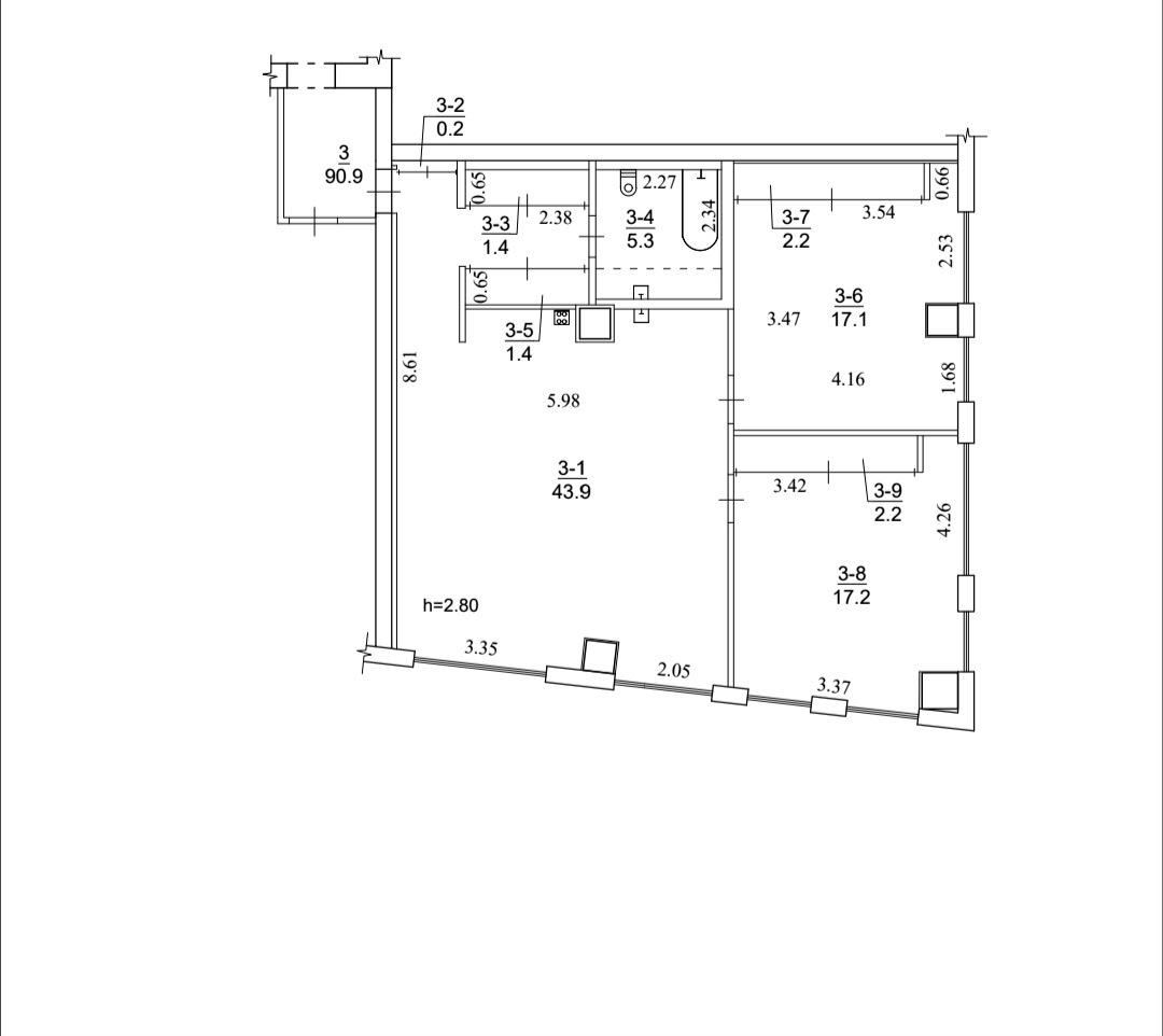
Продам просторную, светлую 3к квартиру в ЖК "Фестивальный". Квартира полностью видовая. Из окон квартиры открывается просто потрясающий вид на набережную. Самые красивые рассветы и закаты будут радовать глаза.Планировка: две раздельные спальни, большая кухня гостиная, сан.узел, гардеробная. Квартира укомплектована всей необходимой мебелью и техникой. В стоимость входит кладовая которая расположена рядом с квартирой. Теплые полы. Закрытая охраняемая территория. Развитая инфраструктура вокруг. Все необходимое в пешей доступности.
Детали
В квартире 3 комнаты, Тип будинку - Новобудова. Планировка комнат Раздельная. В квартире есть Телевизор, Подогрев полов, Кондиционер, Стиральная машина, Холодильник, Микроволновка, Посудомойная машина. Общее состояние квартиры - С ремонтом. Комиссия за услуги 5 %
В квартире есть
-
Телевизор
-
Подогрев полов
-
Кондиционер
-
Стиральная машина
-
Холодильник
-
Микроволновка
-
Посудомойная машина

Плахотна Ганна
Риелтор
| Активных объявлений | 1 |
| Эксклюзивных объектов | 0 |
| Рекламная активность | 476 |
| Последний визит на сайт | 3 недели назад |
Рекомендовать























История изменения цены
| 01.05.2026 | - 2 000 $ | 173 000 $ |
| 26.02.2026 | - 5 000 $ | 175 000 $ |
| 03.07.2025 | 180 000 $ |






















