Фильтры
1 объявление
1 объявление
75 000 $
1 027 $/м²

Академика Ефремова ул. (Командарма Уборевича), 18

БЕЗ КОМИССИИ єВідновлення Відеотур Академгородок Беличи
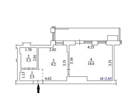
3 комнаты
73 / 42 / 9 м²
этаж 5 из 16
сегодня
Продаж Квартири Без Комісії для Покупця! Будь-які державні програми. Можливий Безготівковий розрахунок. Квартира вільна. Київ; Вулиця Академіка Єфремова 18; Святошинський район; Академмістечко. Квартира на 5 поверсі з 16. Загальна площа 72.40 кв.м. Три окремих кімнати. Перегляд квартири в будь-який зручний для Вас час.
Риелтор
19 объявлений
Profi Realt
70 000 $
636 $/м²

Осенняя ул., 33

3 комнаты
110 / 70 / 15 м²
этаж 25 из 25
сегодня
Вашій увазі пропонується БЕЗ КОМІСІЇ% в цегляному будинку біля м.Академмістечко ( 800 м) , 110 м2 з виконаним чорновим ремонтом: проведена електрика по всій квартирі, стяжка підлоги,сантехніка. 2 санвузли, простора кухня-вітальня , 2 окремі кімнати по 18м2. Усі необхідні обєкти інфраструктури також знаходяться неподалік: школа і садік в дворі будинку. Підземний паркінг(є паркомісце у власності). Красивий краєвид з вікон. Квартира двохстороння. Конс"єрж. 3 ліфти. Є відеоогляд на квартиру, по запиту надішлю в особисті повідомлення. ID: 82719
Риелтор
ВЕЛЕС НЕРУХОМІСТЬ
60 150 $
1 500 $/м²

Осенняя ул., 33

БЕЗ КОМИССИИ ПЕРЕУСТУПКА Академгородок Беличи
1 комната
40.1 / 16 / 16 м²
этаж 2 из 4
сегодня
Продаж квартири в Новобудові за адресою Осіння 33-А, квартира на першому поверсі, загальною площею 40,1 м² ціна 1450 $ за квадратний метр. В квартирі централізоване водопостачання та каналізація. Опалення власна газова котельня, лічильники на тепло, воду та електрику. Квартира продається по переуступці. До Академмістечко 3 хвилини пішки. Чудова локація, тихий район. Є детальний відеоогляд квартири. Телефонуйте домовимось за перегляд в зручний для Вас час.
Риелтор
Золоті Ворота
49 000 $
918 $/м²

Осенняя ул., 33

2 комнаты
53.4 / 14.2 / 25.2 м²
этаж 26 из 26
сегодня
Квартира з ремонтом біля метро Академмістечко! Продається світла 2-кімнатна квартира з якісним ремонтом, розташована на 26 поверсі сучасного будинку на вулиці Осінній, 33. Це останній поверх, що гарантує тишу, приватність і відкритий краєвид. У квартирі багато простору, на підлозі — ламінат, стіни оздоблені якісними матеріалами. Оселя продається без меблів і техніки, що дозволяє новому власнику облаштувати її на власний смак. Будинок зведено у 2008 році, має зовнішнє утеплення, охорону, автопарковку. Двір доглянутий, озеленений, з новими галявинами, поруч — школа, дитячий садок, супермаркет, розважальні заклади, річка та озеро. Локація — одна з найзручніших у районі: до метро «Академмі...
Риелтор
La Vida
квартира по адресу Осенняя ул., (Будинок)
квартира по адресу Осенняя ул., (Будинок) квартира по адресу Осенняя ул., (Будинок)
46 500 $
1 243 $/м²

Осенняя ул., (Будинок)

ПРЕМИУМ БЕЗ КОМИССИИ Відеотур Академгородок Беличи ЖК Клубный дом A NOVA 2
1 комната
37.4 / 15 / 9 м²
этаж 4 из 5
сегодня
🟢 ТЕРМІНОВО! ЦІНА під ключ! БЕЗ КОМІСІЇ та БЕЗ додаткових витрат ДЛЯ ПОКУПЦЯ!!! Продам 1-кімн. квартиру, 4-й поверх з 5-и, загальна площа квартири 37,4 м. кв. (29,6 м. кв. + 7,8 м. кв. балкон) Світла, простора квартира в сучасному клубному будинку ЖК «A Nova House 2» з лаунж зоною на даху та автономним газовим опаленням, функціональне планування, простора кімната з двома видовими вікнами, кухня-вітальня, є відгороджений великий балкон (7,8 м. кв.), стан після будівельників, готова до втілення будь-яких дизайнерських ідей та рішень, дозволяє облаштувати простір за власним смаком, презентабельний під’їзд та вхідна група, швидкісний ліфт, перший поверх комерційні приміщення, відеоспостереже...
Риелтор
La Vida
квартира по адресу Осенняя ул., 28 квартира по адресу Осенняя ул., 28 квартира по адресу Осенняя ул., 28
35 000 $
1 549 $/м²

Осенняя ул., 28

ВЫГОДНО БЕЗ КОМИССИИ ПЕРЕУСТУПКА Академгородок Беличи
1 комната
22.6 / 15 / 6 м²
этаж 2 из 5
сегодня
Без комісії! Смарт квартира, вул. Осіння, 28, новий сучасний клубний будинок A Nova 2. Будівельний стан, висота приміщення 2,8 м, опалення - газовий котел. Стильна вхідна група та під’їзди, лаунж зона на даху, швидкісний лифт, перший поверх - комерційні приміщення. Будинок введено в експлуатацію, з червня можна заходити на ремонт. Також забудовник пропонує додаткову опцію - готовий орендний бізнес - ви отримуєте квартиру з ремонтом та повною комплектацією і вже готову для здачі в оренду. Керівна компанія бере на себе всі поточні турботи. Розрахунки по вартості ремонту можу надати додатково. Поруч вся інфраструктура - магазини, аптеки, банки, та інше. Зручна транспортна розв’язка, до метро в...
Риелтор
THE Capital
49 000 $
1 617 $/м²

Осенняя ул., 28

1 комната
30.31 / 25 / 5 м²
этаж 2 из 5
3 дня назад
Смарт-квартира біля метро Академмістечко | Будинок вже введений в експлуатацію! Продається квартира в сучасному клубному будинку A NOVA 2 – чудовий варіант для проживання або інвестування в орендний бізнес. 📍 м. Київ, вул. Осіння 28 | Святошинський район | 5 хв до метро Академмістечко 🏢 Поверх: 2/5 📐 Площа: 30.31 м² 📄 Форма продажу: переуступка ✅ Основні переваги квартири: 📍 Локація – розвинена інфраструктура: поряд зупинки транспорту, магазини, аптеки, ТРЦ, ринок, школи та садочки. - Планування – квартира вільного планування з панорамними вікнами, світла та простора. 🧱 Стан – без ремонту, що дозволяє реалізувати власний дизайнерський проект або швидко підготувати квартиру під оренду....
Риелтор
THE Capital
41 000 $
1 621 $/м²

Осенняя ул., 28

1 комната
25.29 / 20 / 5 м²
этаж 2 из 5
3 дня назад
🔥 Смарт-квартира біля метро Академмістечко | Будинок вже введений в експлуатацію! Продається квартира в сучасному клубному будинку A NOVA 2 – чудовий варіант для проживання або інвестування в орендний бізнес. 📍 м. Київ, вул. Осіння 28 | Святошинський район | 5 хв до метро Академмістечко 🏢 Поверх: 2/5 📐 Площа: 25.29 м² 📄 Форма продажу: переуступка ✅ Основні переваги квартири: 📍 Локація – розвинена інфраструктура: поряд зупинки транспорту, магазини, аптеки, ТРЦ, ринок, школи та садочки. - Планування – квартира вільного планування з панорамними вікнами, світла та простора. 🧱 Стан – без ремонту, що дозволяє реалізувати власний дизайнерський проект або швидко підготувати квартиру під оренду....
Риелтор
THE Capital
63 000 $
1 636 $/м²

Осенняя ул., 28

1 комната
38.52 / 30 / 8 м²
этаж 3 из 5
3 дня назад
🔥 Смарт-квартира біля метро Академмістечко | Будинок вже введений в експлуатацію! Продається квартира в сучасному клубному будинку A NOVA 2 – чудовий варіант для проживання або інвестування в орендний бізнес. 📍 м. Київ, вул. Осіння 28 | Святошинський район | 5 хв до метро Академмістечко 🏢 Поверх: 3/5 📐 Площа: 38.52 м² 📄 Форма продажу: переуступка ✅ Основні переваги квартири: 📍 Локація – розвинена інфраструктура: поряд зупинки транспорту, магазини, аптеки, ТРЦ, ринок, школи та садочки. - Планування – квартира вільного планування з панорамними вікнами, світла та простора. 🧱 Стан – без ремонту, що дозволяє реалізувати власний дизайнерський проект або швидко підготувати квартиру під орен...
Риелтор
THE Capital
46 500 $
1 621 $/м²

Осенняя ул., 28

1 комната
28.69 / 22 / 6 м²
этаж 3 из 5
3 дня назад
🔥 Смарт-квартира біля метро Академмістечко | Будинок вже введений в експлуатацію! Продається квартира в сучасному клубному будинку A NOVA 2 – чудовий варіант для проживання або інвестування в орендний бізнес. 📍 м. Київ, вул. Осіння 28 | Святошинський район | 5 хв до метро Академмістечко 🏢 Поверх: 3/5 📐 Площа: 28.69 м² 📄 Форма продажу: переуступка ✅ Основні переваги квартири: 📍 Локація – розвинена інфраструктура: поряд зупинки транспорту, магазини, аптеки, ТРЦ, ринок, школи та садочки. - Планування – квартира вільного планування з панорамними вікнами, світла та простора. 🧱 Стан – без ремонту, що дозволяє реалізувати власний дизайнерський проект або швидко підготувати квартиру під орен...
Риелтор
Level Group
144 000 $
1 970 $/м²

Академика Ефремова ул. (Командарма Уборевича), 8-А

2 комнаты
73.1 / 40.9 / 15.5 м²
этаж 3 из 8
сегодня
Розкішна квартира у престижному житловому комплексі на вулиці Єфремова, 8А – це поєднання комфорту та практичної. У квартирі – індивідуальне газове опалення та кондиціонери, високі стелі в три метри додають простору, а великі панорамні вікна наповнюють оселю світлом і гармонією. Вдале планування втілює ідеальне поєднання естетики та функціональності: простора кухня, дві окремі кімнати, кожна з яких випромінює свою унікальну атмосферу, та затишне балконы, що відкриває гарний краєвид. Лише хвилина пішки – і ви біля станції метро «Академмістечко», а в самому будинку на вас чекають затишна кав’ярня, супермаркет «Фора», магазини «Ватсонс» та «Аврора», а також медичні клініки. У кроковій доступнос...
Риелтор
NUAPHASE
94 500 $
1 277 $/м²

Академика Ефремова ул. (Командарма Уборевича), 17

3 комнаты
74 / 54 / 8 м²
этаж 10 из 13
1 нед. назад
Продаж 3 кімнатної квартири з ремонтом та меблями біля метро Академмістечко 7 хвилин пішки. Квартира після капітального ремонту. Броньовані вхідні двері Страж. Підлога паркет з червоного дерева. Є дві гардеробні вбудовані шафи купе. Кондиціонер. Кухня з плитою, витяжкою, духовкою, холодильником. Ванна, бойлер. Великий розкладний угловий мʼякий диван. Спальний гарнітур. Центральні кімнати обʼєднані в один великий зал. Парадне на дві сторони. Не має консьержа. Чисто, є прибиральниця. Підʼїзд в хорошому стані з пандусом. На поверхах пластикові вікна. Чиста сходова клітина. На поверсі зроблений ремонт встановлені додаткові двері. Є два ліфти грузовий і маленький поки що не замінені але планують...
Риелтор
FLATPRIME
квартира по адресу Осенняя ул., 33 квартира по адресу Осенняя ул., 33 квартира по адресу Осенняя ул., 33
80 000 $
803 $/м²

Осенняя ул., 33

ПРЕМИУМ БЕЗ КОМИССИИ Академгородок Беличи
Свободная планировка
99.6 / 60 / 15 м²
этаж 25 из 25
сегодня
Продається просторе приміщення з вільним плануванням, яке ідеально підходить для втілення вашої мрії про комфортне житло. Ось основні переваги цієї пропозиції: Приміщення з вільним плануванням дає можливість створити унікальний простір на свій смак. Ви можете працювати з дизайнером або втілити свої ідеї самостійно. Вікна приміщення виходять на мальовничий краєвид міста та озера, що додає спокою та комфорту. Розташування поруч із метро (5 хвилин пішки) забезпечує зручний доступ до будь-якої точки Києва. Усі необхідні об'єкти інфраструктури також знаходяться неподалік. Приміщення обладнане генератором для роботи ліфтів, подачі води, опалення та мінімального освітлення, що гарантує комфорт на...
Риелтор
Золоті Ворота
79 000 $
790 $/м²

Чернобыльская ул., 20

4 комнаты
100 / 58.3 / 12.6 м²
этаж 6 из 16
сегодня
Простора квартира біля «Академмістечка»! Ваша мрія про ідеальне житло починається тут! Продається 4-кімнатна оселя, яка ідеально підійде для комфортного проживання великої родини. Розташована за адресою: вулиця Чорнобильська, 20, у добре розвиненому районі Києва. Помешкання знаходиться на 6 поверсі 16-поверхового будинку. Житло вирізняється зручним плануванням, яке дозволяє раціонально використовувати кожен м2. Зроблено косметичний ремонт, що дозволяє новим власникам одразу заселитися та мінімізувати додаткові витрати на старті. Всі кімнати окремі та просторі — це ключова перевага для забезпечення приватного простору кожного члена сім'ї. Питання меблювання та технічного оснащення підл...
Риелтор
Благовіст
92 000 $
1 668 $/м²

Академика Палладина просп., 23

2 комнаты
55.15 / 29.7 / 8.5 м²
этаж 13 из 16
сегодня
- Продається світла, простора 2-кімнатна квартира з новим стильним ремонтом у чудовому місці! - Квартира розташована на 13 поверсі 16 поверхового будинку. - Функціональне планування: 2 просторі кімнати (17.7м2 + 12м2), кухня (8,5м2), санвузол роздільний, велика засклена лоджія на дві кімнати. - Сучасний ремонт з якісних матеріалів. Світло, затишок та комфорт у кожному куточку. - Ремонт робили для себе! Квартира повністю готова до проживання, продається с меблями та технікою. - Найкраще місце розташування - все необхідне поряд: дитячий садок, гімназія, дитяча та доросла поліклініка, супермаркети: "Новус", "Велмарт", "Варус", тц "Акаде...
Риелтор
FLATPRIME
90 000 $
1 216 $/м²

Академика Ефремова ул. (Командарма Уборевича), 19-А

2 комнаты
74 / 39 / 11 м²
этаж 2 из 18
сегодня
Продається затишна 2-кімнатна квартира за адресою вул. Єфремова, 19а. Розташована на 2-му поверсі 18-поверхового будинку. Квартира з ремонтом, меблями, вікна виходять у тихий зелений двір. У будинку консьєрж, чистий підʼїзд, приємні сусіди. Зручна локація — до метро Академмістечко всього 10 хвилин пішки. Ідеальний варіант для комфортного проживання або орендного інвестування.
Риелтор
Profi Realt
квартира по адресу Чернобыльская ул., 18 квартира по адресу Чернобыльская ул., 18 квартира по адресу Чернобыльская ул., 18
69 999 $
854 $/м²

Чернобыльская ул., 18

ПРЕМИУМ БЕЗ КОМИССИИ Академгородок Беличи
3 комнаты
82 / 42 / 7 м²
этаж 5 из 10
сегодня
Комісія для покупця 0% Розглядаємо безготівковий розрахунок. Продається трьохкімнатна квартира біля метро Академмістечка за адресою: вул. Чорнобильська, 18. Будинок 96 серія, будинок побудований в 1993 році. Під'їзд в ідеальному стані. Площа квартири 81,5 кв.м., висота стелі 2,7м, поверх 5 з 10. В квартирі три окремі кімнати, роздільний санвузол та три засклені лолджії. Квартира не кутова, знаходиться в середині будинку. Відмінна: 10 хвилин пішки до метро Академмістечко, 5 хвилин до ринку, супермаркетів «Сільпо», «Велмарт», «Новус». Маршрутки в різних напрямках. Озера з зонами відпочинку. Продаж здійснюється за договором та ціною, узгодженою з власником, без комісії для покупця. ID: 90766
Риелтор
FLATPRIME
79 000 $
1 403 $/м²

Академика Ефремова ул. (Командарма Уборевича), 19

2 комнаты
56.3 / 34 / 8.3 м²
этаж 8 из 16
сегодня
Продається затишна двокімнатна квартира на вул. Академіка Єфремова, 19, розташована на 8 поверсі. Локація поєднує тишу та комфорт — за кілька хвилин пішки знаходиться метро Академмістечко, а навколо лише спокійні вулиці без шумної чи критичної інфраструктури. Поряд є все необхідне для щоденного життя: магазини, невеликий ринок, навчальні заклади. Сам будинок доглянутий, а нещодавно тут встановили новий просторий ліфт, що додає ще більше зручності майбутнім мешканцям.
Риелтор
46 500 $
1 247 $/м²

Осенняя ул., 59

1 комната
37.3 / 15.7 / 13 м²
этаж 3 из 4
2 дня назад
ПРОДАЖ 1-КІМНАТНОЇ КВАРТИРИ Київ, вул. Осіння, 59 — Клубний будинок “Весна на вулиці Осінній” Пропонуємо до продажу світлу та затишну однокімнатну квартиру в сучасному клубному будинку, розташованому в одному з найкомфортніших районів Києва. ✅ ОСНОВНІ ХАРАКТЕРИСТИКИ: Загальна площа — 37,3 м² Поверх — 3/4 Продумане та функціональне планування Простора кімната та кухня Приємний вид з вікон, багато природного світла 🏡 ПРО БУДИНОК: Клубний формат — невелика кількість квартир Закрита та безпечна територія (вхід тільки за ключем) Охайний та доглянутий під'їзд Спокійний, затишний район з мінімумом шуму 📍 ЛОКАЦІЯ: 15 хвилин пішки до метро Академмістечко Поруч супермаркети, магазини, к...
Риелтор
Estate Invest
22 500 $
1 250 $/м²

Обуховская ул., 60

1 комната
18 / 14 / 4 м²
этаж 2 из 4
вчера
ID обʼєкта: W5935 Проєкт зі смарт-квартир “Smart Club”. Київ, Святошинський район, вул Обухівська 60 Smart Club — це сучасне рішення для тих, хто цінує комфорт, функціональність і вигідне розташування. Вони ідеально підходять для молодих професіоналів, студентів, інвесторів та всіх, хто прагне максимально ефективно використовувати житловий простір. Основні переваги: Зручна локація Близькість до метро Академмістечко забезпечує швидкий і зручний доступ до будь-якої точки міста. Це економія часу на дорогу, можливість швидко дістатися роботи, навчання чи місць відпочинку. Вигідна інвестиція Завдяки високому попиту на оренду житла біля метро, смарт-квартири стають чудовою можливістю для паси...
Риелтор