1
1 000 000 €
1 802
€/м²
Ковпака ул., 17
Цегляна
2 мес. назад
3 г. назад
560 (сегодня 0,
вчера 2)
Описание
✅ 🏙️ ➡️ ЦІНУ ЗНИЖЕНО НА -30%!
Продаж видового трирівневого пентхауса з євроремонтом у будинку преміум-класу у центрі Києва вул. Ковпака, 17.
Ремонт закінчено у 2023 році!!!
485 м2 + 200 м2 своя облаштована тераса (тристороння).
Крім всіх принад, родзинкою пентхауса є 2 окремі входи: це як 2 окремі квартири!
Дизайнерський ремонт 'Під ключ'.
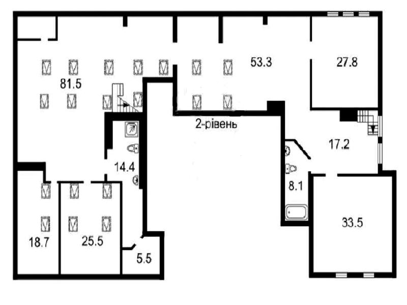
Функціональне планування:
1-й рівень: простора та світла вітальня (46 кв.м), спальня/кабінет на Ваш розсуд (28, 2 кв.м), кухня-їдальня (32, 5 кв.м) 2 балкони, 2 гардеробні, гостьовий c/в, ванна кімната.
2-й рівень: 4-5 спалень та гардеробні, спорт банкет фуршет зал (53, 3 кв.м), камінний зал з діючим мармуровим каміном (81, 5 кв.м), 3 с/в, сауна. Встановлено 16 вітражних вікон із загартованого скла. Майже заміський будинок в елітному будинку.
3-й рівень: лаунж-зона з баром, обладнана більярдним та тенісним столами, дартсом, м'яким диваном, LCD панель, холодильник. І найголовніше вихід до своєї тераси (200 кв.м) з барбекю зоною, душем, лежаками. Винотека з баром та ТV. У квартирі дві пральні кімнати (2 пральні машини).
Внутрішнє оздоблення виконане з високоякісних європейських матеріалів.
Апартаменти повністю укомплектовані всіма необхідними меблями та побутовою технікою світових виробників Італії, Німеччини.
Встановлено систему «Розумний будинок», сигналізація з відеоспостереженням, кондиціювання, фільтрація води.
В будинку встановлено ГЕНЕРАТОР на ліфт, воду та світло в квартирах!!!
В під'їзді консьєрж. Вхід у під'їзд та підйом на поверх ліфтом - по чіпу, двері на майданчик з квартири на ключі.
В'їзд у двір через шлагбаум, у дворі є підземна парковка (може використовувавтись як БОМБОСХОВИЩЕ) та відкрита парковка, що охороняється.
Під будинком парк із фонтанами, розвинена інфраструктура, досить тихо, гідні сусіди.
Будинок розташований між метро 'Либідська' та 'Палац Україна'.
Поруч Володимирський ринок, парк ім. Гонгадзе, ТРЦ Ocean Plaza, супермаркети: Ашан, Сільпо, ресторани, банки; 7 хв Хрещатик.
В апартаментах ніхто не мешкав, все абсолютно нове…
Ціна пентхауса «під ключ» (1800 €/кв.м) нижче, ніж у сусідньому ЖК «Французький квартал-2» «після будівельників» (4000 $/кв.м).
Без комісії! Покупець оплачує 2% податків (1% - держмито, 1% - пенсійний збір).
Продаж видового трирівневого пентхауса з євроремонтом у будинку преміум-класу у центрі Києва вул. Ковпака, 17.
Ремонт закінчено у 2023 році!!!
485 м2 + 200 м2 своя облаштована тераса (тристороння).
Крім всіх принад, родзинкою пентхауса є 2 окремі входи: це як 2 окремі квартири!
Дизайнерський ремонт 'Під ключ'.
Функціональне планування:
1-й рівень: простора та світла вітальня (46 кв.м), спальня/кабінет на Ваш розсуд (28, 2 кв.м), кухня-їдальня (32, 5 кв.м) 2 балкони, 2 гардеробні, гостьовий c/в, ванна кімната.
2-й рівень: 4-5 спалень та гардеробні, спорт банкет фуршет зал (53, 3 кв.м), камінний зал з діючим мармуровим каміном (81, 5 кв.м), 3 с/в, сауна. Встановлено 16 вітражних вікон із загартованого скла. Майже заміський будинок в елітному будинку.
3-й рівень: лаунж-зона з баром, обладнана більярдним та тенісним столами, дартсом, м'яким диваном, LCD панель, холодильник. І найголовніше вихід до своєї тераси (200 кв.м) з барбекю зоною, душем, лежаками. Винотека з баром та ТV. У квартирі дві пральні кімнати (2 пральні машини).
Внутрішнє оздоблення виконане з високоякісних європейських матеріалів.
Апартаменти повністю укомплектовані всіма необхідними меблями та побутовою технікою світових виробників Італії, Німеччини.
Встановлено систему «Розумний будинок», сигналізація з відеоспостереженням, кондиціювання, фільтрація води.
В будинку встановлено ГЕНЕРАТОР на ліфт, воду та світло в квартирах!!!
В під'їзді консьєрж. Вхід у під'їзд та підйом на поверх ліфтом - по чіпу, двері на майданчик з квартири на ключі.
В'їзд у двір через шлагбаум, у дворі є підземна парковка (може використовувавтись як БОМБОСХОВИЩЕ) та відкрита парковка, що охороняється.
Під будинком парк із фонтанами, розвинена інфраструктура, досить тихо, гідні сусіди.
Будинок розташований між метро 'Либідська' та 'Палац Україна'.
Поруч Володимирський ринок, парк ім. Гонгадзе, ТРЦ Ocean Plaza, супермаркети: Ашан, Сільпо, ресторани, банки; 7 хв Хрещатик.
В апартаментах ніхто не мешкав, все абсолютно нове…
Ціна пентхауса «під ключ» (1800 €/кв.м) нижче, ніж у сусідньому ЖК «Французький квартал-2» «після будівельників» (4000 $/кв.м).
Без комісії! Покупець оплачує 2% податків (1% - держмито, 1% - пенсійний збір).
Детали
В квартире 6 комнат, Технологія будівництва - Цегляна. Планировка комнат Раздельная. Есть газ. В квартире есть Камин, Стиральная машина, Ванна, Сигнализация. Общее состояние квартиры - С ремонтом. Горячая вода - централизованная. Интернет проводной (кабельный). Без комиссии
В квартире есть
История изменения цены
| 04.03.2026 | - 250 000 € | 1 000 000 € |
| 09.02.2026 | - 33 148 € | 1 250 000 € |
| 05.03.2025 | + 200 000 $ | 1 500 000 $ |
| 27.09.2024 | - 200 000 $ | 1 300 000 $ |
| 21.08.2024 | - 200 000 $ | 1 500 000 $ |
| 15.06.2023 | 1 700 000 $ |

























