77 / 39 / 13 м²
этаж 5 из 23
Блочна
Спец. проект
2017 год постройки
сегодня
3 нед. назад
280 (сегодня 9, вчера 10)
Описание
ЕКСКЛЮЗИВ! БЕЗ КОМІСІЇ! ЖК Парк Стоун ( Park Stone), Івасюка 2 Д, Оазис, парк Наталка, Оболонь, Оболонська Набережна

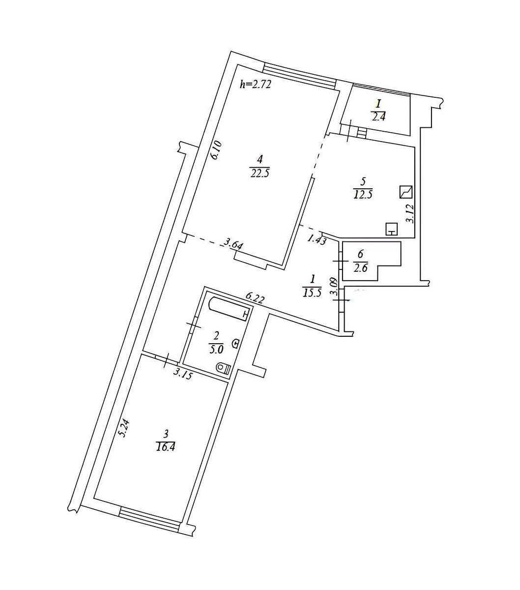
Простора видова 2-кімнатна квартира з ремонтом, меблями та побутовою технікою, тепла підлога: кухня коридор, санвузол, простора гарберобна

Будинок обладнаний генератором, при відключеннях світла працює ліфт, подаються вода та опалення

Квартира двостороння, спальня має чудовий вид з вікна на набережну Дніпра, друга кімната з кухнею виходять вікнами у двір

Поряд вся інфраструктура: в пішому доступі відомий парк Наталка з локаціями для прогулянок та заняттям спортом, фітнес клуби Палестра, GELIAR GYM та інші, магазини і ТЦ Блокбастер, Novus, Епіцентр, кафе, ресторани, школи, садочки

Квартира вільна, документи готові до продажу, власність більше 3 років, власник в Україні
Перегляд за домовленістю
Детали
В квартире 2 комнаты, высота потолков 2.72 метра, Технологія будівництва - Блочна, Тип будинку - Спец. проект. Газа нет, кухонная плита электрическая. Есть балкон. В квартире есть Подогрев полов, Кондиционер, Стиральная машина, Ванна, Холодильник. Дом построен в 2017 году. Общее состояние квартиры - С ремонтом. Горячая вода - централизованная. Количество санузлов: 1. Интернет оптоволоконный. Работает без света - вода, отопление, интернет, лифт. Тип кухни - отдельная кухня. Количество спален: 1. Есть подземный паркинг, доступный как укрытие. Инфраструктура территории: детская площадка, спортивная площадка. Без комиссии
В квартире есть
  • Подогрев полов
  • Кондиционер
  • Стиральная машина
  • Ванна
  • Ресурс 1
    Холодильник
Верифицированный профиль
Gold partner
24
Года опыта
3
Года на сайте
Активных объявлений 2
Эксклюзивных объектов 1
Рекламная активность 6702
Последний визит на сайт сегодня
Рекомендовать
Планировка

Видеотур
Адрес
Ваша жалоба принята!
Выберите способ подтверждения
Чтобы ваша рекомендация была засчитана, подтвердите свою личность
* Личные данные не будут отображаться на сайте и будут служить только для подтверждения личности.
Как верифицироваться через Дію?
Считайте QR-код сканером в приложении Действие и подтвердите авторизацию Действие.
QR-код будет действителен еще 02:00
Как верифицироваться через Bankid?
Верификация BankID откроется в новом окне. Если страница верификации не открылась, значит окно было заблокировано вашим браузером.
Чтобы разрешить открытие окна, выполните следующие шаги:

1. Проверьте адресную строку браузера на наличие сообщения об ошибке или значка блокировки. Нажмите на него.
2. Если у вас установлен блокировщик всплывающих окон, временно отключите его для этого сайта.
3. Проверьте настройки вашего браузера и убедитесь, что блокировка всплывающих окон отключена или настроена на разрешение открытия данного окна.

Если проблема остается нерешенной, свяжитесь с нашей службой поддержки.
Как верифицироваться через Дію?
Верификация Дія откроется в новом окне. Если страница верификации не открылась, значит окно было заблокировано вашим браузером.
Чтобы разрешить открытие окна, выполните следующие шаги:

1. Проверьте адресную строку браузера на наличие сообщения об ошибке или значка блокировки. Нажмите на него.
2. Если у вас установлен блокировщик всплывающих окон, временно отключите его для этого сайта.
3. Проверьте настройки вашего браузера и убедитесь, что блокировка всплывающих окон отключена или настроена на разрешение открытия данного окна.

Если проблема остается нерешенной, свяжитесь с нашей службой поддержки.
Поздравляем!
Рекомендация засчитана!
В скором времени рекомендация появится на странице риелтора.
Рекомендация не засчитана.
Вы уже оставляли рекомендацию данному риелтору.
В пропозиції є незбережені дані.