ВЫГОДНО Комиссия 5% ПЕРЕУСТУПКА Выдубичи Голосеевский лес ЖК Svitlo Park
45.37 / 20 / 16 м²
этаж 5 из 21
Блочна
Спец. проект
2026 год постройки
3 дня назад
1 нед. назад
78 (сегодня 2, вчера 4)
Описание
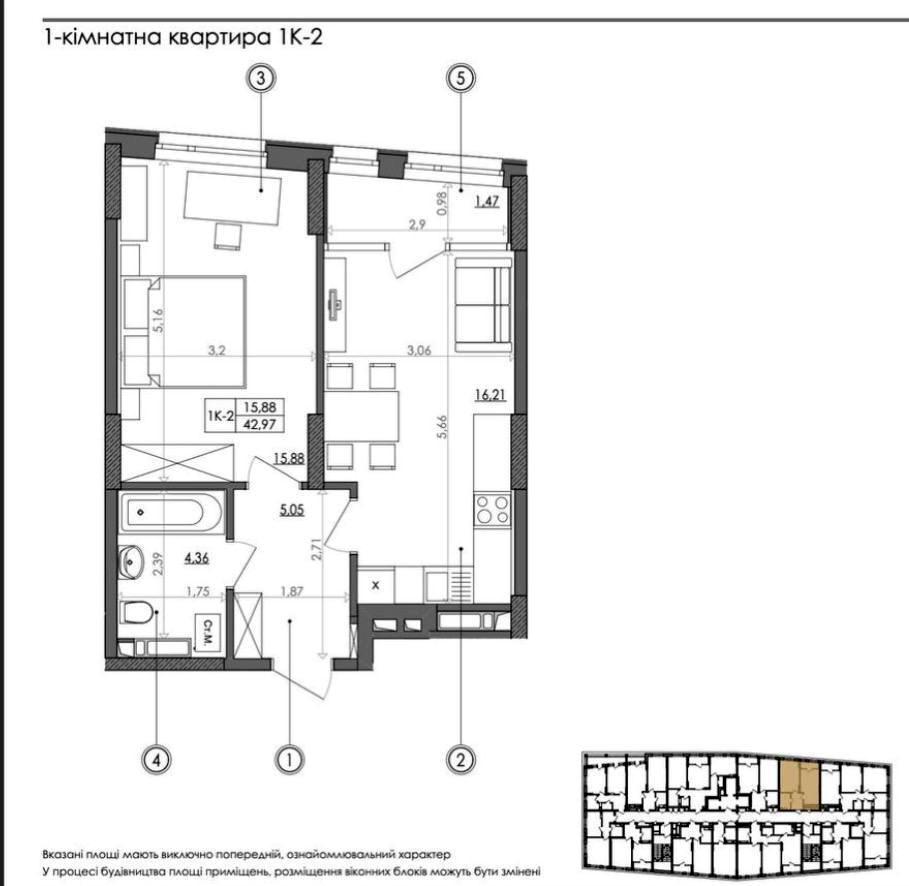
Продаж 1-кімнатної квартири в ЖК "Світлопарк" (SVITLOPARK) біля метро Видубичі. Надніпрянське шосе

ВИД НА ДНІПРО!
МІНІ-МІСТО БІЛЯ ЦЕНТРУ КИЄВА

8 будинок, .
БУДИНОК ЗДАНИЙ,ВВЕДЕНИЙ В ЕКСПЛУАТАЦІЮ.
Продаж по ПЕРЕУСТУПЦІ.

Раціональне ПЛАНУВАННЯ:
- окрема спальня
- кухня-вітальня з лоджією!
- санвузол
- передпокій
Загальна площа – 45.37м2.
Без ремонту.

На території ЖК вже є магазини та кафе. Планується завершення будівництва ТЦ разом із спортзалом на
території ЖК.

Об'єкт знаходиться за 12 хвилин ходьби від м. Видубичі (близько 1 км) та 10 хвилин їзди від центру.

SVITLO PARK - самодостатнє міні-місто, комфортне та привітне для кожного мешканця!
• Продуманий, комфортний внутрішній простір: дитячі майданчики з відеонаглядом, спортивні та ігрові майданчики, зони барбекю, бігові та велодоріжки, майданчики для домашніх улюбленців, алеї з лаунж-зонами, кімнати матері та дитини, колясочні та велосипедні кімнати
• Повна інфраструктура: 7 дитячих садочків, школа, супермаркет, спортклуб, лікарня, підземний та гостьові паркінги, станції зарядження електрокарів, магазини, відділення банків, салони краси, кафе та багато іншого
• Повністю нове сучасне середовище має значення для життя: нові будинки, доглянуті подвір’я, сучасні інженерні комунікації, красиві холи, де приємно жити.
• 20,2 га мальовничої місцевості в оточенні Дніпра, озер Єрик та Миколайчик, парка Покол, набережної річкового каналу та відомого Київського водоспаду. Усе навколо надихає та створює гармонію.
• Жити зовсім поруч із центром міста та мати можливість швидко без заторів діставатися будь-якої точки Києва – вагома перевага.
Детали
В квартире 1 комната, высота потолков 2.7 метра, Технологія будівництва - Блочна, Тип будинку - Спец. проект. Есть балкон. Дом построен в 2026 году. Общее состояние квартиры - Без ремонта. Количество санузлов: 1. Тип кухни - отдельная кухня. Количество спален: 1. Инфраструктура территории: детская площадка, спортивная площадка, отделенная зона для выгула животных, двор без авто. Комиссия за услуги 5 %
My Space
Верифицированный профиль
4
Года опыта
3
Года на сайте
Активных объявлений 2
Эксклюзивных объектов 0
Рекламная активность 4532
Последний визит на сайт 3 дня назад
Рекомендовать
История изменения цены
14.04.2026 - 500 $ 58 000 $
07.04.2026 58 500 $
Адрес
Ваша жалоба принята!
Выберите способ подтверждения
Чтобы ваша рекомендация была засчитана, подтвердите свою личность
* Личные данные не будут отображаться на сайте и будут служить только для подтверждения личности.
Как верифицироваться через Дію?
Считайте QR-код сканером в приложении Действие и подтвердите авторизацию Действие.
QR-код будет действителен еще 02:00
Как верифицироваться через Bankid?
Верификация BankID откроется в новом окне. Если страница верификации не открылась, значит окно было заблокировано вашим браузером.
Чтобы разрешить открытие окна, выполните следующие шаги:

1. Проверьте адресную строку браузера на наличие сообщения об ошибке или значка блокировки. Нажмите на него.
2. Если у вас установлен блокировщик всплывающих окон, временно отключите его для этого сайта.
3. Проверьте настройки вашего браузера и убедитесь, что блокировка всплывающих окон отключена или настроена на разрешение открытия данного окна.

Если проблема остается нерешенной, свяжитесь с нашей службой поддержки.
Как верифицироваться через Дію?
Верификация Дія откроется в новом окне. Если страница верификации не открылась, значит окно было заблокировано вашим браузером.
Чтобы разрешить открытие окна, выполните следующие шаги:

1. Проверьте адресную строку браузера на наличие сообщения об ошибке или значка блокировки. Нажмите на него.
2. Если у вас установлен блокировщик всплывающих окон, временно отключите его для этого сайта.
3. Проверьте настройки вашего браузера и убедитесь, что блокировка всплывающих окон отключена или настроена на разрешение открытия данного окна.

Если проблема остается нерешенной, свяжитесь с нашей службой поддержки.
Поздравляем!
Рекомендация засчитана!
В скором времени рекомендация появится на странице риелтора.
Рекомендация не засчитана.
Вы уже оставляли рекомендацию данному риелтору.
В пропозиції є незбережені дані.