250 000 $
3 511  $/м²
  Собственность верифицировано Відеотур Нивки Нивки ЖК Файна Таун
71.2 / 29 / 24.74 м²
этаж 6 из 7
Блочна
Спец. проект
2022 год постройки
сегодня
сегодня
13 (сегодня 13, вчера 0)
Описание
Квартира від власників з гарною енергетикою, якісним сучасним ремонтом та продуманою ергономікою. Інтерєр виконаний у світло-сірій гамі з теплими деревяними та бірюзовими акцентами, що створює атмосферу затишку та гармонії. Все зроблемо для себе.

Планування квартири максимально комфортне та функціональне:
-простора кухня-вітальня з видом на променад ідеальне місце для відпочинку та прийому гостей;
-майстер-спальня з власною гардеробною та ванною кімнатою, вікна виходять у двір;
- друга кімната з повністю виконаним ремонтом (без меблів), яку можна облаштувати як кабінет або додаткову спальню чи дитячу;
-гостьовий санвузол.

У квартирі використані якісні матеріали та нова техніка, стан ремонту новий.

В квартирі все продумано для комфорту мінімалізм, функціональність і відчуття особистого простору, яке так цінується у сучасному житлі.

У будинку облаштоване укриття, що додає відчуття безпеки та спокою для мешканців.

На території житлового комплексу працює автономна котельня та система електрозабезпечення, які допомагають забезпечувати будинок теплом і водою навіть під час відключень електроенергії.

У квартирі також передбачено підключення до резервного живлення EcoFlow, що дозволяє легко організувати автономну електрику та почуватися комфортно у будь-яких умовах.

Додатковою перевагою є власна комора площею 5, 9 м², яка знаходиться в цьому ж будинку. Це зручний простір для зберігання сезонних речей, спортивного інвентарю чи побутових речей, що дозволяє зберігати порядок у квартирі.

Концепція Живого Кварталу Файна Таун - це місто в місті, цілодобова охорона, відеонагляд, закрита територія комплексу та концепція "двір без машин". На території чудово розвинена інфраструктура: різні спортивні зони, зона BBQ, Гімназія А + та торговий центр. Вже відкрито два літні басейни для дорослих та дітей.
Детали
В квартире 2 комнаты, высота потолков 2.8 метра, Технологія будівництва - Блочна, Тип будинку - Спец. проект. Газа нет, кухонная плита электрическая. Балкона нет. В квартире есть Телевизор, Спутниковое ТВ, Подогрев полов, Кондиционер, Стиральная машина, Сушильная машина, Душевая кабина, Ванна, Холодильник, Микроволновка, Посудомойная машина, Сейф. Дом построен в 2022 году. Общее состояние квартиры - С ремонтом. Безбарьерность: вход в дом на уровне земли, дверные проемы в доме шириной более 0.9 м, парковочные места для людей з инвалидностью. Горячая вода - электрический бойлер. Количество санузлов: 2. Интернет оптоволоконный. Работает без света - вода, отопление, интернет, резервное питание квартиры (акумуляторы). Тип кухни - кухня-студия. Количество спален: 2. Есть подземный паркинг, доступный как укрытие. Инфраструктура территории: детская площадка, спортивная площадка, отделенная зона для выгула животных, двор без авто
В квартире есть
  • Телевизор
  • Спутниковое ТВ
  • Подогрев полов
  • Кондиционер
  • Стиральная машина
  • Сушильная машина
  • Душевая кабина
  • Ванна
  • Холодильник
  • Микроволновка
  • Посудомойная машина
  • Сейф
Денис
Денис
Собственник
Верифицированный профиль
7
Лет на сайте
Активных объявлений 1
Последний визит на сайт сегодня
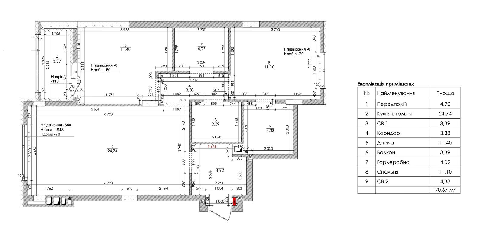
Планировка

Адрес
Ваша жалоба принята!
В пропозиції є незбережені дані.