90 000 $
1 286  $/м²
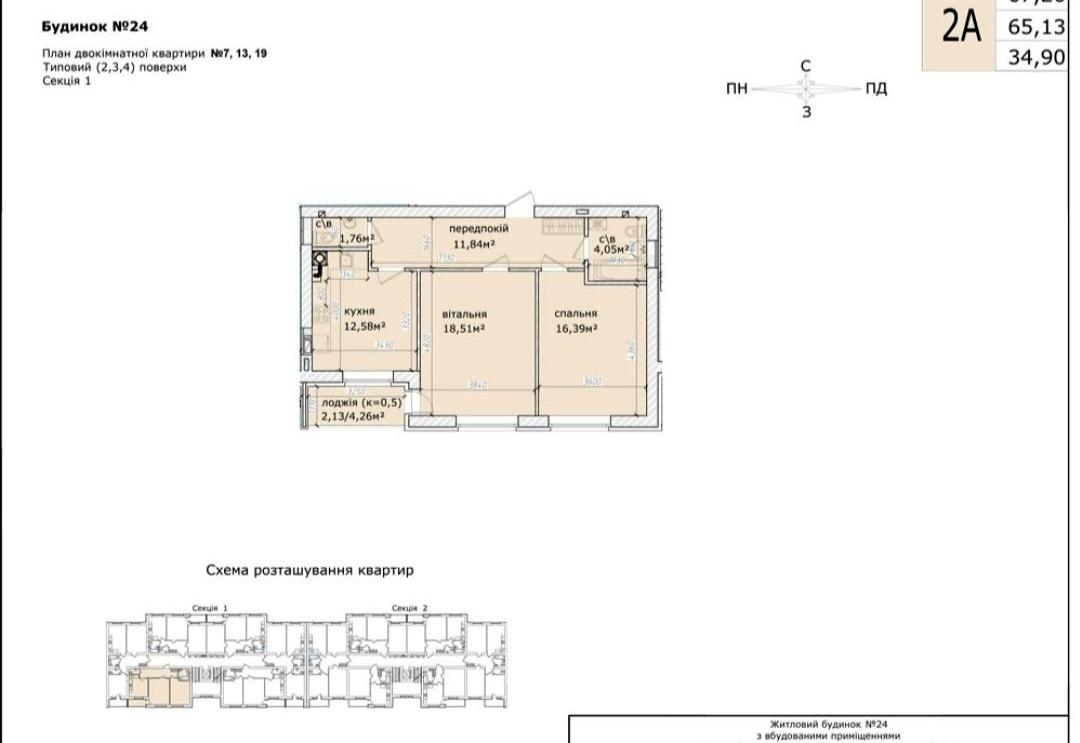
70 / 35 / 13 м²
этаж 1 из 5
Цегляна
2020 год постройки
сегодня
1 нед. назад
19 (сегодня 0, вчера 0)
Описание
ЖК Крешталеві джерела,
ул. Метрологическая 27А, 1/5эт, первый этаж как 2,так как на 1эт, н/ф,кладовые. 70м2.
Односторонняя. Просторная двухкомнатная квартира с комфортной планировкой: кухня-гостинная 13м2 , 2 спальня, балкон. Индивидуальное отопление ( газ.котел). Кирпичний дом.
Квартира расположена в квартале комфорт-класса ФеофанияPark, входящего в состав жилого комплекса Кришталеві джерела.
Дом введен в эксплуатацию, в доме уже проживают. В квартире сделана стяжка пола, двухкамерные и панорамные евроокна, радиаторы, счётчики. Высота потолка 2.78 м. Дома Феофания-Park имеют закрытую охраняемую территорию с паркоместами. Окружающая природа, леса, источники позволяют приятно проводить время вне работы, где места для отдыха созданы наилучшим образом и пользуются большой популярностью. Территория оснащена детскими и спортивными площадками. Подъезды оснащены современной домофонной системой и лифтами. Круглосуточная охрана с пешим патрулем 24/7, территория дома ограждена, въезд через шлагбаум (действует пропускная система), коммуникации от города! В 10-ти минутах езды: ТРК "Магеллан", "Эпицентр", ТЦ "Аракс", ВДНХ, ТРК "Art Mall", ТРЦ "Атмосфера.Удобная транспортная развязка, метро Теремки, Ипподром: 10-15 минут маршрутным транспортом (до 25 минут пешком) В 3х минутах ходьбы от дома расположен парк Феофания, Хотовского леса. Недалеко Национальный музей народной архитектуры Пирогово.
Дом заселен. Документи на руках.
Цена 90 000 у е.Без комис.
Більше 3х.років.
Детали
В квартире 2 комнаты, Технологія будівництва - Цегляна. Планировка комнат Раздельная. Есть газ. Есть балкон. Дом построен в 2020 году. Общее состояние квартиры - Без ремонта. Горячая вода - газовый котел. Количество санузлов: 2. Интернет оптоволоконный. Работает без света - вода, газ, отопление, интернет. Тип кухни - отдельная кухня. Количество спален: 2. Без комиссии
Верифицированный профиль
Platinum partner
Сертификат
СФНУ
20
Лет опыта
1
Верифицированная рекомендация
7
Лет на сайте
Активных объявлений 15
Эксклюзивных объектов 0
Рекламная активность 24649
Последний визит на сайт сегодня
Рекомендовать
Адрес
Ваша жалоба принята!
Выберите способ подтверждения
Чтобы ваша рекомендация была засчитана, подтвердите свою личность
* Личные данные не будут отображаться на сайте и будут служить только для подтверждения личности.
Как верифицироваться через Дію?
Считайте QR-код сканером в приложении Действие и подтвердите авторизацию Действие.
QR-код будет действителен еще 02:00
Как верифицироваться через Bankid?
Верификация BankID откроется в новом окне. Если страница верификации не открылась, значит окно было заблокировано вашим браузером.
Чтобы разрешить открытие окна, выполните следующие шаги:

1. Проверьте адресную строку браузера на наличие сообщения об ошибке или значка блокировки. Нажмите на него.
2. Если у вас установлен блокировщик всплывающих окон, временно отключите его для этого сайта.
3. Проверьте настройки вашего браузера и убедитесь, что блокировка всплывающих окон отключена или настроена на разрешение открытия данного окна.

Если проблема остается нерешенной, свяжитесь с нашей службой поддержки.
Как верифицироваться через Дію?
Верификация Дія откроется в новом окне. Если страница верификации не открылась, значит окно было заблокировано вашим браузером.
Чтобы разрешить открытие окна, выполните следующие шаги:

1. Проверьте адресную строку браузера на наличие сообщения об ошибке или значка блокировки. Нажмите на него.
2. Если у вас установлен блокировщик всплывающих окон, временно отключите его для этого сайта.
3. Проверьте настройки вашего браузера и убедитесь, что блокировка всплывающих окон отключена или настроена на разрешение открытия данного окна.

Если проблема остается нерешенной, свяжитесь с нашей службой поддержки.
Поздравляем!
Рекомендация засчитана!
В скором времени рекомендация появится на странице риелтора.
Рекомендация не засчитана.
Вы уже оставляли рекомендацию данному риелтору.
В пропозиції є незбережені дані.