2
62 000 $
1 409  $/м²
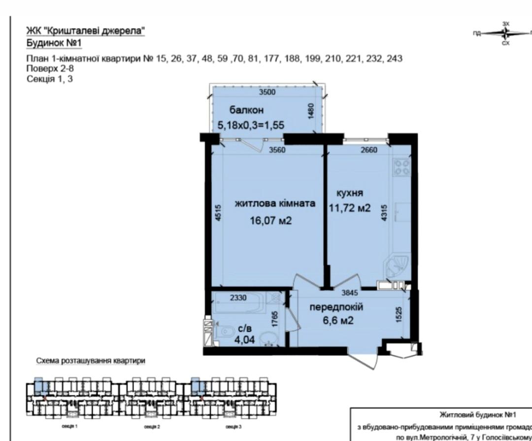
44 / 17 / 13 м²
этаж 5 из 10
Монолітно-каркасна
Спец. проект
2022 год постройки
сегодня
1 нед. назад
79 (сегодня 6, вчера 0)
Описание
Євідновлення! Єоселя!
БЕЗ комісії!
ЖК Кришталеві Джерела,
1к. квартира 44 м2, парк Феофанія.

• Голосіївський район,
вул. Метрологічна, 107А
• 5 поверх 10 поверхового будинку.
• Загальна площа квартири - 44м2 .
• Вікна виходять на вул. Метрологічна,
• Стан – після забудовника, без ремонту.
• Балкон з кімнати, стяжка підлоги, радіатори, лічильники – газовий, на електрику та на воду. Лічильник на тепло – за додаткову плату .
• 5 квартир на поверсі.

• Будинок введений в експлуатацію в 2 кварталі 2022 року, надано поштову адресу. Вже проживають сусіди.
Найближчі будинки у житловому комплексі до парку Феофанія.
• Монолітно-каркасна технологія будівництва, газоблок, утеплювач пінопласт 10см та мінеральна вата, панорамні вікна, ліфти від європейського виробника, підвищена звуко та теплоізоляція зовнішніх стін.
Висота стелі – 2,75м.
• Закрита від сторонніх територія комплексу, охорона 24/7
Ціна 62 000 у е+ оформлення(12% податок,нотаріус,без%)
Готові розглядати госпрограми.
Детали
В квартире 1 комната, Технологія будівництва - Монолітно-каркасна, Тип будинку - Спец. проект. Планировка комнат Раздельная. Есть газ, кухонная плита газовая. Дом построен в 2022 году. Общее состояние квартиры - Без ремонта. Горячая вода - электрический бойлер. Интернет оптоволоконный. Владелец соглашается продать по программе єОселя. Работает без света - вода, газ, отопление, интернет. Без комиссии
Верифицированный профиль
Platinum partner
Сертификат
СФНУ
20
Лет опыта
1
Верифицированная рекомендация
7
Лет на сайте
Активных объявлений 15
Эксклюзивных объектов 0
Рекламная активность 24649
Последний визит на сайт сегодня
Рекомендовать
Адрес
Ваша жалоба принята!
Выберите способ подтверждения
Чтобы ваша рекомендация была засчитана, подтвердите свою личность
* Личные данные не будут отображаться на сайте и будут служить только для подтверждения личности.
Как верифицироваться через Дію?
Считайте QR-код сканером в приложении Действие и подтвердите авторизацию Действие.
QR-код будет действителен еще 02:00
Как верифицироваться через Bankid?
Верификация BankID откроется в новом окне. Если страница верификации не открылась, значит окно было заблокировано вашим браузером.
Чтобы разрешить открытие окна, выполните следующие шаги:

1. Проверьте адресную строку браузера на наличие сообщения об ошибке или значка блокировки. Нажмите на него.
2. Если у вас установлен блокировщик всплывающих окон, временно отключите его для этого сайта.
3. Проверьте настройки вашего браузера и убедитесь, что блокировка всплывающих окон отключена или настроена на разрешение открытия данного окна.

Если проблема остается нерешенной, свяжитесь с нашей службой поддержки.
Как верифицироваться через Дію?
Верификация Дія откроется в новом окне. Если страница верификации не открылась, значит окно было заблокировано вашим браузером.
Чтобы разрешить открытие окна, выполните следующие шаги:

1. Проверьте адресную строку браузера на наличие сообщения об ошибке или значка блокировки. Нажмите на него.
2. Если у вас установлен блокировщик всплывающих окон, временно отключите его для этого сайта.
3. Проверьте настройки вашего браузера и убедитесь, что блокировка всплывающих окон отключена или настроена на разрешение открытия данного окна.

Если проблема остается нерешенной, свяжитесь с нашей службой поддержки.
Поздравляем!
Рекомендация засчитана!
В скором времени рекомендация появится на странице риелтора.
Рекомендация не засчитана.
Вы уже оставляли рекомендацию данному риелтору.
В пропозиції є незбережені дані.