4
29 000 $
671  $/м²
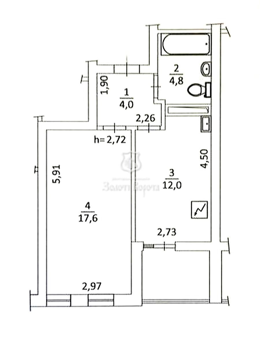
43.2 / 17.6 / 12 м²
этаж 21 из 25
Цегляна
Спец. проект
2021 год постройки
сегодня
6 дней назад
273 (сегодня 23, вчера 49)
Описание
Видова квартира в сучасному будинку!

Пропонується до продажу простора 1-кімнатна квартира загальною площею 43,2 м², розташована в Оболонському районі за адресою: вулиця Автозаводська, 72б. Помешкання знаходиться на 21-му поверсі 25-поверхового монолітно-каркасного будинку, що забезпечує чудові панорамні краєвиди на місто. Будинок офіційно введений в експлуатацію, має сертифікат відповідності та наразі перебуває на стадії підключення комунікацій.

Стан квартири — після будівельників, що є ідеальною можливістю для нових власників втілити будь-які дизайнерські рішення та зробити ремонт за власним смаком у 2026 році. Планування передбачає функціональну кімнату та суміщений санвузол, що дозволяє максимально раціонально використати корисну площу.

Локація об’єкта вважається однією з найкращих у столиці завдяки поєднанню розвиненої інфраструктури та близькості до зон відпочинку. У безпосередній близькості від житлового комплексу «Бережанський» розташований затишний парк, облаштовані спортивні та дитячі майданчики. Побутовий комфорт мешканців забезпечують супермаркети «Сільпо» та «АТБ», що знаходяться в пішій доступності, а громадським транспортом можна швидко дістатися до знаменитого ринку на Героїв Дніпра.

Транспортна розв’язка дозволяє зручно доїхати до станцій метро «Мінська», «Оболонь» та «Героїв Дніпра». Поруч із будинком є зупинки автобусів та трамвайна лінія. Особливою перевагою є можливість за короткий час дістатися до легендарного парку «Наталка» та набережної Дніпра — ідеальних місць для прогулянок та активного дозвілля.

Це вигідна пропозиція для тих, хто шукає нове житло в сучасному комплексі з можливістю створити інтер’єр «з нуля»!

Ціна 29 000 або найкраща пропозиція. Можливий обмін на вашу нерухомість. Усі подробиці про квартиру та про її придбання за телефоном.

Телефонуйте у будь-який час! Ми завжди раді вам допомогти!

Надаємо повний спектр послуг з купівлі та продажу квартир та будинків.

Великий досвід допомоги по купівлі квартир за державними програмами:
1) Є-оселя
2) Житло для ВПО та військових (постанова 280)
3) Сертифікат на зруйноване житло

З нами безпечно, якісно, вигідно!
Детали
В квартире 1 комната, высота потолков 2.7 метра, Технологія будівництва - Цегляна, Тип будинку - Спец. проект. Дом построен в 2021 году. Общее состояние квартиры - Без ремонта. Комиссия за услуги 5 %
Золоті Ворота
Верифицированный профиль
2
Года опыта
2
Верифицированные рекомендации
1
Год на сайте
Активных объявлений 83
Эксклюзивных объектов 18
Рекламная активность 85354
Последний визит на сайт сегодня
Рекомендовать
Адрес
Ваша жалоба принята!
Выберите способ подтверждения
Чтобы ваша рекомендация была засчитана, подтвердите свою личность
* Личные данные не будут отображаться на сайте и будут служить только для подтверждения личности.
Как верифицироваться через Дію?
Считайте QR-код сканером в приложении Действие и подтвердите авторизацию Действие.
QR-код будет действителен еще 02:00
Как верифицироваться через Bankid?
Верификация BankID откроется в новом окне. Если страница верификации не открылась, значит окно было заблокировано вашим браузером.
Чтобы разрешить открытие окна, выполните следующие шаги:

1. Проверьте адресную строку браузера на наличие сообщения об ошибке или значка блокировки. Нажмите на него.
2. Если у вас установлен блокировщик всплывающих окон, временно отключите его для этого сайта.
3. Проверьте настройки вашего браузера и убедитесь, что блокировка всплывающих окон отключена или настроена на разрешение открытия данного окна.

Если проблема остается нерешенной, свяжитесь с нашей службой поддержки.
Как верифицироваться через Дію?
Верификация Дія откроется в новом окне. Если страница верификации не открылась, значит окно было заблокировано вашим браузером.
Чтобы разрешить открытие окна, выполните следующие шаги:

1. Проверьте адресную строку браузера на наличие сообщения об ошибке или значка блокировки. Нажмите на него.
2. Если у вас установлен блокировщик всплывающих окон, временно отключите его для этого сайта.
3. Проверьте настройки вашего браузера и убедитесь, что блокировка всплывающих окон отключена или настроена на разрешение открытия данного окна.

Если проблема остается нерешенной, свяжитесь с нашей службой поддержки.
Поздравляем!
Рекомендация засчитана!
В скором времени рекомендация появится на странице риелтора.
Рекомендация не засчитана.
Вы уже оставляли рекомендацию данному риелтору.
В пропозиції є незбережені дані.