99 000 $
2 705  $/м²
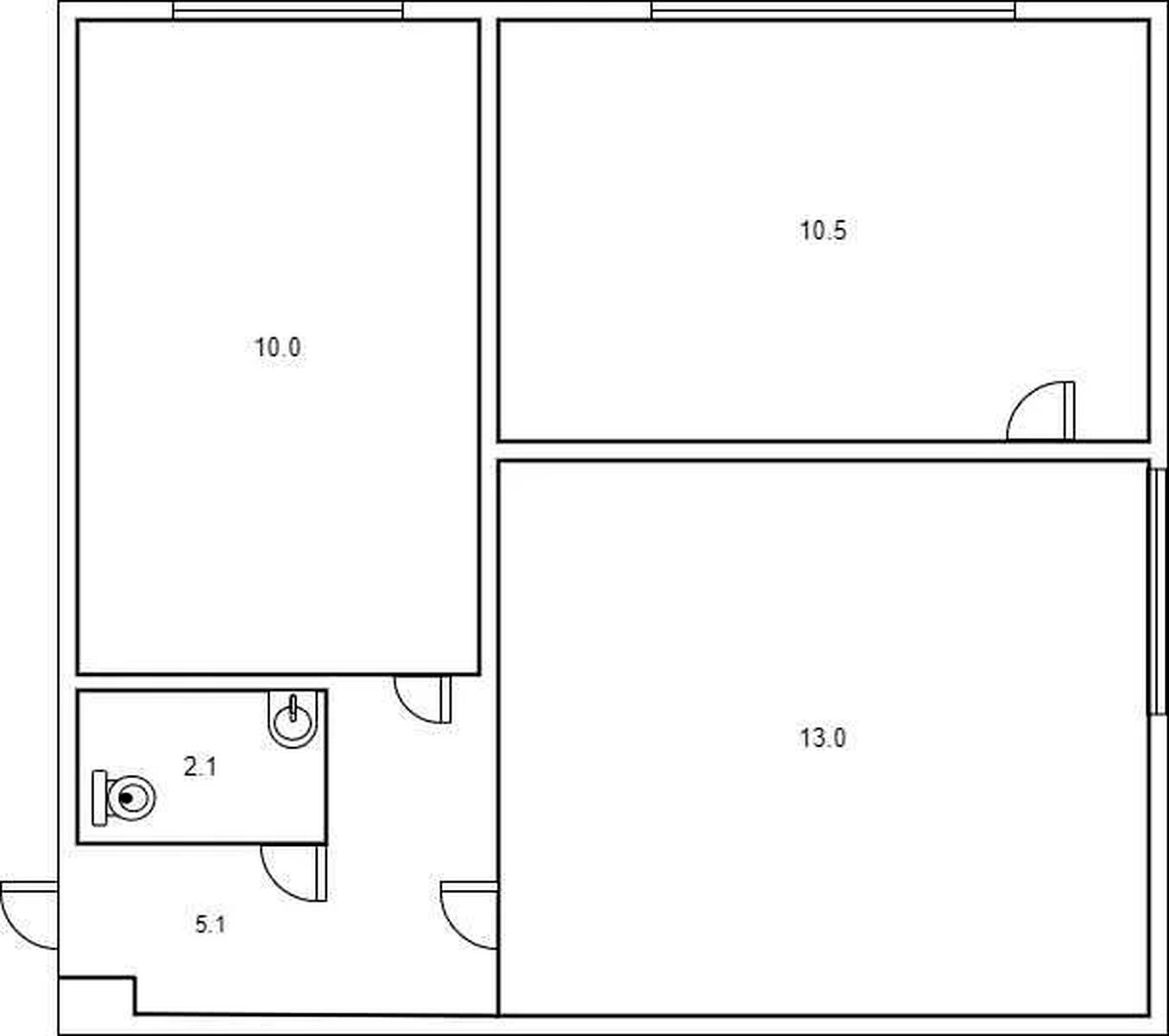
36.6 / 23.5 / 10 м²
этаж 1 из 5
Цегляна
Сталінка
1963 год постройки
вчера
вчера
20 (сегодня 0, вчера 20)
Описание
Комерційний потенціал у центрі Печерська — бул. Лесі Українки, 15

Пропонується приміщення/квартира на 1-му поверсі площею 36,6 м² у дуже прохідній локації.

Локація:

-бул. Лесі Українки, 15
-2 хв до м. Печерська
-15 хв до м. Палац Спорту
-прямий заїзд з бульвару
-біля будинку зупинка «Національний університет»
-у будинку супермаркет 24/7
-поруч Печерський ринок, «Велика Кишеня», КНУТД, Інститут культури

Переваги об’єкта:

-1-й поверх
-прохідна зона
-весь перший поверх будинку вже зайнятий салонами, магазинами та кав’ярнею
-є можливість зробити окремий вхід
-у користуванні близько 100 м² палісадника
-є місце для добудови
-раніше тут працював нотаріус
-наразі об’єкт у житловому фонді, але має високий потенціал для переведення під комерцію

Ідеально підійде під кав’ярню, салон краси, магазин, офіс, нотаріальну/юридичну практику або інший сервісний бізнес.

💰 Ціна: 99 000 $
Комісія агенції за повний супровід угоди, перевірку документів та безпечне оформлення — 4%.
Детали
В квартире 2 комнаты, высота потолков 3 метра, Технологія будівництва - Цегляна, Тип будинку - Сталінка. Дом построен в 1963 году. Общее состояние квартиры - С ремонтом. Комиссия за услуги 4 %
BALENA
Верифицированный профиль
1
Год опыта
3
Верифицированные рекомендации
5
Месяцев на сайте
Активных объявлений 12
Эксклюзивных объектов 0
Рекламная активность 39189
Последний визит на сайт вчера
Рекомендовать
Адрес
Ваша жалоба принята!
Выберите способ подтверждения
Чтобы ваша рекомендация была засчитана, подтвердите свою личность
* Личные данные не будут отображаться на сайте и будут служить только для подтверждения личности.
Как верифицироваться через Дію?
Считайте QR-код сканером в приложении Действие и подтвердите авторизацию Действие.
QR-код будет действителен еще 02:00
Как верифицироваться через Bankid?
Верификация BankID откроется в новом окне. Если страница верификации не открылась, значит окно было заблокировано вашим браузером.
Чтобы разрешить открытие окна, выполните следующие шаги:

1. Проверьте адресную строку браузера на наличие сообщения об ошибке или значка блокировки. Нажмите на него.
2. Если у вас установлен блокировщик всплывающих окон, временно отключите его для этого сайта.
3. Проверьте настройки вашего браузера и убедитесь, что блокировка всплывающих окон отключена или настроена на разрешение открытия данного окна.

Если проблема остается нерешенной, свяжитесь с нашей службой поддержки.
Как верифицироваться через Дію?
Верификация Дія откроется в новом окне. Если страница верификации не открылась, значит окно было заблокировано вашим браузером.
Чтобы разрешить открытие окна, выполните следующие шаги:

1. Проверьте адресную строку браузера на наличие сообщения об ошибке или значка блокировки. Нажмите на него.
2. Если у вас установлен блокировщик всплывающих окон, временно отключите его для этого сайта.
3. Проверьте настройки вашего браузера и убедитесь, что блокировка всплывающих окон отключена или настроена на разрешение открытия данного окна.

Если проблема остается нерешенной, свяжитесь с нашей службой поддержки.
Поздравляем!
Рекомендация засчитана!
В скором времени рекомендация появится на странице риелтора.
Рекомендация не засчитана.
Вы уже оставляли рекомендацию данному риелтору.
В пропозиції є незбережені дані.