Фильтры
682 объявления
682 объявления
SkyLux Estate
275 000 $
1 231 $/м²

Озёрная ул., 5

БЕЗ КОМИССИИ
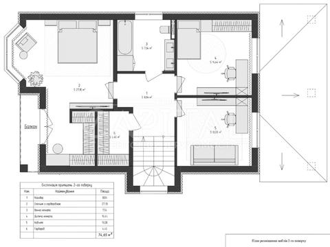
223.4 / 115.2 / 28.4 м²
2 этажа
9 сот
1 нед. назад
Приватний будинок завжди перевага с.Гатне - це передмістя Києва, вулиця Озерна 5. Будинок 223.4м2 на своїй окремій ділянці 9 соток Про будинок: * будинок побудований з червоної цегли, перекриття залізобетон, * 2 поверхи, * є 3 окремі входи в будинок * своя тераса на другому поверсі * зроблені стяжки, розведено електрику * Заведено 16 кВт (3 фази) * Своя скважина. Місце сили - там де ти почуваєш себе в безпеці! Ви плануєте купувати для себе будинок - цей варіант дуже цікавий, адже будинок вже підготовлений до основних робіт під Ваш дизайн, а Ви вже плануєте - де буде Ваша спальня а де кабінет, де буде вхід в будинок -а де буде Ваш особистий простір) Готові на перегляд - набирайте вже...
Риелтор
THE Capital
215 000 $
1 387 $/м²

Луговая ул.

155 / 107 / 30 м²
2 этажа
2 сот
1 нед. назад
Продається будинок з ремонтом у с. Гатне. Просторий будинок на ділянці 2,16 соток поруч з чудовими сусідами, з асфальтованим під’їздом . Є генератор! ГАЗ! Основні характеристики: • площа будинку: 155 м² • площа ділянки: 2,16 соток • електрика: потужність 10 кВт • газ: 2 контурний котел • водопостачання: свердловина 60 метрів • каналізація: 2 септика об’ємом 6 кубів із переливом • ландшафтний дизайн: рулонний газон з автоматичним поливом • кількість кімнат: 4 спальні майстер спальня з гардеробною, дитяча кімната. дитяча кімната, гостьова кімната, санвузел 1, санвузел 2, кухня вітальня, бойлерна, тераса. Будинок готовий для проживання, з ремонтом і технікою (кухня, сантехніка, ванна, душові...
Риелтор
THE Capital
315 000 $
1 969 $/м²

Академическая ул.

160 / 100 / 25 м²
2 этажа
6 сот
1 нед. назад
Продаж приватного житла в Гатному! Представляємо вашій увазі чарівний будинок у Гатному. Цей просторий двоповерховий будинок площею 160 кв. м з радісною атмосферою дарує вам затишок та комфорт. Власність включає 2 спальні і простору дитячу кімнату,гардеробну, що робить його ідеальним вибором для сімейного життя. На території будинку розташовано чудовий ландшафтний дизайн та надано простір 6 соток для ваших розваг та відпочинку, де можна створити свою мрійливу зону відпочинку. Крім того, весь діючий побутовий прилад залишається в вашому розпорядженні, що забезпечує вам готовність до проживання без додаткових витрат. Свяжіться з нами, щоб подивитися цей унікальний об'єкт в Гатному! Будинок...
Риелтор
THE Capital
570 000 $
1 357 $/м²

Киевская ул., 10

420 / 200 / 20 м²
2 этажа
15 сот
1 нед. назад
Предлагаем вашему вниманию уютный и современный дом в живописном районе Гатного, всего в 10-ти минутах от метро Теремки. Особенности: Цокольный етаж. Асфальтированный подъезд. Обжитая улица с хорошими соседями. Построен в 2015 году, полностью готов к проживанию. Навес на 2 машины, ступеньки из натурального камня. Комфорт и безопасность: Система теплых полов, интернет, сигнализация и видеонаблюдение. Дорогие отделочные материалы и мебель. Участок и ландшафтный дизайн: Ухоженный участок с автополивом. Дополнительное здание для хозяйственных нужд и зона для барбекю. Энергетическая независимость: Газовое отопление и действующий камин. Скважина, котел Viesmann, автономные аккумуляторы на 6 к...
Риелтор
THE Capital
230 000 $
1 586 $/м²

Пограничная ул.

145 / 100 / 32 м²
2 этажа
6 сот
1 нед. назад
Продажа современного дома 145 квадратных метров, оснащён всей необходимой техникой ,планировка дома: Первый этаж: -кухня гостиная с выходом на терассу -гардероб -санузел с ванной Второй этаж: - три отдельные спальни - санузел с ванной В доме электро отопление, септик на 12 кубов, видеокамеры на участке, система охраны,автоматические ворота, парковка для двух авто, все продумано до мелочей. Генератор на 8 кВт. Характеристики постройки: Фундамент ленточный , стены 25 газоблок плюс утеплитель, крыша двойной утеплитель и usb панель , потолки гипсокартон , двойная прокладка проводов , стабилизаторы 3 шт по 15 кВт каждый , скважина 50 метров,система очистки воды. Есть видеообзор дома, звоните, пр...
Риелтор
115 000 $
821 $/м²

Ботаническая ул.

БЕЗ КОМИССИИ єОселя єВідновлення
140 / 78 / 32 м²
2 этажа
2 сот
1 нед. назад
Продаж якісних дуплексів у Гатному — без комісії! Пропонується новий двоповерховий дуплекс від забудовника у зручній локації біля Києва, у селі Гатне. Будинок збудований із якісних, енергоефективних матеріалів та має продумане планування, що забезпечує комфортне проживання для всієї родини. Основні характеристики: Площа будинку: 140 м² Ділянка: 2,4 сотки Поверховість: 2 Кількість кімнат: 4 Тип будинку: дуплекс Тип стін: керамоблок Утеплення: мінеральна вата Покрівля: металочерепиця Опалення: індивідуальне газове Стан: після будівельників Продаж без комісії Комунікації: Електрика — 7 кВт Газ підведений Власна свердловина Каналізація — септик Переваги об’єкта: Сучасна архіт...
Риелтор
PRIMES
450 000 $
1 552 $/м²

Кленовая ул.

БЕЗ КОМИССИИ
290 / 125 / 30 м²
2 этажа
15 сот
1 нед. назад
Пропонується на продаж двоповерховий цегляний будинок площею 290 м² із затишним гостьовим будиночком із сауною, приватним ставком, басейном і неймовірно мальовничим ландшафтом на ділянці 15 соток. Розташування — село Гатне, найближче передмістя столиці, всього 5 хвилин автівкою до метро Теремки. Тиха й доглянута вулиця з рівним асфальтованим покриттям. Планування: 1 поверх: - просторий передпокій, - хол із виходом у двір, - велика гардеробна, - кабінет, - кухня, - простора вітальня з каміном, - котельня, - гостьовий санвузол із душем, - внутрішній прохід у гараж, - гараж. 2 поверх: - майстер-спальня з власним великим санвузлом і гардеробною, - дитяча кімната, - гостьова спальня, - один сан...
Риелтор
PRIMES
450 000 $
1 525 $/м²

Абрикосовая ул.

295 / 120 / 24 м²
2 этажа
15 сот
1 нед. назад
#27372 Предлагается на продажу двухэтажный кирпичный дом площадью 295,2 м² с уютным гостевым домом с сауной, частным прудом, бассейном и невероятно живописным ландшафтом на участке 15 соток. Расположение — село Гатное, ближайший пригород столицы, всего 5 минут авто до метро Теремки. Тихая и ухоженная улица с ровным асфальтированным покрытием. Планировка: 1 этаж: - просторная прихожая, - холл с выходом во двор, - большая гардеробная, - кабинет, - кухня, - просторная гостиная с камином, - котельная, - гостевой санузел с душем, - внутренний проход в гараж, - гараж. 2 этаж: - мастер-спальня с собственным большим санузлом и гардеробной, - детская комната, - гостевая спальня, - один санузел с бо...
Риелтор
THE Capital
250 000 $
1 736 $/м²

Петра Янчука ул.

144 / 100 / 20 м²
2 этажа
5 сот
1 нед. назад
Запрошуємо вас на перегляд чудового окремо стоячого будинку, розташованого в с. Гатне Києво-Святошинського району. Цей будинок готовий стати вашим новим домом, де ви зможете насолоджуватися комфортом і затишком, що надають якісний ремонт і меблі. Загальна площа — 144 кв. м У цьому будинку передбачено наступне планування: - простора кухня-вітальня, яка стане центром сімейних зборів та вечірніх посиденьок - три затишні спальні, де можна юуде відпочити після напруженого дня; - два просторі санвузли; - чудова тераса, де ви зможете насолоджуватися свіжим повітрям та красивими краєвидами. Вся необхідна техніка: телевізор, духова шафа, посудомийна машина, прально-сушильна, бойлер на 200 л Меблі...
Риелтор
103 000 $
805 $/м²

Октябрьская ул. (Жовтнева)

БЕЗ КОМИССИИ Відеотур
128 / 72 / 36 м²
2 этажа
2 сот
1 нед. назад
Продаж дуплексу в центрі Гатного — без комісії! Пропонується сучасний двоповерховий дуплекс площею 128 м², розташований у затишному та спокійному районі села Гатне — всього 5 км від Києва. Будинок збудований із якісних матеріалів, має власну ділянку, паркомісце, терасу та всі необхідні комунікації. Основні характеристики: Площа будинку: 128 м² Ділянка: 2,8 сотки Поверховість: 2 Кількість кімнат: 3 Тип будинку: дуплекс Стан: після будівельників Опалення: індивідуальне газове Тип стін: газоблок, утеплення пінопластом 100 мм Перекриття: монолітне Утеплення даху: мінвата 200 мм Продаж без комісії Комунікації: Газ підведений Електрика заведена Власна свердловина Каналізація — се...
Риелтор
Novator Sofia
103 000 $
805 $/м²

Октябрьская ул. (Жовтнева)

БЕЗ КОМИССИИ єОселя
128 / 90 / 30 м²
2 этажа
2 сот
1 нед. назад
Продаж чудового дуплексу у Гатному. БЕЗ КОМІСІЇ. Сучасний та просторий дуплекс у затишному, тихому місці — чудовий варіант для комфортного життя за містом з усіма перевагами міської інфраструктури. Основні характеристики: • Загальна площа — 128 м² • Ділянка — 2,8 сотки • Планування: 4 окремі кімнати Функціональність: 1-й поверх: передпокій, гостьова кімната, технічне приміщення, простора кухня-вітальня з виходом у двір 2-й поверх: дві окремі спальні, санвузол, ще одна кімната з виходом на балкон Будівництво та комунікації: • Електрика — 10 кВт • Газ заведено • Свердловина — 53 м • Каналізація — два переливних септики • Стіни — газоблок + утеплення пінопластом 100 мм • Перекриття та сходи...
Риелтор
THE Capital
215 000 $
1 344 $/м²

Абрикосовая ул.

160 / 95 / 25 м²
2 этажа
7 сот
1 нед. назад
СТАРТ ПРОДАЖІВ ПЕРШОЇ ЧЕРГИ!!! Будинки Преміум класу у Закритому комплексі "Благовісний", на території комплексу - буде басейн, тенісний корт та дитячий майданчик. Розташування містечка с.Гатне, 5хв на авто до метро Теремки всього 3.5км!!! Продаж з можливістю розтермінування платежів (за домовленістю, без %). Працюємо з програмою єОселя та єВідновлення. Ділянки будинків від 5.3 соток до 7.15 соток. - Вартість будинків з ділянками по 7.15 сотки - 215.000$ - Вартість будинків з ділянками по 5.5 сотки - 185.000$ Вулиця заселена, сусіди- будинки без густої забудови. Проїзд через шлагбаум та охорону. КОМПЛЕКТАЦІЯ: 1. Фундамент — монолітний армований с заглибленням 150смх40см. 2. Утеплений ц...
Риелтор
THE Capital
207 000 $
1 428 $/м²

Амбулаторный пер.

145 / 100 / 25 м²
2 этажа
6 сот
1 нед. назад
Продажа дома в Гатном, 20 минут на машине до центра, очень классная локация. Дом двухэтажный, общей площадью 145м кв. Планировка: - кухня студия - 2 санузла -гардероб - 3 отдельные спальни Предусмотрена парковка на 3 машины, участок 4 сотки, засеян газоном. Полностью оборудован. Есть видеонаблюдение, датчики движения, стабилизаторы электричества, генератор 7 кВт. Вся бытовая техника (телевизоры, холодильник, посудомойка, стиральная машина, кондиционеры), меблирован. Скважина, септик, электрическое отопление. Развита инфраструктура, все необходимое в близкой доступности. Рядом озеро, дет.сад, школа, супермаркеты. A18768
Риелтор
THE Capital
320 000 $
1 107 $/м²

Абрикосовая ул.

289 / 126 / 32 м²
2 этажа
8 сот
1 нед. назад
Сучасний будинок у тихому передмісті — ідеальне місце для життя вашої родини. Просторий будинок 283 м² у селі Гатне. 8 сотих власної землі, тиша, комфорт і всього 10 хвилин до Києва. -283 м² — три повноцінні поверхи. -Простора кухня-вітальня, кімнати, гардеробні, балкон, санвузли на кожному поверсі.На третьому поверсі є можливість для кінотеатру (суцільний поверх в 103 м²). -Новий фасад, великі вікна, капітальні сходи, балкон з панорамним видом. -Підведені всі комунікації: газ, вода, електрика, інтернет. -Ділянка 8 сотих — рівна, огороджена, з можливістю облаштувати сад,терасу чи басейн. -Асфальтований під’їзд, сучасна забудова, доброзичливі сусіди. Не далеко розташований “Характер парк»....
Риелтор
THE Capital
357 000 $
1 552 $/м²

Академическая ул.

БЕЗ КОМИССИИ
230 / 100 / 30 м²
2 этажа
8 сот
1 нед. назад
Пропонується до продажу дуже якісний двоповерховий будинок площею 230 м2, на ділянці 8 соток, за 2 км від Києва в мальовничому селі - Гатне. Цей будинок будували для себе люди, які дуже добре розбираються у будівництві. Ремонт зроблений у 2021р. Планування: 1. Перший поверх: - Простора вітальня з каміном та функціональною кухнею, має вихід на терасу; - Сауна з душовою; - Гостьовий санвузол; - Гардеробна кімната; - Хоз.приміщення, котельна. 2. Другий поверх: - Господарська майстер спальня зі своїм санвузлом; - Дитяча спальня; - Кімната під тренажерний зал/ вільного призначення; - Санвузол з душовою; - Гардеробна. - Лоджія з теплою підлогою, підійде під спротзал або зимовий сад Будинок обла...
Риелтор
THE Capital
200 000 $
1 143 $/м²

Абрикосовая ул.

175 / 100 / 25 м²
2 этажа
7 сот
1 нед. назад
Пропонується до продажу будинок в Гатному Матеріал стін керамоблок 250, утеплення термопанелямі 100 мм., Дах металочерепиця, утеплення термопанелі 200 мм., В будинок заведена електроенергія 16 кВт з лічильником день/ніч і тарифом на опалення -50%. Газ, Каналізація - централізована Заведена вода з індивідуальної свердловини 54 м. Фасад термопонелі, Монолітний фундамент, Енергозберігаючі вікна VDS. 4 спальні 2 санвузли кухня-вітальня Площа ділянки 7 соток. Залитий майданчик під терасу 20 м2 та машину 50 м2. До метро Теремки 2,3 км, 5 хв на авто Повний пакет документів оформлений на ділянку та будинок. При бажанні - допоможемо з ремонтом за вашим смаком, є ремонтна бригада та досвід співп...
Риелтор
THE Capital
265 000 $
1 767 $/м²

Счастливый пер.

150 / 110 / 40 м²
2 этажа
4 сот
1 нед. назад
Гатне Будинок повністю укомплектований. дуже якісний Площа 150м² Ділянка 4 сотки Чотири кімнати Вбудована кухня Побутова техніка Гардеробна Два санвузли Тепла підлога Автоворота, Автонавіс на два авто Парковка Рулонний газон, автополив Ландшафтний дизайн Затишна оселя чекає нових власників! A22793
Риелтор
PRIMES
480 000 $
1 627 $/м²

Киевская ул.

295 / 120 / 24 м²
2 этажа
15 сот
1 нед. назад
Пропонується на продаж двоповерховий цегляний будинок площею 295,2 м² із затишним гостьовим будиночком із сауною, приватним ставком, басейном і неймовірно мальовничим ландшафтом на ділянці 15 соток. Розташування — село Гатне, найближче передмістя столиці, всього 5 хвилин автівкою до метро Теремки. Тиха й доглянута вулиця з рівним асфальтованим покриттям. Планування: 1 поверх: - просторий передпокій, - хол із виходом у двір, - велика гардеробна, - кабінет, - кухня, - простора вітальня з каміном, - котельня, - гостьовий санвузол із душем, - внутрішній прохід у гараж, - гараж. 2 поверх: - майстер-спальня з власним великим санвузлом і гардеробною, - дитяча кімната, - гостьова спальня, - один с...
Риелтор
Garant Expert
195 000 $
1 300 $/м²

Пограничная ул.

БЕЗ КОМИССИИ Добрый Дуб
150 / 80 / 25 м²
2 этажа
6 сот
1 нед. назад
Продається окремий будинок у с. Гатне Площа будинку — 150 м² + тераса 27 м² Ділянка — 6,6 соток, огороджена парканом 4 кімнати, простора кухня-вітальня з виходом на накриту терасу. Облаштована територія: зроблено відмостку, вимощені доріжки, місце для авто, тераса. Технологія будівництва: • Газоблок 500 мм + утеплення пінопластом 100 мм (щільність 35) • Фасад з термопанелей — стійкий до погодних умов • Монолітний фундамент і перекриття • Дах: металочерепиця, утеплена мінватою 200 мм • Вікна WDS, 5-камерний профіль, 2-камерний склопакет Комунікації: • Газ заведено, встановлено лічильник • Електрика: 16 кВт, 3 фази, лічильник день/ніч • Свердловина 55 м, встановлений насос • Септик 12 м³ Л...
Риелтор
Garant Expert
357 000 $
1 552 $/м²

Гатне

БЕЗ КОМИССИИ
230 / 90 / 25 м²
2 этажа
7 сот
1 нед. назад
Продаж сучасного будинку з басейном, сауною та BBQ-зоною в с. Гатне, лише 5 хв від Києва! Пропонуємо стильний будинок загальною площею 230 м2, розташований на доглянутій ділянці 7 соток. Планування: - 2-й поверх: три спальні, два санвузли, гардеробна, засклена лоджія з теплою підлогою - 1-й поверх: простора кухня-вітальня з каміном та виходом на терасу, санвузол, електросауна з кімнатою відпочинку, гардероб, технічне приміщення Комфорт і зручності: - Тераса з BBQ-зоною та підведеною гарячою водою - Басейн з підігрівом, підсвіткою та протитоком - Міні спортзал - Автополив та вуличне освітлення - Ландшафтний дизайн - Навіс на 3 авто - Автоматичні ворота Технічні характеристики: - Стіни: га...
Риелтор