700 000 $
2 333  $/м²
Центральная ул.
БЕЗ КОМИССИИ Нижние сады
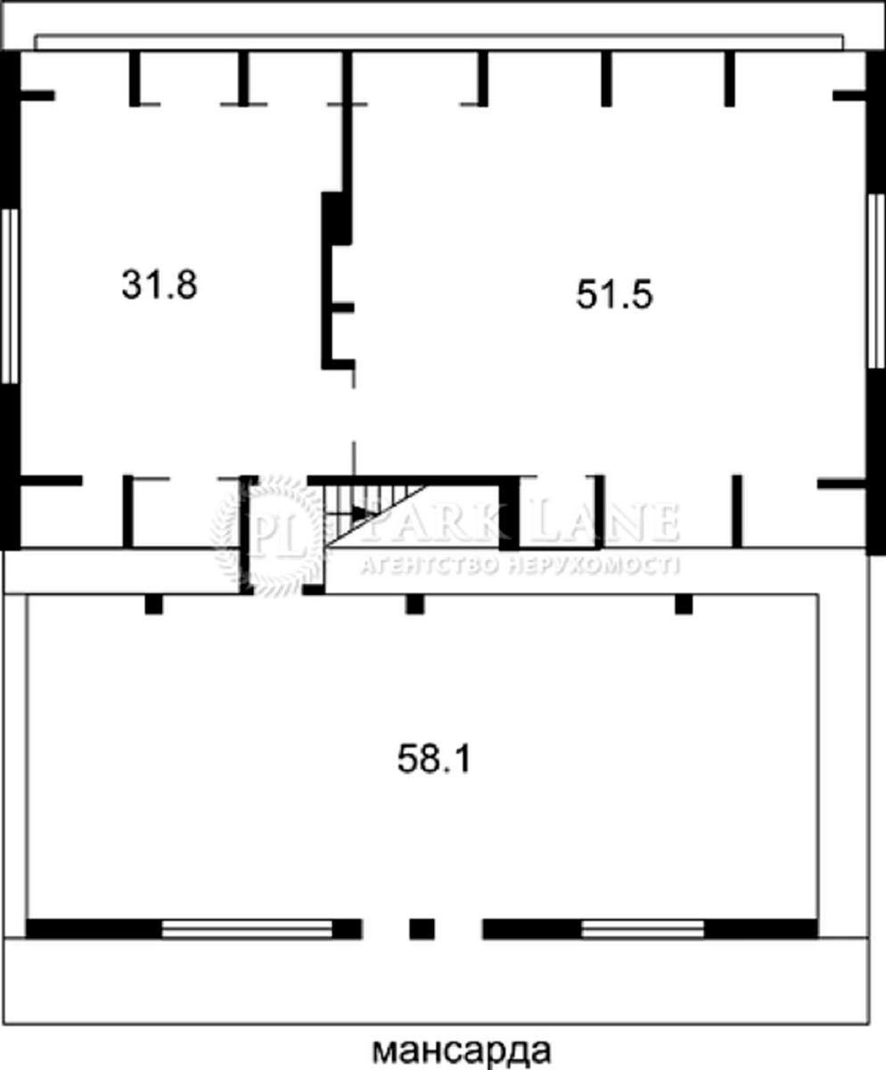
300 / 230 / 56 м²
2 этажа
52 сот
Дом
5 комнат
2007 год постройки
сегодня
2 мес. назад
13 (сегодня 0, вчера 0)
Описание
Центральна, Осокорки біля другої Фори.
Пропонується неперевершений будинок для життя на березі каналу в мальовничому місці Осокорків, 15 хв від метро Славутич.
Сукуність ділянок 52 сотки.
- Локація:
Закрите cадове товариство, з охороною, пропускною системою,асфальтованими дорогами та відеонаглядом.
Прямий вихід до води,зона відпочинку.
Чудова набережна каналу, який ніколи не замерзає.
поруч ліс - свіже повітря, прогулянки, гриби й абсолютний спокій
у пішій доступності магазиниFora .

Два будинки гостьовий та центральний 2007 року побудови.
-Планування.
В будинку:
три спальні,
кабінет,
спортзал,
два санвузли,
сауна та
велика кухня вітальня.

Три варінти опалення котлами, майстерня та два гаражі.
Септик, скважина 50 метрів, очистні системи для питної води.

Инвектор 12.5 кв батореи 25кв
Емкость15 кв

Окремо чудовий камінний зал, для збору сім'ї.

Садиба яка стане затишним місцем для великої родини!
Детали
Дом, 2 этажа, 5 комнат. Площадь участка 52 сотки. Планировка комнат Раздельная. В доме есть Камин, Ванна, Гараж, Сауна. Дом построен в 2007 году. Общее состояние дома - С ремонтом. Без комиссии
В доме есть
  • Камин
  • Ванна
На участке есть
  • Гараж
  • Сауна
Park Lane
Верифицированный профиль
Platinum partner
12
Лет опыта
1
Верифицированная рекомендация
2
Года на сайте
Активных объявлений 12
Эксклюзивных объектов 0
Рекламная активность 12510
Последний визит на сайт сегодня
Рекомендовать
Адрес
Киев, Центральная ул., Дарницкий р-н
Кадастровый номер 3220882600:04:001:****
Ваша жалоба принята!
Выберите способ подтверждения
Чтобы ваша рекомендация была засчитана, подтвердите свою личность
* Личные данные не будут отображаться на сайте и будут служить только для подтверждения личности.
Как верифицироваться через Дію?
Считайте QR-код сканером в приложении Действие и подтвердите авторизацию Действие.
QR-код будет действителен еще 02:00
Как верифицироваться через Bankid?
Верификация BankID откроется в новом окне. Если страница верификации не открылась, значит окно было заблокировано вашим браузером.
Чтобы разрешить открытие окна, выполните следующие шаги:

1. Проверьте адресную строку браузера на наличие сообщения об ошибке или значка блокировки. Нажмите на него.
2. Если у вас установлен блокировщик всплывающих окон, временно отключите его для этого сайта.
3. Проверьте настройки вашего браузера и убедитесь, что блокировка всплывающих окон отключена или настроена на разрешение открытия данного окна.

Если проблема остается нерешенной, свяжитесь с нашей службой поддержки.
Как верифицироваться через Дію?
Верификация Дія откроется в новом окне. Если страница верификации не открылась, значит окно было заблокировано вашим браузером.
Чтобы разрешить открытие окна, выполните следующие шаги:

1. Проверьте адресную строку браузера на наличие сообщения об ошибке или значка блокировки. Нажмите на него.
2. Если у вас установлен блокировщик всплывающих окон, временно отключите его для этого сайта.
3. Проверьте настройки вашего браузера и убедитесь, что блокировка всплывающих окон отключена или настроена на разрешение открытия данного окна.

Если проблема остается нерешенной, свяжитесь с нашей службой поддержки.
Поздравляем!
Рекомендация засчитана!
В скором времени рекомендация появится на странице риелтора.
Рекомендация не засчитана.
Вы уже оставляли рекомендацию данному риелтору.
В пропозиції є незбережені дані.