85 000 $
708  $/м²
Полковника Гуляева просп. (Маршала Жукова)
Комиссия 5% Чорноморка-2
120 / 70 / 20 м²
3 этажа
1 сот
Таунхаус
4 комнаты
1 нед. назад
1 нед. назад
0 (сегодня 0, вчера 0)
Описание
38827 У продажу таунхаус на 120м2.
Стан від будівельника, що дозволить вам зробити ремонт на власний смак.
Є дизайн-проект від агенства.

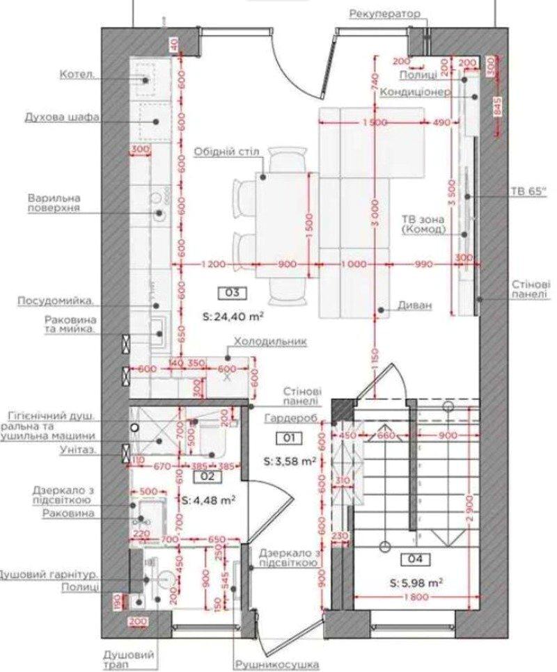
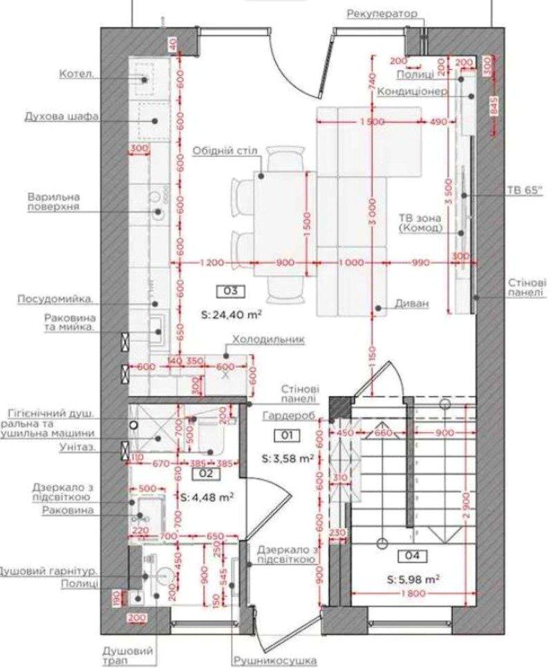
3 поверхи, 120 м², 2 паркомісця, власна барбекю-зона, висота стелі 3 м.
Електрика, вода, газ, інтернет, каналізація – вже все у будинку.

6 відеокамер, дзвінок та відеоочок на вході в комплекс, доступ з телефону, автоматичні ворота на пульті або по дзвінку, парковка перед комплексом, якісний фундамент та утеплення, сучасне оздоблення фасаду та двору, тротуарна плитка у всьому комплексі, освітлення.


До маршруток 200 м, до Метро, Епіцентру, Сільпо, Таврії, АТБ та оптового ринку – 3 хвилини на машині. "Дайберг" - аквапарк,ресторан, басейн, парк, міністадіон, спортмайданчик – 1 хв., море – 10 хв.
Поруч: НП, садки, школи та інше.
Детали
Таунхаус, 3 этажа, 4 комнаты. Материал стен – кирпичный. Площадь участка 1 сотка. Высота потолков 3 метра. Тип кухни - кухня-студия. В доме есть Зона мангала, Терраса. Общее состояние дома - Без ремонта. Количество санузлов: 2. Количество паркомест: 2. Количество спален: 3. Комиссия за услуги 5 %
На участке есть
  • Зона мангала
  • Терраса
Верифицированный профиль
1
Неделя на сайте
Активных объявлений 20
Эксклюзивных объектов 0
Рекламная активность 438
Последний визит на сайт сегодня
Рекомендовать
Планировка

Адрес
с. Лиманка, Полковника Гуляева просп. (Маршала Жукова)
Ваша жалоба принята!
Выберите способ подтверждения
Чтобы ваша рекомендация была засчитана, подтвердите свою личность
* Личные данные не будут отображаться на сайте и будут служить только для подтверждения личности.
Как верифицироваться через Дію?
Считайте QR-код сканером в приложении Действие и подтвердите авторизацию Действие.
QR-код будет действителен еще 02:00
Как верифицироваться через Bankid?
Верификация BankID откроется в новом окне. Если страница верификации не открылась, значит окно было заблокировано вашим браузером.
Чтобы разрешить открытие окна, выполните следующие шаги:

1. Проверьте адресную строку браузера на наличие сообщения об ошибке или значка блокировки. Нажмите на него.
2. Если у вас установлен блокировщик всплывающих окон, временно отключите его для этого сайта.
3. Проверьте настройки вашего браузера и убедитесь, что блокировка всплывающих окон отключена или настроена на разрешение открытия данного окна.

Если проблема остается нерешенной, свяжитесь с нашей службой поддержки.
Как верифицироваться через Дію?
Верификация Дія откроется в новом окне. Если страница верификации не открылась, значит окно было заблокировано вашим браузером.
Чтобы разрешить открытие окна, выполните следующие шаги:

1. Проверьте адресную строку браузера на наличие сообщения об ошибке или значка блокировки. Нажмите на него.
2. Если у вас установлен блокировщик всплывающих окон, временно отключите его для этого сайта.
3. Проверьте настройки вашего браузера и убедитесь, что блокировка всплывающих окон отключена или настроена на разрешение открытия данного окна.

Если проблема остается нерешенной, свяжитесь с нашей службой поддержки.
Поздравляем!
Рекомендация засчитана!
В скором времени рекомендация появится на странице риелтора.
Рекомендация не засчитана.
Вы уже оставляли рекомендацию данному риелтору.
В пропозиції є незбережені дані.