89 000 $
820
$/м²
Дитячая ул.
Комиссия 2%
108.5 / 50 / 40 м²
2 этажа
2 сот
Дом
3 комнаты
3 нед. назад
5 мес. назад
27 (сегодня 0,
вчера 0)
Описание
Продаж котеджу с. Рудно (р-н Семінарії)
Сучасний двоповерховий котедж у спокійній локації біля Львівської духовної семінарії. Поруч зупинка, магазини — комфортне та зручне місце для сім’ї.
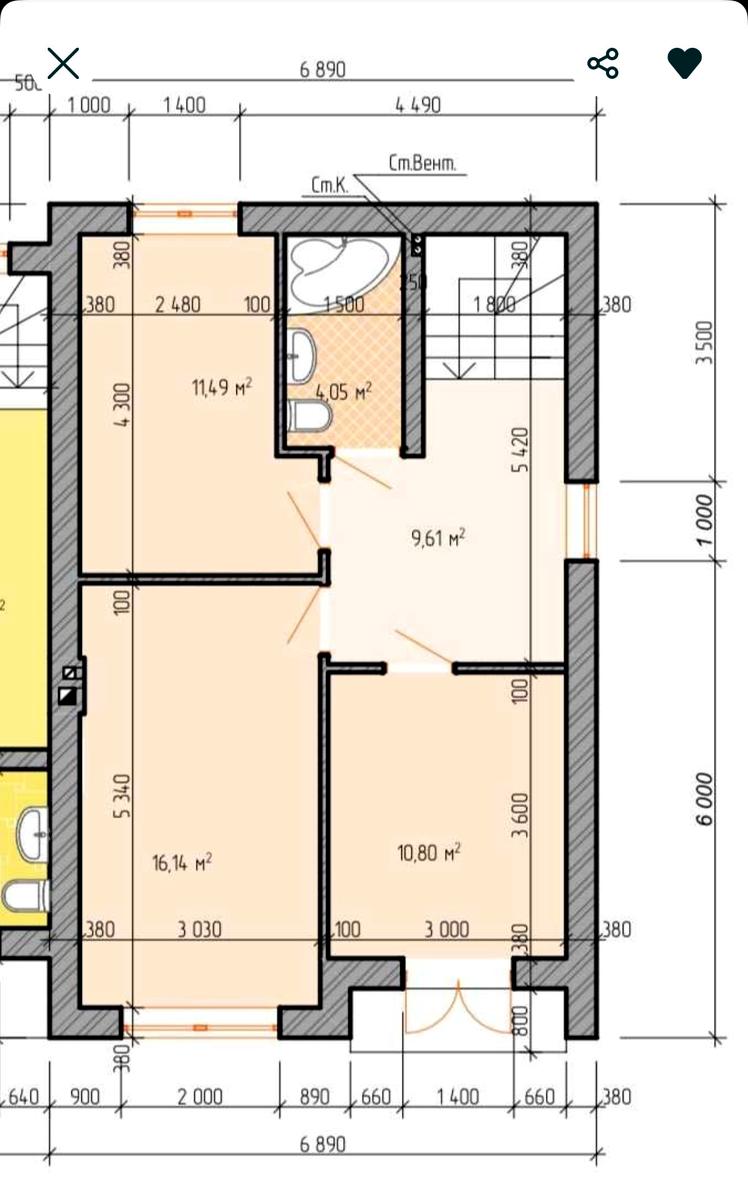
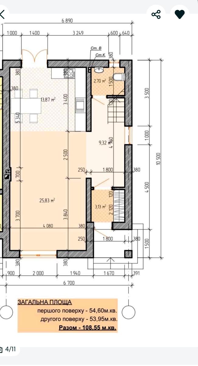
Площа: 108,5 м²
Ділянка: 2,3 сотки
Поверхів: 2
Планування:
— 1 поверх: простора кухня-вітальня з виходом на терасу, санвузол
— 2 поверх: 3 окремі кімнати, санвузол
Характеристики:
— утеплення фасаду пінопластом
— покрівля: металочерепиця
— будинок на етапі будівництва
— окремий заїзд під шлагбаум
— броньовані двері
Комунікації: електрика, центральне водопостачання, септик (в перспективі центральна каналізація), газ підведений.
Ціна: 89 000 $
Телефонуйте — організую перегляд у зручний час!
Сучасний двоповерховий котедж у спокійній локації біля Львівської духовної семінарії. Поруч зупинка, магазини — комфортне та зручне місце для сім’ї.
Площа: 108,5 м²
Ділянка: 2,3 сотки
Поверхів: 2
Планування:
— 1 поверх: простора кухня-вітальня з виходом на терасу, санвузол
— 2 поверх: 3 окремі кімнати, санвузол
Характеристики:
— утеплення фасаду пінопластом
— покрівля: металочерепиця
— будинок на етапі будівництва
— окремий заїзд під шлагбаум
— броньовані двері
Комунікації: електрика, центральне водопостачання, септик (в перспективі центральна каналізація), газ підведений.
Ціна: 89 000 $
Телефонуйте — організую перегляд у зручний час!
Детали
Дом, 2 этажа, 3 комнаты. Площадь участка 2 сотки. Планировка комнат Раздельная. В доме есть Ванна, Терраса. Общее состояние дома - Без ремонта. Комиссия за услуги 2 %
В доме есть
На участке есть





















