Фильтры
10 объявлений
10 объявлений
АН "Compass"
квартира по адресу Ивана Рубчака ул., (Будинок) квартира по адресу Ивана Рубчака ул., (Будинок) квартира по адресу Ивана Рубчака ул., (Будинок)
52 000 $
990 $/м²

Ивана Рубчака ул., (Будинок)

1 комната
53 / 15 / 15 м²
этаж 1 из 5
сегодня
Продаж затишної квартири в сучасній новобудові від надійного забудовника Карпатбуд у мальовничому селі Солонка. Поверх: 1/5. Загальна площа: 52,5 м². Кухня-студія та спальня, два санвузли, гардеробна. Особливість об’єкта — власна тераса-патіо, яка не входить у загальну площу квартири. Це ваш особистий куточок просто неба — ідеально для ранкової кави, відпочинку або зелених посадок. Справжній подарунок для покупця! Здача будинку: I квартал 2026 року. Продаж по переуступці. Зручне та продумане планування. Сучасний житловий комплекс у тихому районі. Індивідуальне опалення - газовий котел. Двосекційний малоповерховий будинок лише на 74 квартири — це приватність, спокій і мінімум сусідів. Будів...
PRO аккаунт
Риелтор
Сертифицированный риелтор СФНУ
26 600 $
700 $/м²

Владимира Мономаха ул., 1а

1 комната
38 / 11 / 18 м²
этаж 2 из 5
сегодня
Акційна ціна до кінця березня ! 700 дол за м кв , дешевше, ніж в забудовника. 26600 дол. за квартиру. Продається однокімнатна квартира в Солонці по вул. В.Мономаха. Забудовник Солжитлобуд (SGB ) ЖК "Дружній Двір". Загальна площа 38м кв. 3 пов з 5. Перший комерція. Цегляний будинок. Індивідуальне опалення., штукатурені стіни, вхідні двері, вікна, перегородки. Встановлення котла індивідуально по замовленню. Без балкона. Без ліфта. Здача будинку планується в кінці 2026 р. Зручна транспортна розвʼязка. На авто до найближчого ТРЦ 5 хв., до автобусної зупинки 15 хв. пішки. Поряд школа. В квітні ціна зросте до 780 дол м кв. Переуступка. АН Ваш ріелтор. [телефон скрыт], [телефон скрыт]
Риелтор
Malinka Real Estate
44 500 $
991 $/м²

Наварийская ул., 27

1 комната
45 / 11 / 12 м²
этаж 2 из 3
сегодня
ПРОДАЖ КВАРТИРИ В 0-ЦИКЛІ Адреса — село Солонка, Львівська область Кількість кімнат — одно кімнатна. Поверх — 2 з 3. Квартира в 0-циклі, тобто ще без ремонту. Загальна площа — 44,9 м², житлова — 11 м², кухня — 12 м². Опалення — індивідуальне газове. Балкон-лоджія — один. Санвузол — один, суміжний. Продаж по переуступці. Будинок буде введений в експлуатацію до кінця 2026 року. Особливості даної квартири — дві квартири на поверсі, велика лоджія - 10 м.кв. з виходами із кухні та спальні, індивідуальне опалення. Поруч з будинком: розвинута інфраструктура, поруч зупинка транспорту, школа, садочок, центр Солонки. За 5 хвилин на авто можна доїхати до ТРЦ «King Cross Leopolis», в якому відкриті г...
Риелтор
Delim
60 000 $
1 500 $/м²

Наварийская ул., 29

1 комната
40 / 19 / 12 м²
этаж 2 из 3
5 дней назад
Продається простора 1-кім. квартира. Солонка-Новобудова. вул. Наварійська. (60.000$.). Площею 40 м² Поверх 2/3. З якісною підготовкою під чистовий ремонт. У квартирі вже виконано основні ремонтні роботи: повністю розведена електрика та сантехніка, утеплена підлога, стіни підготовлені під фарбування, покладена плитка в коридорі та кухні, санвузол готовий на 90% (залишилось встановити душову кабіну та туалет — роботи вже в процесі), встановлюються міжкімнатні двері. Вам залишається лише завершити ремонт під свій смак і одразу заселятися. Додатковий бонус — власний підвал. Ідеальний варіант як для життя, так і для інвестиції. Є балкон. Будинок зданий, є право власності. Галина
Риелтор
Квартира Нова
98 000 $
2 108 $/м²

Пилипа Орлика ул., 51

1 комната
47 / 15 / 11 м²
этаж 1 из 3
2024 год постройки
1 мес. назад
Продам 1-кім.квартиру,вул Орлика 51 ЖК Пори Року З Ремонтом! Солонка vul Orlyka 51 ZHK Pory Roku Z Remontom! Silʹnychka "Дану квартиру можна розглянути під іпотеку Є-Оселя" Гарне розташування, поряд вся Iнфраструктура. Квартира знаходиться на 1-му поверсі, 3-ох поверхового будинку. Загальна площа - 46.50 м.кв.,житлова - 15 м.кв., кухня - 10.60 м.кв. Квартира з дизайнерським ремонтом на першому поверсі (поверх високий) Квартира оснащена меблями та технікою: Спальня: ліжко з матрацом, туалетний стіл, пуф, тумбочки - Frankoff; вбудована гардеробна шафа; штори блекаут; телевізор Sony. Підлога - плитка; покриття стін - фарба італійського виробника. Кухня: посудомийна машина, духова шафа, холоди...
Риелтор
54 000 $
1 038 $/м²

Ивана Рубчака ул., (Будинок)

ПЕРЕУСТУПКА ЖК ул. Рубчака
1 комната
52 / 18 / 20 м²
этаж 4 из 5
2025 год постройки
сегодня
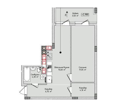
Продаж в передмісті Львова 1к квартири на 4-му поверсі пл. 52 м2 в новобудові по вулиці Рубчака, с. Солонка Забудовник «Карпатбуд» Поверх 4/5, простора кухня 16 м2 + балкон, спальня 15 м2. 0-цикл, металопластикові вікна, штукатурка, стяжка, розведено опалення. Індивідуальне опалення та гаряче водопостачання від двоконтурниого газового котела. Малоповерховий будинок на 74 квартири Знаходиться поруч - Нова Пошта та супермаркет. Здача в експлуатацію 1 квартал 2026 року.
Риелтор
98 000 $
2 108 $/м²

Пилипа Орлика ул., 51

1 комната
47 / 15 / 11 м²
этаж 1 из 3
2024 год постройки
вчера
Продається однокімнатна квартира в новобудові з дизайнерським ремонтом на першому поверсі (поверх високий) трьох поверхового будинку в с. Солонка. Загальна площа квартири 46, 5 м. кв. Підігрів підлоги по всій квартирі, газовий двохконтурний котел (Ariston); електричний котел; електричний бойлер, рециркуляція води. Міжкімнатні двері прихованого монтажу Pta Nova. Вхідні двері та вікна забудовника замінені на якісні двері (Qdos) та вікна (Luvin). Стіни по всій квартирі покриті дорогою фарбою італіського виробництва. В душовій кімнаті сантехніка Groe. Квартира оснащена меблями та технікою: Спальня: ліжко з матрацом, туалетний стіл, пуф, тумбочки - Frankoff; вбудована гардеробна шафа; штори бле...
Риелтор
АТЛАНТА
75 500 $
1 936 $/м²

Пилипа Орлика ул., 1

єВідновлення ЖК Сонячний майдан
1 комната
39 / 16 / 12 м²
этаж 3 из 5
2015 год постройки
5 дней назад
До продажу простора однокімнатна квартира з продуманим плануванням. Квартира продається з усіма меблями та побутовою технікою, що дозволяє одразу використовувати її для проживання або здачі в оренду. У квартирі: індивідуальне опалення — двоконтурний газовий котел окрема гардеробна кімната у коридорі — вмонтована шафа-купе встановлена нова імпортна сантехніка Функціональне зонування простору забезпечує комфортне щоденне проживання без потреби додаткових вкладень. У вартість квартири входить підвальне приміщення. Додатково: є можливість придбання діючого пивного магазину (готовий бізнес) за окрему плату — деталі обговорюються індивідуально. Огляд — за домовленістю. За детальною інфо...
Риелтор
RITM. home
53 000 $
1 293 $/м²

Роксоланы ул., 12

БЕЗ КОМИССИИ ЖК Family Residence
1 комната
41 / 15 / 15 м²
этаж 1 из 3
2 мес. назад
ПРОДАЖ! СОЛОНКА! Квартира ЖК Family Residence вул Роксолани Продається, однокімнатна квартира з гарним плануванням Поверх 1 з 3 Площа 41м Кухня 15м Балкон виходить у гарний великий внутрішній двір ЖК Family Residence знаходиться в затишному місці де панує спокій та тиша на територіі розвинена інфраструктура, спортивний та дитячий майданчик гостьовий паркінг ЖК Family Residence введений в експлуатацію, підключенні усі комунікації та заселений Чудовий варіант для проживання та інвестиціі
Риелтор
MATTIS Львів
28 500 $
750 $/м²

Владимира Мономаха ул., 1а

БЕЗ КОМИССИИ ЖК Дружный Двор
1 комната
38 / 12 / 15 м²
этаж 3 из 5
2 мес. назад
ПРОПОЗИЦІЯ БЕЗ КОМІСІЇ ДЛЯ ПОКУПЦЯ!!! Пропонується для продажу 1 кім. квартира, площею - 38 м2 у ЖК Дружній Двір. Квартира розташована на 3-ому поверсі 5-яти поверхового будинку. Адреса - с. Солонка, вул. Володимира Мономаха. Здача планується кінець 2026 року. Будинок здається поштукатуреним, залита стяжка, встановлені вхідні двері та металопластикові вікна, проведені повністю всі комунікації. Прибудинкова територія буде облаштована місткою наземною стоянкою, дитячими та спорт майданчиками, штучним футбольним полем. Гарне розташування, хороша локація. Зручна транспортна розв'язка, до найближчої автобусної зупинки - 15 хв пішки. На авто до найближчого ТРЦ King Cross Leopolis - 5 хв, до ш...
Риелтор
Сертифицированный риелтор СФНУ
10 объявлений
АТЛАНТА
59 900 $
1 036 $/м²

Ивана Рубчака ул., 4

ПЕРЕУСТУПКА ЖК ул. Рубчака
2 комнаты
58 / 29 / 15 м²
этаж 3 из 5
5 дней назад
Ідеальний баланс між містом та спокоєм передмістя. - 3 поверх -Сучасний житловий комплекс -Вдале планування - простора, комфортна вул. Рубчака — поруч King Cross, швидкий заїзд у Львів, тиша й чисте повітря Ідеальний варіант для життя або інвестиції. 391552
Риелтор
56 900 $
933 $/м²

Ивана Рубчака ул., (Будинок)

2 комнаты
61 / 27 / 14 м²
этаж 5 из 5
сегодня
Продам 2-х кімнатну квартиру в новобудові село Солонка по вул. Рубчака. Забудовник Карпатбуд. Розташована на 5 поверсі 5 поверхового будинку. Площа: 61 м2. 0-цикл, індивідуальне газове опалення. В будинку є ліфт. Будинок на етапі здачі. Продаж по переуступці.
Риелтор
DimArt
квартира по адресу Ивана Рубчака ул., (Будинок) квартира по адресу Ивана Рубчака ул., (Будинок) квартира по адресу Ивана Рубчака ул., (Будинок)
60 000 $
935 $/м²

Ивана Рубчака ул., (Будинок)

ПРЕМИУМ ПЕРЕУСТУПКА ЖК ул. Рубчака
2 комнаты
64 / 29 / 12 м²
этаж 1 из 5
сегодня
Продаж квартири в новобудові, Львів/ Стрийська/Солонка Будинок збудований , Карпатбуд Площа 64 Поверх 1/5 Індивідуальне газове опалення Вся інфраструктура поруч Зручне планування Засклена лоджія Дуже вигідна пропозиція Локація 2 км Кінг Крос Є відеоогляд
Риелтор
АН "Compass"
квартира по адресу с. Солонка, Ивана Рубчака ул., (Будинок) квартира по адресу с. Солонка, Ивана Рубчака ул., (Будинок) квартира по адресу с. Солонка, Ивана Рубчака ул., (Будинок)
54 000 $
1 012 $/м²

с. Солонка, Ивана Рубчака ул., (Будинок)

2 комнаты
53 / 23 / 9 м²
этаж 5 из 5
сегодня
Продаж світлої 2-кімнатної квартири у новобудові в Солонці (ЖК Карпатбуд). Простора та дуже світла квартира у сучасному житловому комплексі у Солонці — лише кілька хвилин від Львова. Площа: 53.35 м². Поверх: 5 з 5. Продумане планування, яке ідеально підходить як для комфортного життя сім’ї, так і для вигідної інвестиції. Дві ізольовані кімнати та простора кухня-вітальня. Два санвузли — рідкісна і дуже зручна перевага для такого метражу. Велика світла лоджія з виходом з кухні та спальні. Квартира має південну сторону, тому протягом дня наповнена природним світлом і теплом. Будинок на етапі здачі (I квартал 2026 року) — ви отримуєте нову квартиру без попередніх мешканців. Локація Солонка — од...
PRO аккаунт
Риелтор
Сертифицированный риелтор СФНУ
DimArt
60 000 $
1 034 $/м²

Ивана Рубчака ул., (Будинок)

2 комнаты
58 / 30 / 16 м²
этаж 3 из 5
1 нед. назад
Продаж квартири в новобудові, Львів/ Стрийська/Солонка Вартість 60 тис $ 🔥🔥🔥 ✅Будинок збудований , Карпатбуд ✅Площа 58м2 ✅Поверх 3/5 ✅Індивідуальне газове опалення ✅Вся інфраструктура поруч ✅Зручне планування ✅Засклена лоджія Дуже вигідна пропозиція 😍 Локація 2 км Кінг Крос 📍 Є відеоогляд Телефонуйте 📲[телефон скрыт]
Риелтор
Malinka Real Estate
81 600 $
1 200 $/м²

Роксоланы ул., 1

2 комнаты
68 / 25 / 23 м²
этаж 1 из 3
2 мес. назад
ПРОДАЖ КВАРТИРИ В 0-ЦИКЛІ З ПАТІО Адреса — с. Солонка , вулиця Роксоляни. Кількість кімнат — двокімнатна квартира. Поверх — 1 з 3. Квартира в 0-циклі, тобто ще без ремонту. Стіни - цегла Загальна площа — 68 м², житлова —25 м², кухня — 22.5 м². Опалення — індивідуальне газове. Балкон - один , лоджія - одна. Санвузоли —два. Особливості даної квартири — це те, що вона розташована у зданому будинку преміум класу - двостороння, не кутова, всього дві квартири на поверсі. Великим бонусом є комора, яка знаходиться на лоджії. Оскільки квартира розташована на першому поверсі, їй належить невелика земляна ділянка вимощена бруківкою (вихід з кухні). Територія ЖК з просторим внутрішнім двором, спортив...
Риелтор
Malinka Real Estate
81 600 $
1 200 $/м²

Роксоланы ул., 19

2 комнаты
68 / 25 / 23 м²
этаж 1 из 3
2022 год постройки
сегодня
ПРОДАЖ КВАРТИРИ В 0-ЦИКЛІ З ПАТІО Адреса — с. Солонка , вулиця Роксоляни. Кількість кімнат — двокімнатна квартира. Поверх — 1 з 3. Квартира в 0-циклі, тобто ще без ремонту. Стіни - цегла Загальна площа — 68 м², житлова —25 м², кухня — 22.5 м². Опалення — індивідуальне газове. Балкон - один , лоджія - одна. Санвузоли — два. Особливості даної квартири — це те, що вона розташована у зданому будинку преміум класу - двостороння, не кутова, всього три квартири на поверсі. Великим бонусом є комора, яка знаходиться на лоджії. Оскільки квартира розташована на першому поверсі, їй належить невелика земляна ділянка вимощена бруківкою (вихід з кухні). Територія ЖК з просторим внутрішнім двором, спорти...
Риелтор
АТЛАНТА
62 300 $
800 $/м²

Владимира Мономаха ул., 1а

ПЕРЕУСТУПКА ЖК Дружный Двор
2 комнаты
78 / 29 / 24 м²
этаж 1 из 5
5 дней назад
Пропонуємо до продажу простору 2-кімнатну квартиру в сучасному житловому комплексі "Дружній Двір" розташовану в селі Солонка. Загальна площа: 77,88 м². Житлова площа: 28,88 м². Кухня-студія: 24,42 м². 2 роздільні кімнати. Роздільний санвузол. Гардеробна. Великий коридор: 10,70 м². Квартира знаходиться в 1-й секції ЖК, уже збудована та готова до огляду. Є можливість перепланувати в 3-ох кімнатну! Це ідеальний варіант для тих, хто цінує комфорт і просторі приміщення. Зручне розташування, розвинута інфраструктура. Телефонуйте для отримання додаткової інформації та запису на перегляд! Код - 369288
PRO аккаунт
Риелтор
Гармонія Простору
квартира по адресу Роксоланы ул., 18 квартира по адресу Роксоланы ул., 18 квартира по адресу Роксоланы ул., 18
84 000 $
1 200 $/м²

Роксоланы ул., 18

ПРЕМИУМ БЕЗ КОМИССИИ ЖК Family Residence
2 комнаты
70 / 29 / 22 м²
этаж 1 из 3
2021 год постройки
сегодня
БЕЗ КОМІСІЇ! Пропонуємо на продаж 2 кім. + кухня-вітальня в с. Солонка, вул. Наварійська. ЖК "Family Residence". Будинок бізнес класу, лише на 3-ри поверхи! із просторим внутрішнім двором, спортивним та дитячим майданчиком, гостьовим паркінгом, а також окремим критим паркінгом для мешканців. Лише 5 км.від Льовова. Квартира розташована на 1-му поверсі 3-х поверхового будинку. Загальна площа 70м2. кімнати ізольовані, є балкон! Будинок здано та заселено, ! Ідеальний варіант для власного проживання! Є кілька варіантів квартир в цьому ЖК. Запрошую на огляд! Ціна 84000$ більше деталей за тел.
Риелтор
АТЛАНТА
квартира по адресу Станислава Людкевича ул., 8
квартира по адресу Станислава Людкевича ул., 8 квартира по адресу Станислава Людкевича ул., 8
149 000 $
1 527 $/м²

Станислава Людкевича ул., 8

ВЫГОДНО БЕЗ КОМИССИИ Відеотур ЖК Европейский квартал
4 комнаты
98 / 52 / 13 м²
этаж 1 из 2
2017 год постройки
сегодня
БЕЗ КОМІСІЇ для покупця! Частину суми можна по перерахунку! Продаж 2-рівневої 4-кімнатної квартири в центрі Солонки на вул. Людкевича Простора дворівнева квартира для тих, хто хоче більше простору, тиші та комфорту неподалік міста. Основні характеристики: Кількість кімнат: 4 Загальна площа: 97,6 м² Кухня: 12,7 м² Поверх: 1 + мансардний рівень Санвузли: 2 Кладова: 2,4 м² Балкон + засклена лоджія Технічні параметри Висота стелі — 2,99 м Стіни — цегла Перекриття — залізобетон, моноліт, дерево Переваги: функціональне дворівневе планування (денна + нічна зона) ідеально для великої сім’ї два санвузли — комфорт для всіх мешканців балкон та лоджія окрема кладова для зберігання...
PRO аккаунт
Риелтор