1
7 200 $/міс
4
$/м²
склад
1800 м²
вчора
4 міс. тому
44 (сьогодні 1,
вчора 1)
Опис
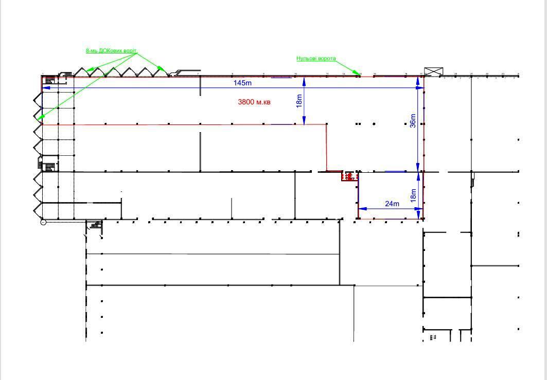
Здається склад классу В в Броварах, вул Онікієнка.
4,0 дол/ м.кв з ПДВ.
напруга - 150кВт з можливістю збільшення.
8 рамп + одні нульові.
висота стелі - 4м.
Санвузол в приміщенні ( на схемі видно).
Можна взяти меньшою частиною (половина)
Плюс є офісна частина.
4,0 дол/ м.кв з ПДВ.
напруга - 150кВт з можливістю збільшення.
8 рамп + одні нульові.
висота стелі - 4м.
Санвузол в приміщенні ( на схемі видно).
Можна взяти меньшою частиною (половина)
Плюс є офісна частина.
Деталі
Об'єкт комерційної нерухомості, Клас B, Комплекс будівель, Склад. Об'єкт на 1 поверсі, У будівлі 1 поверх. Приміщення вільного планування. Комісія за послуги 50 %
Історія зміни ціни
| 20.02.2026 | - 8 000 $ | 7 200 $ |
| 09.01.2026 | 15 200 $ |















