2
4 000 $/міс
7
$/м²
приміщення вільного призначення, склад
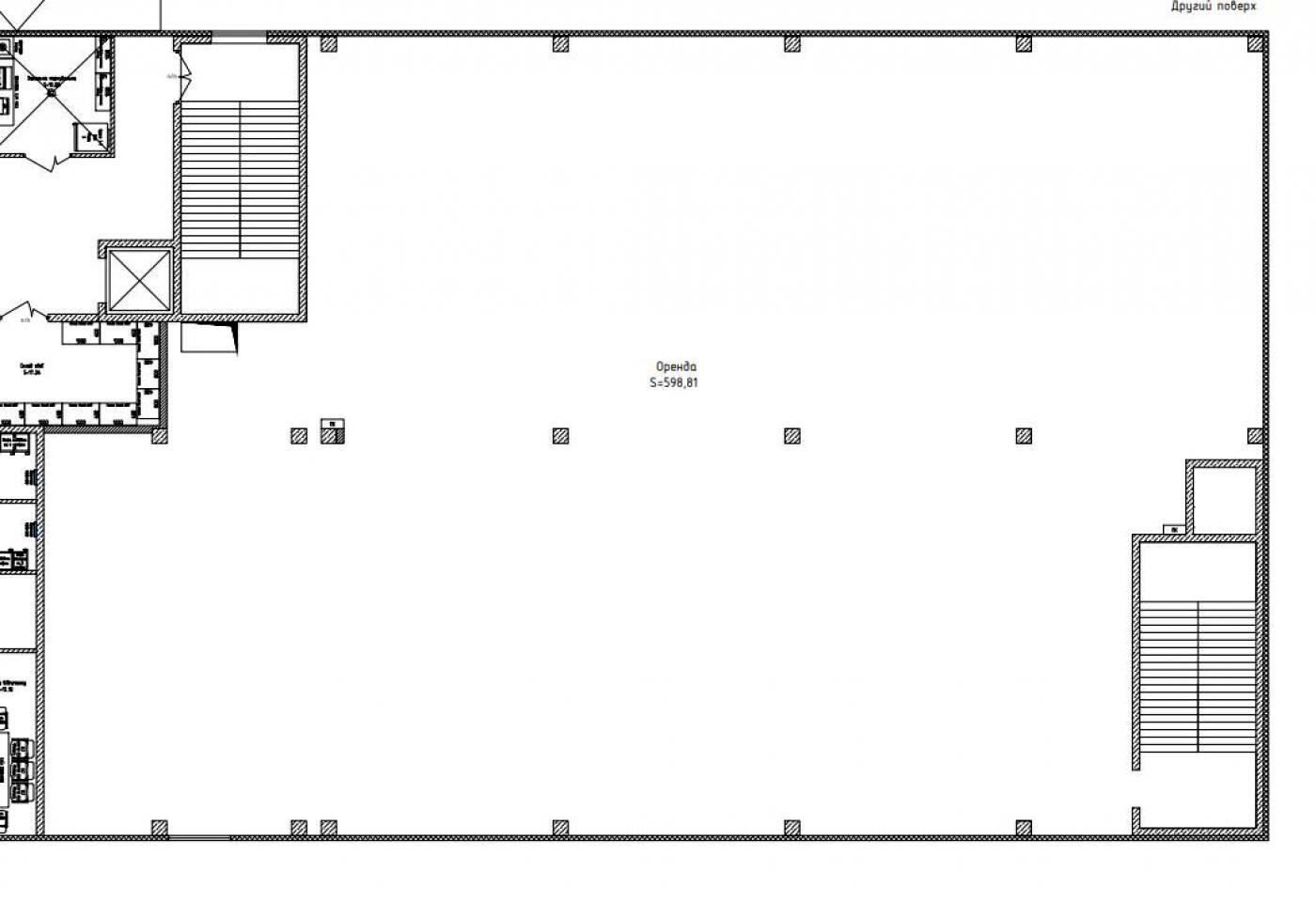
598 м²
1 тиж. тому
9 міс. тому
75 (сьогодні 1,
вчора 0)
Опис
Пропонується в оренду комерційне приміщення у с. Чайки, вул. Грушевського, 12 (Києво-Святошинський район).
Основні характеристики:
Локація: Приміщення розташоване на 2-му поверсі будівлі, на 1-му поверсі працює магазин Фора, що генерує високу прохідність.
Середній трафік: 3300-3500 чеків щодня, гарантує стабільний потік потенційних клієнтів.
Площа: Оптимальне планування у форматі open space, яке легко адаптувати під ваші потреби.
Висота стелі: 4,5 м, що створює відчуття простору та дозволяє реалізувати різні концепції.
Стан приміщення: Новий ремонт, готове до використання.
Переваги:
Зручне розташування у густонаселеному районі.
Ідеально підходить для відкриття спортзалу, студії йоги, дитячого центру розвитку, шоуруму чи офісу.
Оренда не розглядається для продуктових магазинів, що дозволяє зберігати баланс бізнесів у комплексі.
Додаткові переваги:
Висока стеля дозволяє використовувати приміщення для організації спортивних занять або інших заходів, що потребують додаткового простору.
Новий ремонт економить ваш час і ресурси на облаштування.
Приміщення чекає на ваш унікальний проект! Це місце стане ідеальною локацією для розвитку вашого бізнесу.
A1 2 8 4 6
Основні характеристики:
Локація: Приміщення розташоване на 2-му поверсі будівлі, на 1-му поверсі працює магазин Фора, що генерує високу прохідність.
Середній трафік: 3300-3500 чеків щодня, гарантує стабільний потік потенційних клієнтів.
Площа: Оптимальне планування у форматі open space, яке легко адаптувати під ваші потреби.
Висота стелі: 4,5 м, що створює відчуття простору та дозволяє реалізувати різні концепції.
Стан приміщення: Новий ремонт, готове до використання.
Переваги:
Зручне розташування у густонаселеному районі.
Ідеально підходить для відкриття спортзалу, студії йоги, дитячого центру розвитку, шоуруму чи офісу.
Оренда не розглядається для продуктових магазинів, що дозволяє зберігати баланс бізнесів у комплексі.
Додаткові переваги:
Висока стеля дозволяє використовувати приміщення для організації спортивних занять або інших заходів, що потребують додаткового простору.
Новий ремонт економить ваш час і ресурси на облаштування.
Приміщення чекає на ваш унікальний проект! Це місце стане ідеальною локацією для розвитку вашого бізнесу.
A1 2 8 4 6
Деталі
Об'єкт комерційної нерухомості, Склад, Приміщення вільного призначення. Комісія за послуги 50 %

















