60 000 €
915  €/м²
65.6 / 45 / 7.3 м²
поверх 4 з 9
Спец. проект
5 днів тому
1 тиж. тому
37 (сьогодні 1, вчора 1)
Опис
Продаж. Трикімнатна квартира р-н. Літака, вул. Проспект Перемоги.

Пропонується до продажу повноцінна трикімнатна квартира м. Черкаси, вул. Проспект Перемоги, буд. 8

Відомості про квартиру:
- 4 поверх 9 поверхового панельного будинку
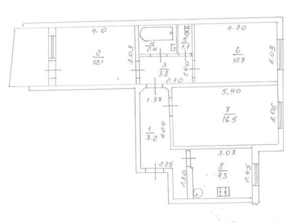
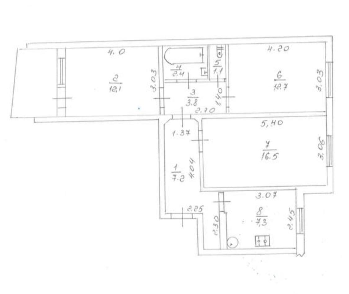
- загальна площа квартири 64 кв.м.
- в квартирі виконаний косметичний ремонт в 2022 році.
- три окремі кімнати
- гарний житловий стан .
- затишна кухня. Вбудовані меблі та техніка.
- санвузол окремий.
- встановлені лічильники світло, вода, газ.
- просторий балкон, з диваном та журнальним столиком.
- є окрема кладова для зручного зберігання ваших речей.
- в будинку створене ОСББ - доглянута прибудинкова територія, чистий підʼїзд.
- квартира продається з меблями та побутовою технікою.

Загальна характеристика району:
- гарно розвинений житловий район, магазини, АТБ, Делікат, парк, зоопарк, аптеки, піцерії, школа та садочок. Поруч розташована зупинка громадського транспорту, що забезпечує зручне сполучення та легкий доступ до різних районів міста.

Вартість квартири: 60 000 €
Деталі
В квартирі 3 кімнати, висота стелі 2.5 метра, Тип будинку - Спец. проект. Є газ. Є балкон. У квартирі є Телевізор, Пральна машина, Ванна, Холодильник. Загальний стан квартири - З ремонтом. Кількість санвузлів: 1. Тип кухні - окрема кухня. Кількість спален: 3. Комісія за послуги 2 %
У квартирі є
  • Телевізор
  • Пральна машина
  • Ванна
  • Холодильник
АН «ОСА»
Верифікований профіль
PRO аккаунт
Професійний акаунт
11
Років досвіду
12
Років на сайті
Активних оголошень 4
Ексклюзивних об'єктів 0
Рекламна активність 0
Останній візит на сайт 5 днів тому
Рекомендувати
Планування

Адреса
Вашу скаргу прийнято!
Оберіть спосіб підтвердження
Щоб вашу рекомендацію було зараховано, підтвердіть свою особистість
* Особисті дані не відображатимуться на сайті та слугуватимуть лише для підтвердження особистості.
Як верифікуватись через Дію?
Зчитайте QR-код сканером у застосунку Дія й підтвердьте авторизацію Дія.Підписом
QR-код буде дійсний ще 02:00
Як верифікуватись через Bankid?
Верифікація BankID відкриється у новому вікні. Якщо сторінка верифікації не відкрилася, вікно було заблоковане вашим браузером.
Щоб дозволити відкриття вікна, виконайте такі кроки:

1. Перевірте адресний рядок браузера на повідомлення про помилку або піктограму блокування. Натисніть на нього.
2. Якщо у вас встановлено блокувальник спливаючих вікон, тимчасово відключіть його для цього сайту.
3. Перевірте налаштування вашого браузера і переконайтеся, що блокування спливаючих вікон вимкнено або налаштовано на дозвіл відкриття цього вікна.

Якщо проблема залишається невирішеною, зверніться до нашої служби підтримки.
Як верифікуватись через Дію?
Верифікація Дія відкриється у новому вікні. Якщо сторінка верифікації не відкрилася, вікно було заблоковане вашим браузером.
Щоб дозволити відкриття вікна, виконайте такі кроки:

1. Перевірте адресний рядок браузера на повідомлення про помилку або піктограму блокування. Натисніть на нього.
2. Якщо у вас встановлено блокувальник спливаючих вікон, тимчасово відключіть його для цього сайту.
3. Перевірте налаштування вашого браузера і переконайтеся, що блокування спливаючих вікон вимкнено або налаштовано на дозвіл відкриття цього вікна.

Якщо проблема залишається невирішеною, зверніться до нашої служби підтримки.
Вітаємо!
Рекомендацію зараховано!
Незабаром рекомендація зʼявиться на сторінці рієлтора.
Рекомендацію не зараховано.
Ви вже залишали рекомендацію даному рієлтору.
В пропозиції є незбережені дані.