64 000 $
1 000  $/м²
Комісія 3грн єВідновлення Район Д Дніпровський
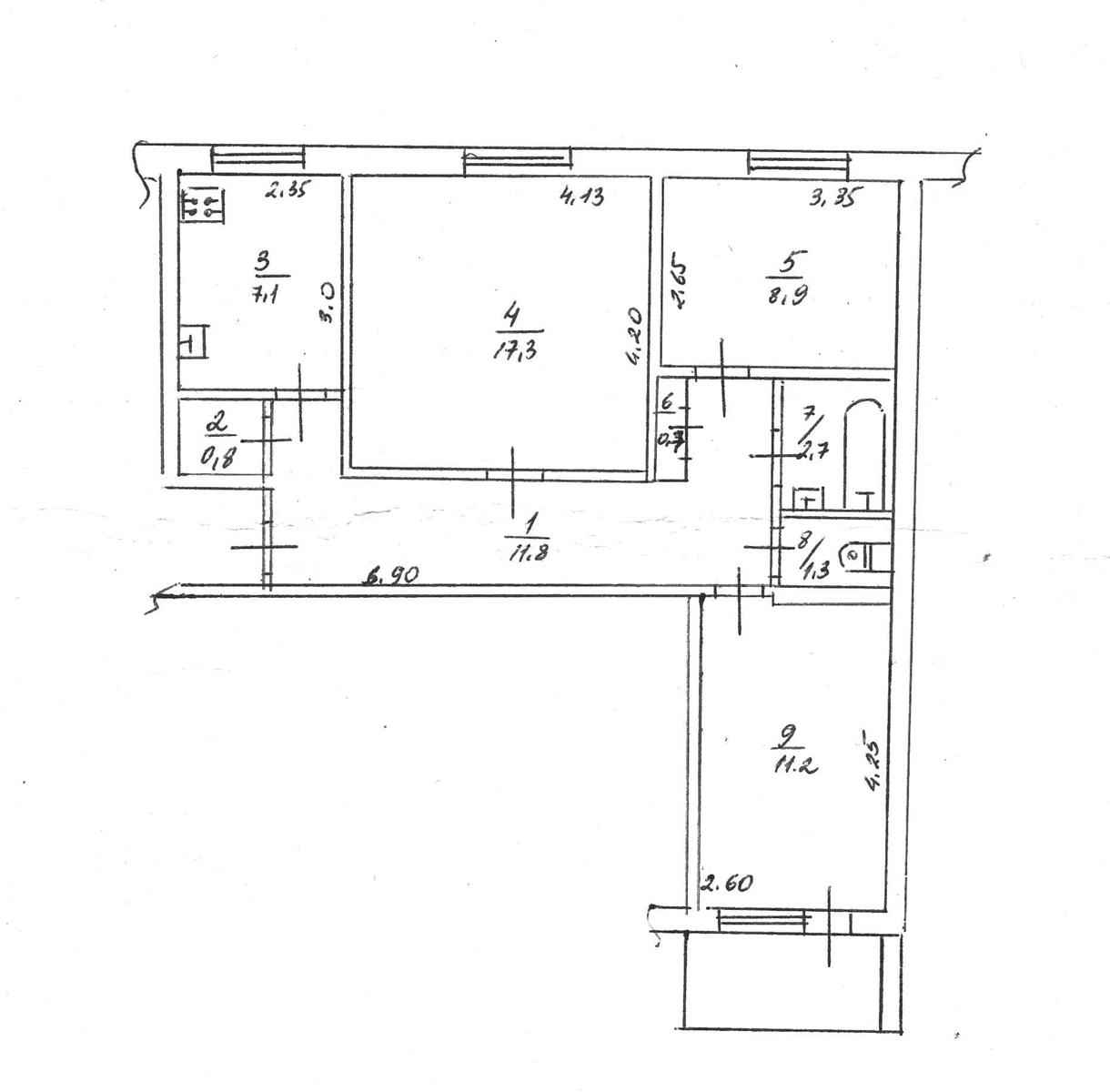
64 / 38 / 8 м²
поверх 1 з 9
Цегляна
Чеський проект
1986 рік побудови
сьогодні
вчора
2 (сьогодні 0, вчора 2)
Опис
Продаю 3 кімнатну квартиру в спальному районі м. Черкас- вул. Надпільна-Подолінського. Квартира знаходиться на безпечному 1 поверсі цегляної 9-поверхівки, більшість вікон виходить у двір.
В квартирі зроблено косметичний ремонт – встановлено 2 камерні склопакети, чавунні батареї, кахлі, засклена лоджія. Бонус- обладнано власний глибокий погріб.
Будинок має зовнішнє утеплення , відповідно квартира дуже тепла. Поруч знаходиться вдала транспортна розв ʹязка - зупинка тролейбусів, маршруток, розташовуються 3 школи, 2 дитсадочки, декілька супермаркетів, відділення звʹяку та Нової пошти, 2 ринки( Бакалія та 700-річчя). До Дніпра - 500 метрів ( пляж, риболовля, спортивна база –гребля).
Можливий продаж за безготівку по держпрограмам.
Деталі
В квартирі 3 кімнати, висота стелі 2.5 метра, Технологія будівництва - Цегляна, Тип будинку - Чеський проект. Є газ, кухонна плита газова. Є балкон. У квартирі є Телевізор, Кабельне ТБ, Пральна машина, Ванна, Мікрохвильовка. Будинок побудований в 1986 році. Загальний стан квартири - Частковий ремонт. Безбар'єрність: дверні отвори в будинку шириною понад 0.9 м. Гаряча вода - централізована. Кількість санвузлів: 1. Інтернет дротовий (кабельний). Працює без світла - вода, газ, опалення, інтернет. Власник погоджується продати по програмі єВідновлення. Тип кухні - окрема кухня. Кількість спален: 3. Немає підземного паркінгу, доступного як укриття. Інфраструктура території: дитячий майданчик, спортивний майданчик, виокремлена зона для вигулу тварин. Комісія за послуги 3 грн
У квартирі є
  • Телевізор
  • Кабельне ТБ
  • Пральна машина
  • Ванна
  • Мікрохвильовка
Верифікований профіль
Сертифікат
СФНУ
31
Рік досвіду
10
Років на сайті
Активних оголошень 4
Ексклюзивних об'єктів 0
Рекламна активність 0
Останній візит на сайт сьогодні
Рекомендувати
Планування

Адреса
Вашу скаргу прийнято!
Оберіть спосіб підтвердження
Щоб вашу рекомендацію було зараховано, підтвердіть свою особистість
* Особисті дані не відображатимуться на сайті та слугуватимуть лише для підтвердження особистості.
Як верифікуватись через Дію?
Зчитайте QR-код сканером у застосунку Дія й підтвердьте авторизацію Дія.Підписом
QR-код буде дійсний ще 02:00
Як верифікуватись через Bankid?
Верифікація BankID відкриється у новому вікні. Якщо сторінка верифікації не відкрилася, вікно було заблоковане вашим браузером.
Щоб дозволити відкриття вікна, виконайте такі кроки:

1. Перевірте адресний рядок браузера на повідомлення про помилку або піктограму блокування. Натисніть на нього.
2. Якщо у вас встановлено блокувальник спливаючих вікон, тимчасово відключіть його для цього сайту.
3. Перевірте налаштування вашого браузера і переконайтеся, що блокування спливаючих вікон вимкнено або налаштовано на дозвіл відкриття цього вікна.

Якщо проблема залишається невирішеною, зверніться до нашої служби підтримки.
Як верифікуватись через Дію?
Верифікація Дія відкриється у новому вікні. Якщо сторінка верифікації не відкрилася, вікно було заблоковане вашим браузером.
Щоб дозволити відкриття вікна, виконайте такі кроки:

1. Перевірте адресний рядок браузера на повідомлення про помилку або піктограму блокування. Натисніть на нього.
2. Якщо у вас встановлено блокувальник спливаючих вікон, тимчасово відключіть його для цього сайту.
3. Перевірте налаштування вашого браузера і переконайтеся, що блокування спливаючих вікон вимкнено або налаштовано на дозвіл відкриття цього вікна.

Якщо проблема залишається невирішеною, зверніться до нашої служби підтримки.
Вітаємо!
Рекомендацію зараховано!
Незабаром рекомендація зʼявиться на сторінці рієлтора.
Рекомендацію не зараховано.
Ви вже залишали рекомендацію даному рієлтору.
В пропозиції є незбережені дані.