2
99 000 $
664  $/м²
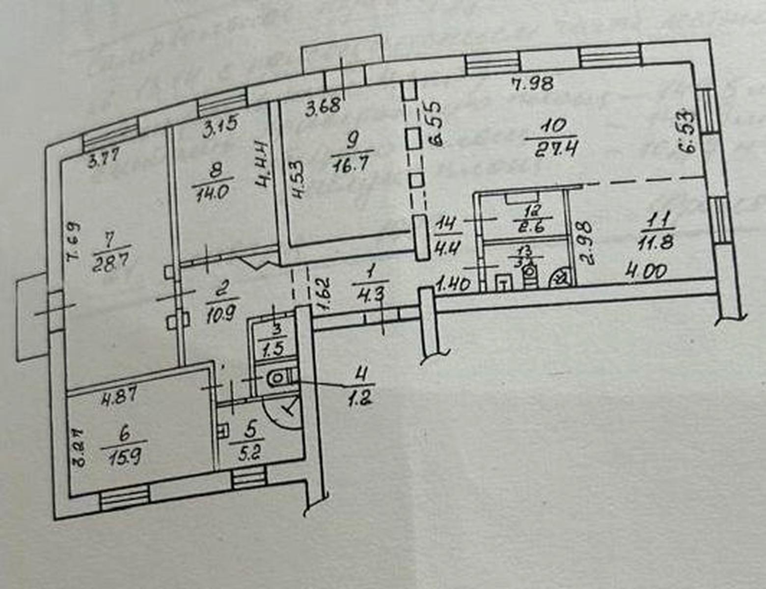
149 / 103 / 12 м²
поверх 5 з 5
Цегляна
Сталінка
1954 рік побудови
сьогодні
5 міс. тому
24 (сьогодні 0, вчора 0)
Опис
Продам 5-к квартиру на пр. Л. Українки (Пушкіна) / Савченко, район парка Глоби.
Велика, затишна квартира, сталінка, площею 149м спланована у простору кухню - столову - вітальню, три роздільні кімнати, два санвузли та два балкони.
Гарний житловий стан квартири, капітальний ремонт та свіжа косметика.
Залишаються всі меблі та техніка, кондиціонери, дві варочні панели-газова та електрична.
Цегляний товстостінний, теплий будинок з ж/б перекриттями, чистий під'їзд, двосхилий дах (горищного типу), металочерепиця.
Закритий двір, автоматичні ворота, паркування.
Зручна локація, центральний район міста, поряд сквери, парк Глоби, центральний ринок Озерка, магазини, супермаркети, кав'ярні, навчальні та розважальні заклади, чудова транспортна розв'язка.
За додатковою інформацією звертайтеся за телефоном!
Деталі
В квартирі 5 кімнат, висота стелі 3 метра, Технологія будівництва - Цегляна, Тип будинку - Сталінка. Планування кімнат Суміжно-роздільне. Є газ, кухоння плита комбінована. Є 2 балкони. У квартирі є Телевізор, Кабельне ТБ, Кондиціонер, Пральна машина, Душова кабіна, Ванна, Холодильник. Будинок побудований в 1954 році. Загальний стан квартири - З ремонтом. Гаряча вода - електричний бойлер. Кількість санвузлів: 2. Інтернет оптоволоконний. Працює без світла - вода, газ, опалення, інтернет. Власник погоджується продати по програмі єВідновлення. Комісія за послуги 5 %
У квартирі є
  • Телевізор
  • Кабельне ТБ
  • Кондиціонер
  • Пральна машина
  • Душова кабіна
  • Ванна
  • Холодильник
Верифікований профіль
Silver partner
19
Років досвіду
2
Верифіковані рекомендації
14
Років на сайті
Активних оголошень 10
Ексклюзивних об'єктів 1
Рекламна активність 0
Останній візит на сайт сьогодні
Рекомендувати
Планування

Адреса
Вашу скаргу прийнято!
Оберіть спосіб підтвердження
Щоб вашу рекомендацію було зараховано, підтвердіть свою особистість
* Особисті дані не відображатимуться на сайті та слугуватимуть лише для підтвердження особистості.
Як верифікуватись через Дію?
Зчитайте QR-код сканером у застосунку Дія й підтвердьте авторизацію Дія.Підписом
QR-код буде дійсний ще 02:00
Як верифікуватись через Bankid?
Верифікація BankID відкриється у новому вікні. Якщо сторінка верифікації не відкрилася, вікно було заблоковане вашим браузером.
Щоб дозволити відкриття вікна, виконайте такі кроки:

1. Перевірте адресний рядок браузера на повідомлення про помилку або піктограму блокування. Натисніть на нього.
2. Якщо у вас встановлено блокувальник спливаючих вікон, тимчасово відключіть його для цього сайту.
3. Перевірте налаштування вашого браузера і переконайтеся, що блокування спливаючих вікон вимкнено або налаштовано на дозвіл відкриття цього вікна.

Якщо проблема залишається невирішеною, зверніться до нашої служби підтримки.
Як верифікуватись через Дію?
Верифікація Дія відкриється у новому вікні. Якщо сторінка верифікації не відкрилася, вікно було заблоковане вашим браузером.
Щоб дозволити відкриття вікна, виконайте такі кроки:

1. Перевірте адресний рядок браузера на повідомлення про помилку або піктограму блокування. Натисніть на нього.
2. Якщо у вас встановлено блокувальник спливаючих вікон, тимчасово відключіть його для цього сайту.
3. Перевірте налаштування вашого браузера і переконайтеся, що блокування спливаючих вікон вимкнено або налаштовано на дозвіл відкриття цього вікна.

Якщо проблема залишається невирішеною, зверніться до нашої служби підтримки.
Вітаємо!
Рекомендацію зараховано!
Незабаром рекомендація зʼявиться на сторінці рієлтора.
Рекомендацію не зараховано.
Ви вже залишали рекомендацію даному рієлтору.
В пропозиції є незбережені дані.