139 000 $
1 299  $/м²
Івана Мазепи вул.
 Кадастровий номер верифіковано Комісія 3%
107 / 72 / 25 м²
2 поверхи
2 сот
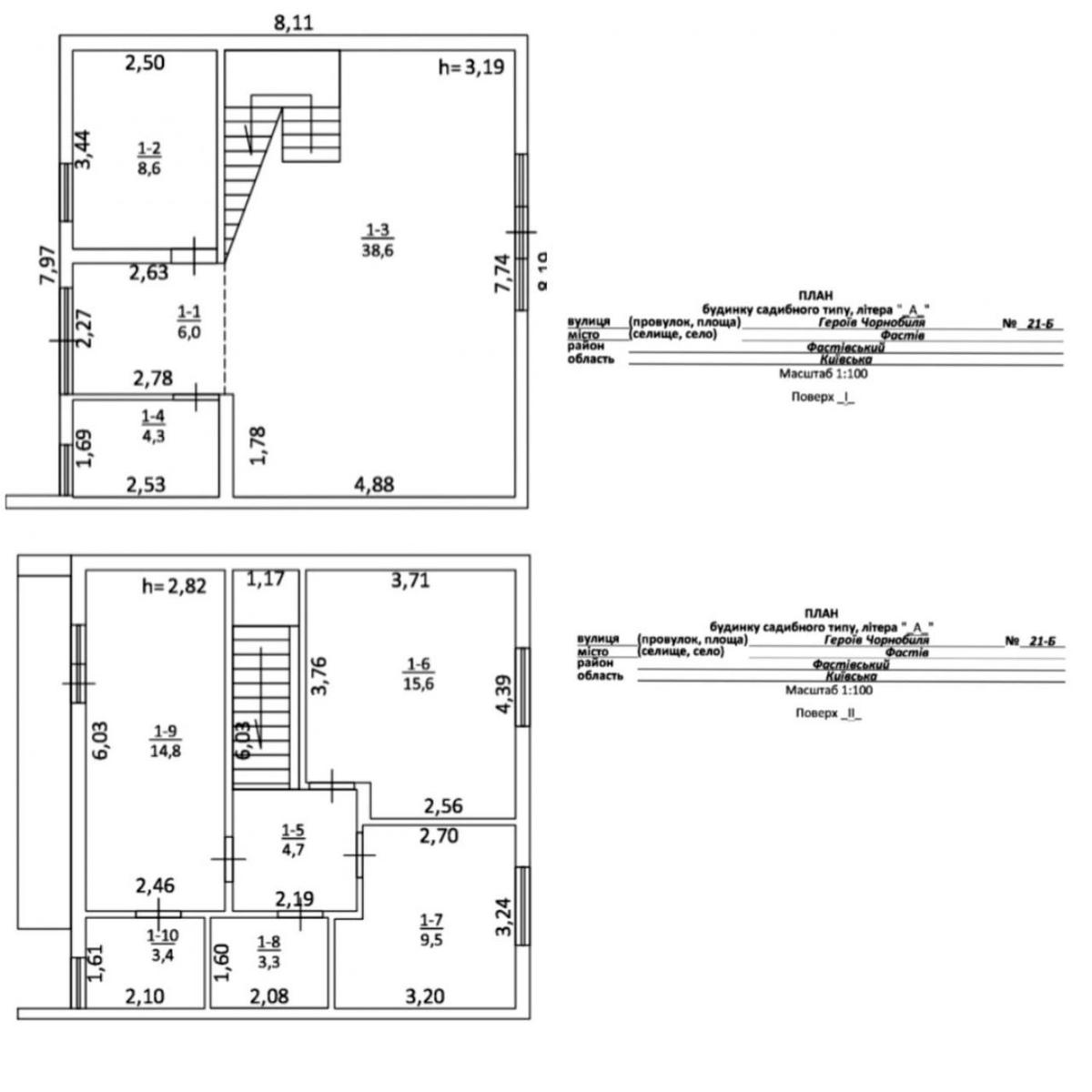
Будинок
3 кімнати
3 тиж. тому
3 тиж. тому
32 (сьогодні 0, вчора 0)
Опис
Таунхаус у центрі Фастова Клубний будинок на 4 сім’ї. Центр міста — і водночас свій затишний простір. Пропонується до продажу таунхаус 107 м² у форматі клубного будинку на 4 будинки. 1 поверх - Передпокій - Велика простора кухня з вітальнею - Гардером - Санвузол 2 поверх - Спальна кімната - Дитяча кімната - Кабінет - Гардероб - Санвузол - Побудований з керамоблоку - Утеплення — мінеральна вата - Фасад оздоблений натуральним травертином - Система відеоспостереження по периметру - Виконана якісна чистова стяжка та штукатурка Комунікації: - власна ділянка на задньому дворі. 2 сотки - Газове опалення - Вода централізована - Каналізація міська централізована - Електропостачання — 3 фази, 15 кВт Локація — найкраща у Фастові: - центр міста — все поруч - навпроти лікарня - зупинка прямо біля хвіртки — максимальна зручність для щоденних поїздок - інфраструктура в кроковій доступності: магазини, школа, дитячі садки Основні характеристики: • 107 м² | 2 поверхи • 3 спальні — комфортне планування для сім’ї Всі міські комунікації - газ ,електропостачання, Центральна каналізація. • Стан під чистове оздоблення, гіпсова штукатурка. Під ваш індивідуальний дизайн • Монолітні перекриття — надійність і звукоізоляція • Власний невеликий дворик — місце для відпочинку. • Закрита територія — безпека та спокій • 2 паркомісця на кожен таунхаус • Відеоспостереження на території — додатковий рівень контролю та безпеки

Артикул: #A27038
Деталі
Будинок, 2 поверхи, 3 кімнати. Площа ділянки 2 сотки. Централізована каналізація. Загальний стан будинку - Без ремонту. Гаряча вода - централізована. Кількість санвузлів: 2. Кількість паркомісць: 1. Комісія за послуги 3 %
THE Capital
Верифікований профіль
3
Роки досвіду
2
Роки на сайті
Активних оголошень 710
Ексклюзивних об'єктів 0
Рекламна активність 285
Останній візит на сайт вчора
Рекомендувати
Адреса
Фастів, Івана Мазепи вул.
Кадастровий номер 3211200000:09:003:****  верифіковано через реєстр

Ділянка
площа
0.019 га
власність
Комунальна власність
використання
03.15 Для будівництва та обслуговування інших будівель громадської забудови
категорія
Землі житлової та громадської забудови
адреса
Київська область, м.Фастів, вулиця Івана Ступака, 1
Вашу скаргу прийнято!
Оберіть спосіб підтвердження
Щоб вашу рекомендацію було зараховано, підтвердіть свою особистість
* Особисті дані не відображатимуться на сайті та слугуватимуть лише для підтвердження особистості.
Як верифікуватись через Дію?
Зчитайте QR-код сканером у застосунку Дія й підтвердьте авторизацію Дія.Підписом
QR-код буде дійсний ще 02:00
Як верифікуватись через Bankid?
Верифікація BankID відкриється у новому вікні. Якщо сторінка верифікації не відкрилася, вікно було заблоковане вашим браузером.
Щоб дозволити відкриття вікна, виконайте такі кроки:

1. Перевірте адресний рядок браузера на повідомлення про помилку або піктограму блокування. Натисніть на нього.
2. Якщо у вас встановлено блокувальник спливаючих вікон, тимчасово відключіть його для цього сайту.
3. Перевірте налаштування вашого браузера і переконайтеся, що блокування спливаючих вікон вимкнено або налаштовано на дозвіл відкриття цього вікна.

Якщо проблема залишається невирішеною, зверніться до нашої служби підтримки.
Як верифікуватись через Дію?
Верифікація Дія відкриється у новому вікні. Якщо сторінка верифікації не відкрилася, вікно було заблоковане вашим браузером.
Щоб дозволити відкриття вікна, виконайте такі кроки:

1. Перевірте адресний рядок браузера на повідомлення про помилку або піктограму блокування. Натисніть на нього.
2. Якщо у вас встановлено блокувальник спливаючих вікон, тимчасово відключіть його для цього сайту.
3. Перевірте налаштування вашого браузера і переконайтеся, що блокування спливаючих вікон вимкнено або налаштовано на дозвіл відкриття цього вікна.

Якщо проблема залишається невирішеною, зверніться до нашої служби підтримки.
Вітаємо!
Рекомендацію зараховано!
Незабаром рекомендація зʼявиться на сторінці рієлтора.
Рекомендацію не зараховано.
Ви вже залишали рекомендацію даному рієлтору.
В пропозиції є незбережені дані.