15 500 $
287  $/м²
БЕЗ КОМІСІЇ єВідновлення
54 / 41 / 6 м²
поверх 2 з 5
Цегляна
Хрущівка
1970 рік побудови
4 дні тому
1 міс. тому
29 (сьогодні 0, вчора 1)
Опис
Продаж 3-кімнатної квартири по вулиці Качалова, Олімп, Саксаганський район.

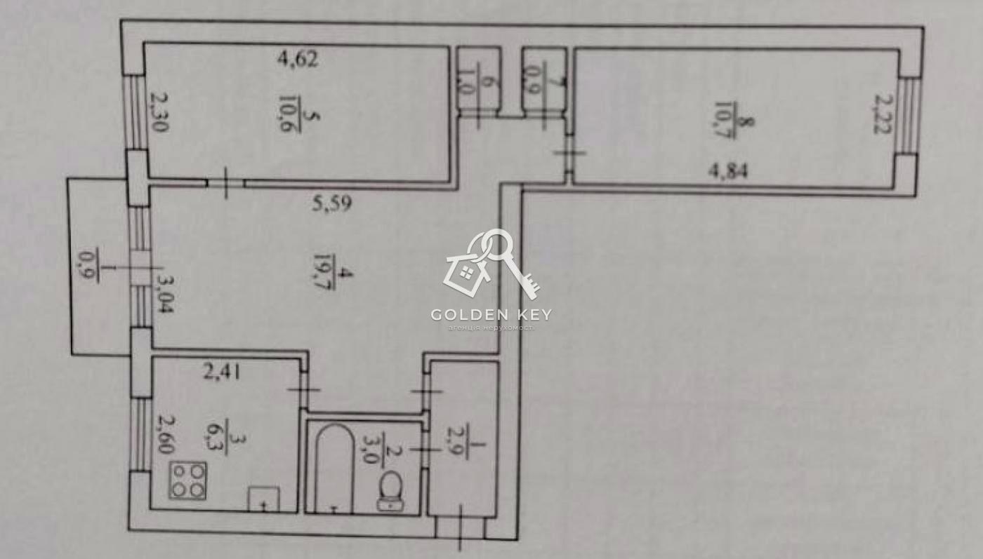
Квартира розташована на другому поверсі чотирьохповерхового будинку, не кутова. Загальна площа 56 м2, житлова 41 м2, кухня 6 м2. Планування кімнат суміжно-роздільне, між кімнатами облаштовані дві кладові. Вікна у квартирі замінені на металопластикові, балкон не засклений. Санвузол суміжний, є електричний бойлер (не встановлений). Квартира потребує косметичного ремонту, але при необхідності можна заїхати і жити.


Будинок розташований в тихому комфортному районі, поряд 4 міська лікарня, басейн, кінотеатр "Олімп", супермаркети, школи, садочки. В п'яти хвилинах зупинки міського транспорту в будь-яку точку міста. До площі Артема одна зупинка.

Для перегляду та за більш детальною інформацією телефонуйте!
Деталі
В квартирі 3 кімнати, висота стелі 2.5 метра, Технологія будівництва - Цегляна, Тип будинку - Хрущівка. Є газ, кухонна плита газова. Є балкон. У квартирі є Ванна. Будинок побудований в 1970 році. Загальний стан квартири - Без ремонту. Безбар'єрність: вхід у будинок на рівні землі. Гаряча вода - електричний бойлер. Кількість санвузлів: 1. Інтернету немає. Працює без світла - вода, газ, опалення. Власник погоджується продати по програмі єВідновлення. Тип кухні - окрема кухня. Кількість спален: 3. Немає підземного паркінгу, доступного як укриття. Інфраструктура території: спортивний майданчик. Без комісії
У квартирі є
  • Ванна
Golden Key
Верифікований профіль
1
Рік досвіду
5
Місяців на сайті
Активних оголошень 27
Ексклюзивних об'єктів 0
Рекламна активність 935
Останній візит на сайт 2 дні тому
Рекомендувати
Адреса
Вашу скаргу прийнято!
Оберіть спосіб підтвердження
Щоб вашу рекомендацію було зараховано, підтвердіть свою особистість
* Особисті дані не відображатимуться на сайті та слугуватимуть лише для підтвердження особистості.
Як верифікуватись через Дію?
Зчитайте QR-код сканером у застосунку Дія й підтвердьте авторизацію Дія.Підписом
QR-код буде дійсний ще 02:00
Як верифікуватись через Bankid?
Верифікація BankID відкриється у новому вікні. Якщо сторінка верифікації не відкрилася, вікно було заблоковане вашим браузером.
Щоб дозволити відкриття вікна, виконайте такі кроки:

1. Перевірте адресний рядок браузера на повідомлення про помилку або піктограму блокування. Натисніть на нього.
2. Якщо у вас встановлено блокувальник спливаючих вікон, тимчасово відключіть його для цього сайту.
3. Перевірте налаштування вашого браузера і переконайтеся, що блокування спливаючих вікон вимкнено або налаштовано на дозвіл відкриття цього вікна.

Якщо проблема залишається невирішеною, зверніться до нашої служби підтримки.
Як верифікуватись через Дію?
Верифікація Дія відкриється у новому вікні. Якщо сторінка верифікації не відкрилася, вікно було заблоковане вашим браузером.
Щоб дозволити відкриття вікна, виконайте такі кроки:

1. Перевірте адресний рядок браузера на повідомлення про помилку або піктограму блокування. Натисніть на нього.
2. Якщо у вас встановлено блокувальник спливаючих вікон, тимчасово відключіть його для цього сайту.
3. Перевірте налаштування вашого браузера і переконайтеся, що блокування спливаючих вікон вимкнено або налаштовано на дозвіл відкриття цього вікна.

Якщо проблема залишається невирішеною, зверніться до нашої служби підтримки.
Вітаємо!
Рекомендацію зараховано!
Незабаром рекомендація зʼявиться на сторінці рієлтора.
Рекомендацію не зараховано.
Ви вже залишали рекомендацію даному рієлтору.
В пропозиції є незбережені дані.