3 500 000 $
3 231  $/м²
приміщення вільного призначення, офісне приміщення, банківське приміщення
1083.2 м²
1887 рік побудови
4 тиж. тому
1 міс. тому
40 (сьогодні 1, вчора 0)
Опис
Продаж австрійської будівлі в центрі Львова, вул. Вороного, Галицький район, Львів.

Пропонується унікальний об’єкт - ціла австрійська будівля у самому серці Львова, за адресою вул. Вороного.
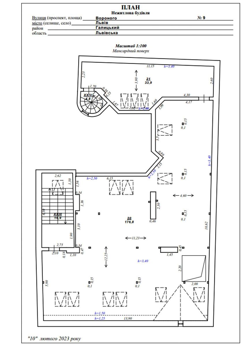
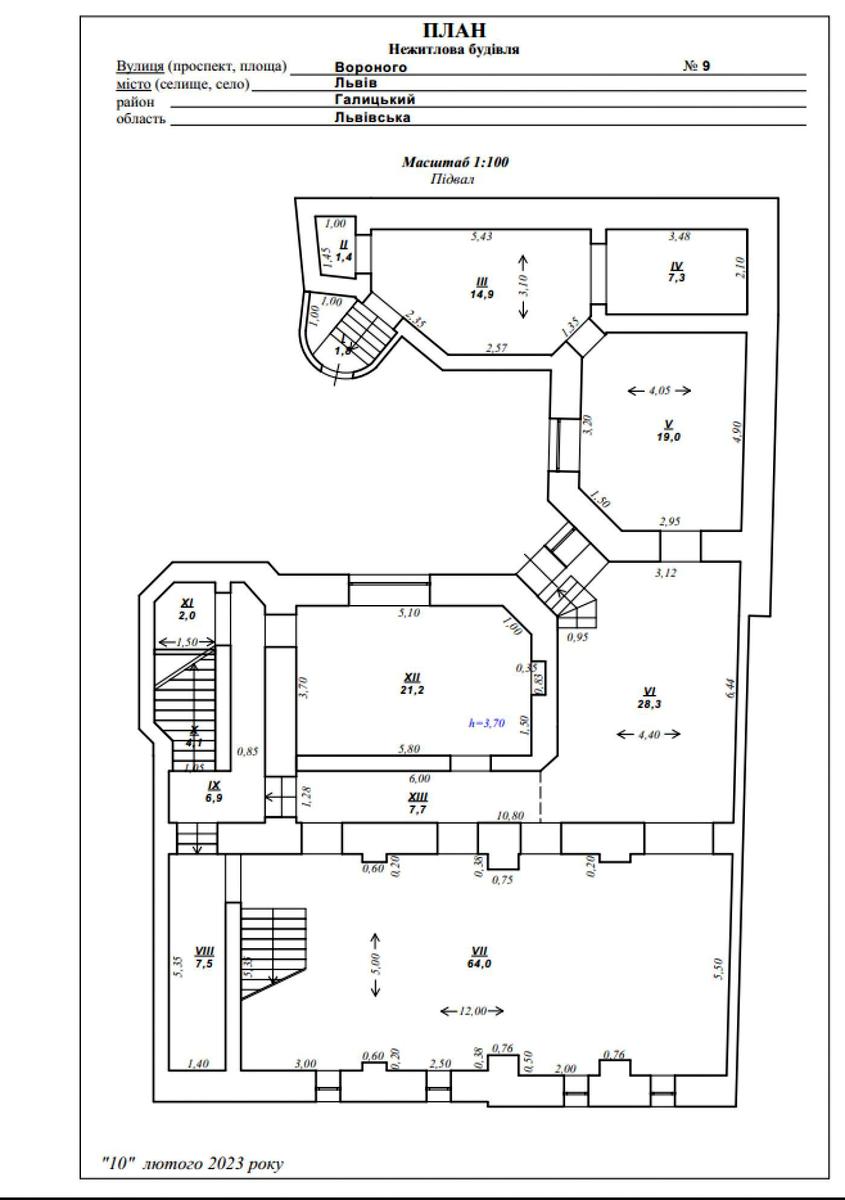
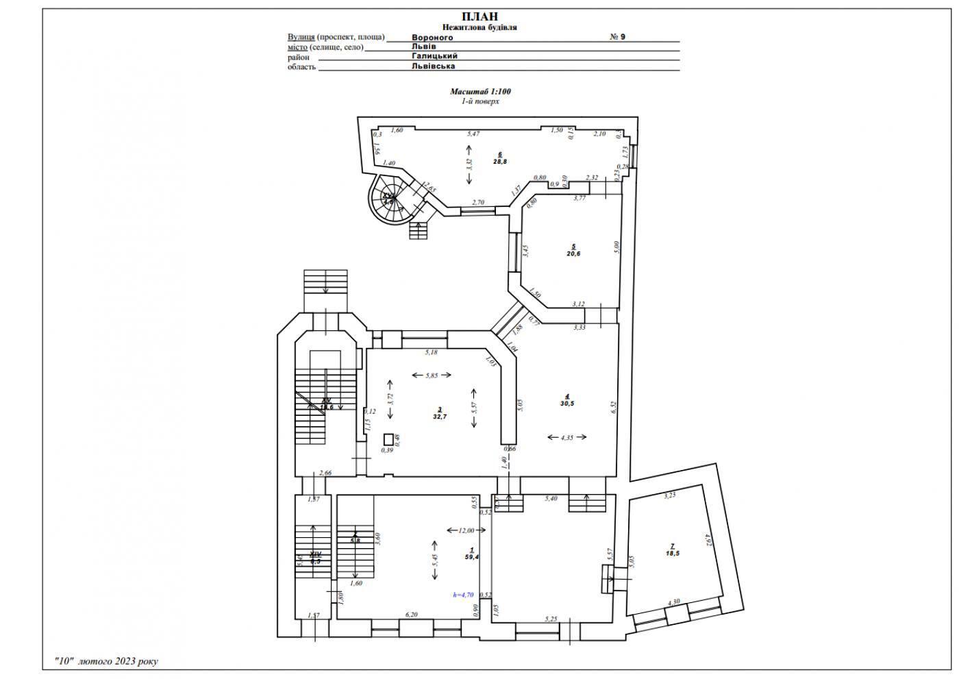
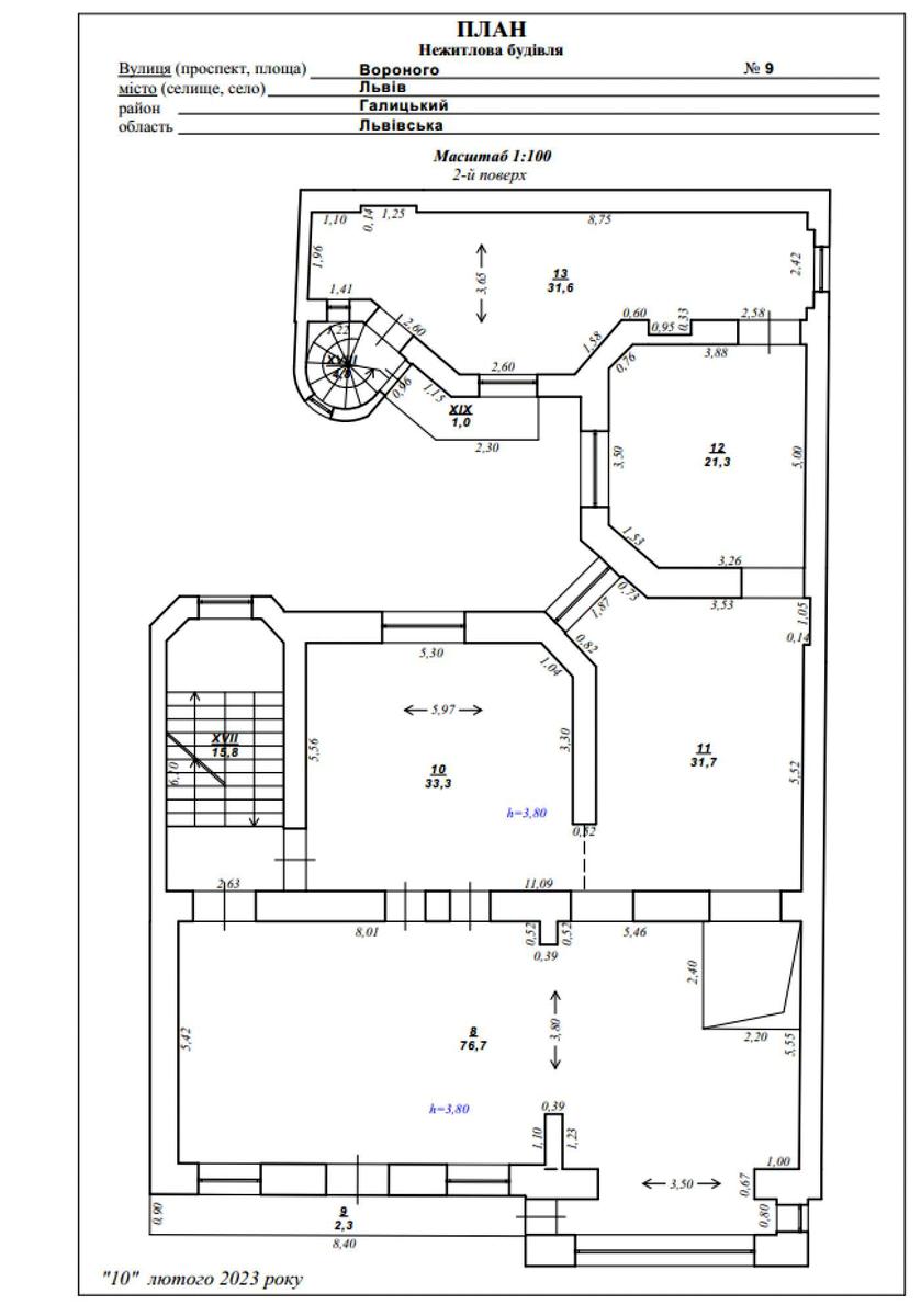
Загальна площа становить 1083,2 кв.м, будівля має 3 поверхи, мансардний та підвальний поверхи.

Характеристики по поверхах:

Підвальний поверх - 186,1 кв.м
1-й поверх - 226,2 кв.м
2-й поверх - 218,5 кв.м
3-й поверх - 220,0 кв.м
Мансардний поверх - 232,4 кв.м
Загальна площа - 1083,2 кв.м

Стан будівлі:

Виконана реконструкція
Зроблено залізобетонне перекриття на всіх поверхах
Частково поштукатурені стіни
Частково замінені вікна
Перекритий дах

Основні переваги:

Австрійська архітектура — цінність для інвесторів і представницьких бізнес-проєктів.
Ціла будівля у приватній власності (не частина, а весь об’єкт), що дозволяє реалізовувати будь-які масштабні проекти без сусідів і співвласників.
Розташування в історичному центрі Львова — поруч із головними туристичними, діловими та культурними об’єктами міста.
Великі площі на кожному поверсі та зручне планування для будь-якого типу бізнесу.
Підвальний рівень з високим потенціалом під ресторан, винний льох, спортзал чи склад.
Мансарда як додатковий простір для сучасного офісу чи житлових апартаментів.

Варіанти використання:

бізнес-центр, офісна будівля;
готель, апарт-готель чи хостел;
приватна клініка або медичний центр;
освітній заклад, креативний простір, галерея;
престижний житловий будинок у центрі Львова.

Локація: Галицький район, вул. Вороного — історична частина Львова з активним пішохідним і автомобільним трафіком, престижним оточенням та повною інфраструктурою.
Пропозиція від агентства нерухомості KURYLIV. Real Estate Agency.
Для додаткової інформації та перегляду звертайтеся за телефоном О973847О55 (Ігор Курилів) або пишіть у Viber / Telegram / WhatsApp.
Деталі
Об'єкт комерційної нерухомості, Клас A, Комплекс будівель, Готова будівля, Банківське приміщення, Офісне приміщення, Приміщення вільного призначення. У будівлі 3 поверхи. Будинок побудований в 1887 році. У приміщенні 6 кімнат або більше. Безбар'єрність: вхід у будинок на рівні землі. Комісія за послуги 5 %
KURYLIV. Real Estate Agency
Верифікований профіль
Сертифікат
АФНУ
Член ЛОР
5
Років досвіду
1
Рік на сайті
Активних оголошень 16
Ексклюзивних об'єктів 0
Рекламна активність 667
Останній візит на сайт вчора
Рекомендувати
Адреса
Вашу скаргу прийнято!
Оберіть спосіб підтвердження
Щоб вашу рекомендацію було зараховано, підтвердіть свою особистість
* Особисті дані не відображатимуться на сайті та слугуватимуть лише для підтвердження особистості.
Як верифікуватись через Дію?
Зчитайте QR-код сканером у застосунку Дія й підтвердьте авторизацію Дія.Підписом
QR-код буде дійсний ще 02:00
Як верифікуватись через Bankid?
Верифікація BankID відкриється у новому вікні. Якщо сторінка верифікації не відкрилася, вікно було заблоковане вашим браузером.
Щоб дозволити відкриття вікна, виконайте такі кроки:

1. Перевірте адресний рядок браузера на повідомлення про помилку або піктограму блокування. Натисніть на нього.
2. Якщо у вас встановлено блокувальник спливаючих вікон, тимчасово відключіть його для цього сайту.
3. Перевірте налаштування вашого браузера і переконайтеся, що блокування спливаючих вікон вимкнено або налаштовано на дозвіл відкриття цього вікна.

Якщо проблема залишається невирішеною, зверніться до нашої служби підтримки.
Як верифікуватись через Дію?
Верифікація Дія відкриється у новому вікні. Якщо сторінка верифікації не відкрилася, вікно було заблоковане вашим браузером.
Щоб дозволити відкриття вікна, виконайте такі кроки:

1. Перевірте адресний рядок браузера на повідомлення про помилку або піктограму блокування. Натисніть на нього.
2. Якщо у вас встановлено блокувальник спливаючих вікон, тимчасово відключіть його для цього сайту.
3. Перевірте налаштування вашого браузера і переконайтеся, що блокування спливаючих вікон вимкнено або налаштовано на дозвіл відкриття цього вікна.

Якщо проблема залишається невирішеною, зверніться до нашої служби підтримки.
Вітаємо!
Рекомендацію зараховано!
Незабаром рекомендація зʼявиться на сторінці рієлтора.
Рекомендацію не зараховано.
Ви вже залишали рекомендацію даному рієлтору.
В пропозиції є незбережені дані.