1
115 000 $
2 051  $/м²
56.07 / 30 / 12 м²
поверх 2 з 6
2 міс. тому
8 міс. тому
144 (сьогодні 1, вчора 2)
Опис
Продам 1-кім.кв-ру,ЖК по вул ген Чупринки 130 буд компанія Будремактив ZHK po vul hen Chuprynky 130 bud kompaniya Budremaktyv

Гарне розташування, поряд вся Iнфраструктура.
Квартира знаходиться на 2-му поверсі, 6-ти поверхового будинку.
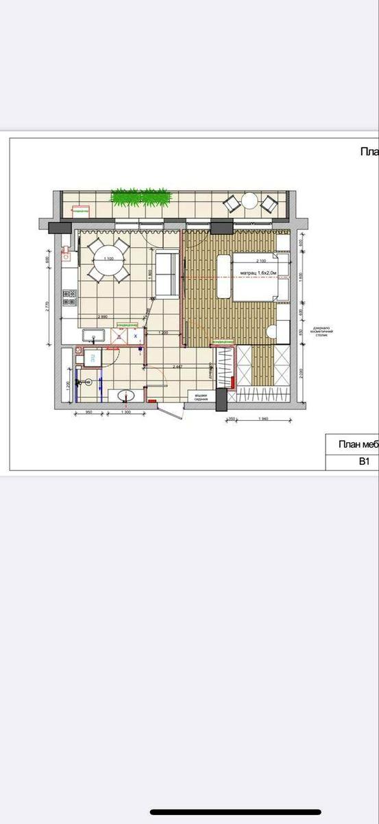
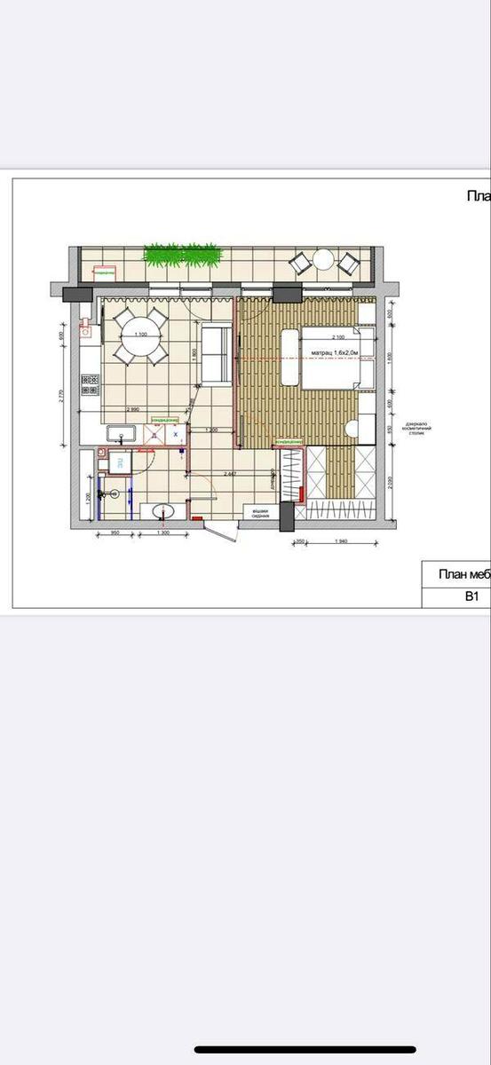
Загальна площа - 56.07 м.кв.,житлова - 30 м.кв., кухня - 12 м.кв.
Зроблено перепланування згідно дизайн.задумки (входить в подарунок) на фото вище можна детально розглянути план квартири,виведенні всі комунікації,встановлення котла,підігрів підлоги,елект. Завершене будівництво,будинок здається в експлуатацію в 2025р.,переуступка,0 цикл ,не кутова

Компанія "Квартира Нова" (Kvartira Nova) має можливість консультувати українською, англійською та рос мовами.

Не додзвонилися чи не має мережі? За номером є всі месенджери (Telegram, Viber, WhatsApp). Це зручний спосіб отримати відповіді на запитання у реальному часі.

Вартість квартири 115 тис. дол., агентські послуги 3,5%
Деталі
В квартирі 1 кімната. У квартирі є Підігрів підлоги, Ванна. Загальний стан квартири - Без ремонту. Комісія за послуги 3.5 %
У квартирі є
  • Підігрів підлоги
  • Ванна
Квартира Нова
Верифікований профіль
Platinum partner
6
Років досвіду
5
Верифікованих рекомендацій
5
Років на сайті
Активних оголошень 151
Ексклюзивних об'єктів 0
Рекламна активність 35329
Останній візит на сайт сьогодні
Рекомендувати
Історія зміни ціни
06.11.2025 - 1 000 $ 115 000 $
20.10.2025 + 2 000 $ 116 000 $
18.09.2025 - 6 500 $ 114 000 $
25.07.2025 120 500 $
Адреса
Вашу скаргу прийнято!
Оберіть спосіб підтвердження
Щоб вашу рекомендацію було зараховано, підтвердіть свою особистість
* Особисті дані не відображатимуться на сайті та слугуватимуть лише для підтвердження особистості.
Як верифікуватись через Дію?
Зчитайте QR-код сканером у застосунку Дія й підтвердьте авторизацію Дія.Підписом
QR-код буде дійсний ще 02:00
Як верифікуватись через Bankid?
Верифікація BankID відкриється у новому вікні. Якщо сторінка верифікації не відкрилася, вікно було заблоковане вашим браузером.
Щоб дозволити відкриття вікна, виконайте такі кроки:

1. Перевірте адресний рядок браузера на повідомлення про помилку або піктограму блокування. Натисніть на нього.
2. Якщо у вас встановлено блокувальник спливаючих вікон, тимчасово відключіть його для цього сайту.
3. Перевірте налаштування вашого браузера і переконайтеся, що блокування спливаючих вікон вимкнено або налаштовано на дозвіл відкриття цього вікна.

Якщо проблема залишається невирішеною, зверніться до нашої служби підтримки.
Як верифікуватись через Дію?
Верифікація Дія відкриється у новому вікні. Якщо сторінка верифікації не відкрилася, вікно було заблоковане вашим браузером.
Щоб дозволити відкриття вікна, виконайте такі кроки:

1. Перевірте адресний рядок браузера на повідомлення про помилку або піктограму блокування. Натисніть на нього.
2. Якщо у вас встановлено блокувальник спливаючих вікон, тимчасово відключіть його для цього сайту.
3. Перевірте налаштування вашого браузера і переконайтеся, що блокування спливаючих вікон вимкнено або налаштовано на дозвіл відкриття цього вікна.

Якщо проблема залишається невирішеною, зверніться до нашої служби підтримки.
Вітаємо!
Рекомендацію зараховано!
Незабаром рекомендація зʼявиться на сторінці рієлтора.
Рекомендацію не зараховано.
Ви вже залишали рекомендацію даному рієлтору.
В пропозиції є незбережені дані.