1
131 000 $
1 812  $/м²
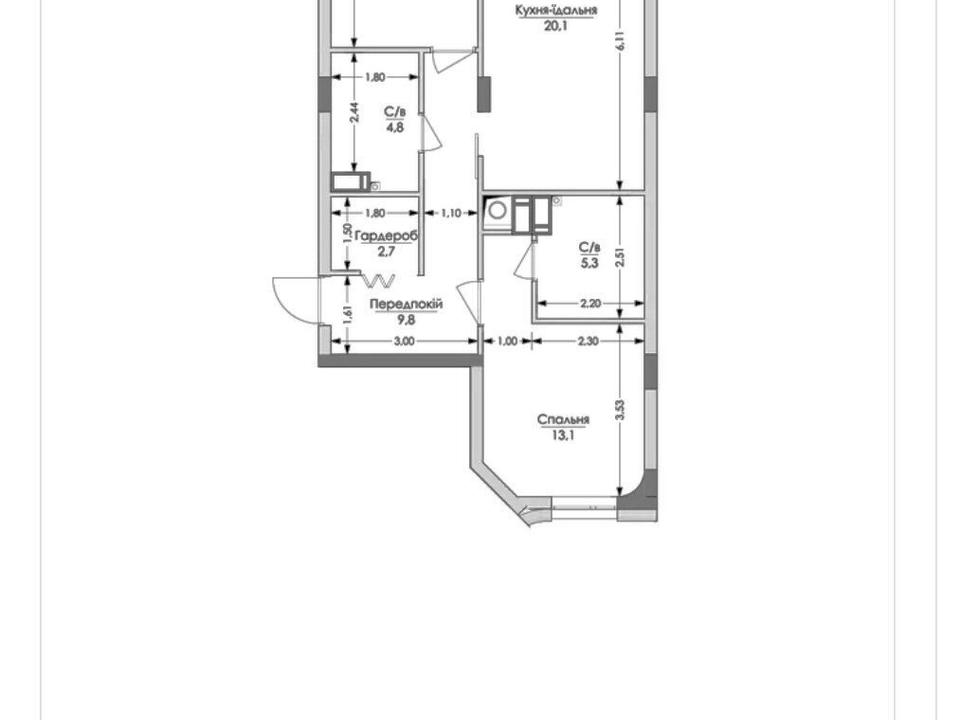
72.3 / 27.6 / 20.1 м²
поверх 2 з 7
Монолітно-каркасна
Спец. проект
сьогодні
5 міс. тому
305 (сьогодні 1, вчора 3)
Опис
Продається 2-кімнатна квартира Бізнес класу у Центрі Львова, в ЖК Lypynsky!
Адреса: Львів, вулиця Липинського, Шевченківський район

Тип будинку: Новобудова (введення будівлі в експлуатацію - 4 квартал 2026 року)
Назва ЖК: Lypynsky
Поверх: 2
Поверховість: 6
Загальна площа: 72.30 м²
Житлова площа: 27.60 м²
Площа кухні: 20.10 м²
Тип стін: Керамоблок
Клас житла: Бізнес
Кількість кімнат: 2
Планування: Роздільна
Cанвузол: Роздільний
Опалення: Індивідуальне газове (двоконтурний контел)
Ремонт: Штукатурка стін, стяжка підлоги, розводка сантехніки
Тип угоди: Договір переуступки

ОПИС
Продається Приваблива 2-кімнатна квартира у центрі Львова в ЖК Lypynsky (бізнес клас)!
Територія закрита для авто та сторонніх. Будівля з резервним живленням та підземним укриттям, плановий термін введення в експлуатацію - 4 квартал 2026 року!
В квартирі двоконтурний газовий котел, батареї опалення, металопластикові вікна, штукатурка стін, стяжка підлоги. В будівлі підземний паркінг з ліфтом, система відеонагляду, відеодомофон!
Поруч вся необхідна інфраструктура: Супермаркети, ТРЦ, Аптеки, Ринки, Школи, Садочки, Зупинки громадського транспорту, до оперного театру 10 хвилин пішої ходи.
Ідеальний варіант для комфортного проживання у Львові!

Для огляду та додаткової інформації телефонуйте за номером: [телефон приховано]Олег
Деталі
В квартирі 2 кімнати, Технологія будівництва - Монолітно-каркасна, Тип будинку - Спец. проект. Планування кімнат Роздільне. У квартирі є Ванна. Загальний стан квартири - Без ремонту. Працює без світла - вода, газ, опалення, інтернет, ліфт, резервне живлення квартири (акумулятори). Комісія за послуги 5 %
У квартирі є
  • Ванна
Shumilov Estate
Верифікований профіль
2
Роки досвіду
1
Рік на сайті
Активних оголошень 10
Ексклюзивних об'єктів 0
Рекламна активність 0
Останній візит на сайт сьогодні
Рекомендувати
Адреса
Вашу скаргу прийнято!
Оберіть спосіб підтвердження
Щоб вашу рекомендацію було зараховано, підтвердіть свою особистість
* Особисті дані не відображатимуться на сайті та слугуватимуть лише для підтвердження особистості.
Як верифікуватись через Дію?
Зчитайте QR-код сканером у застосунку Дія й підтвердьте авторизацію Дія.Підписом
QR-код буде дійсний ще 02:00
Як верифікуватись через Bankid?
Верифікація BankID відкриється у новому вікні. Якщо сторінка верифікації не відкрилася, вікно було заблоковане вашим браузером.
Щоб дозволити відкриття вікна, виконайте такі кроки:

1. Перевірте адресний рядок браузера на повідомлення про помилку або піктограму блокування. Натисніть на нього.
2. Якщо у вас встановлено блокувальник спливаючих вікон, тимчасово відключіть його для цього сайту.
3. Перевірте налаштування вашого браузера і переконайтеся, що блокування спливаючих вікон вимкнено або налаштовано на дозвіл відкриття цього вікна.

Якщо проблема залишається невирішеною, зверніться до нашої служби підтримки.
Як верифікуватись через Дію?
Верифікація Дія відкриється у новому вікні. Якщо сторінка верифікації не відкрилася, вікно було заблоковане вашим браузером.
Щоб дозволити відкриття вікна, виконайте такі кроки:

1. Перевірте адресний рядок браузера на повідомлення про помилку або піктограму блокування. Натисніть на нього.
2. Якщо у вас встановлено блокувальник спливаючих вікон, тимчасово відключіть його для цього сайту.
3. Перевірте налаштування вашого браузера і переконайтеся, що блокування спливаючих вікон вимкнено або налаштовано на дозвіл відкриття цього вікна.

Якщо проблема залишається невирішеною, зверніться до нашої служби підтримки.
Вітаємо!
Рекомендацію зараховано!
Незабаром рекомендація зʼявиться на сторінці рієлтора.
Рекомендацію не зараховано.
Ви вже залишали рекомендацію даному рієлтору.
В пропозиції є незбережені дані.