99 480 $
1 200
$/м²
Опис
БЕЗ КОМІСІЇ ДЛЯ ПОКУПЦЯ / Є-ОСЕЛЯ
ПРОДАЖ КВАРТИРИ З ВЛАСНИМ ПАТІО
0-ЦИКЛ
Адреса — місто Львів, вулиця Богдана Хмельницького, 207.
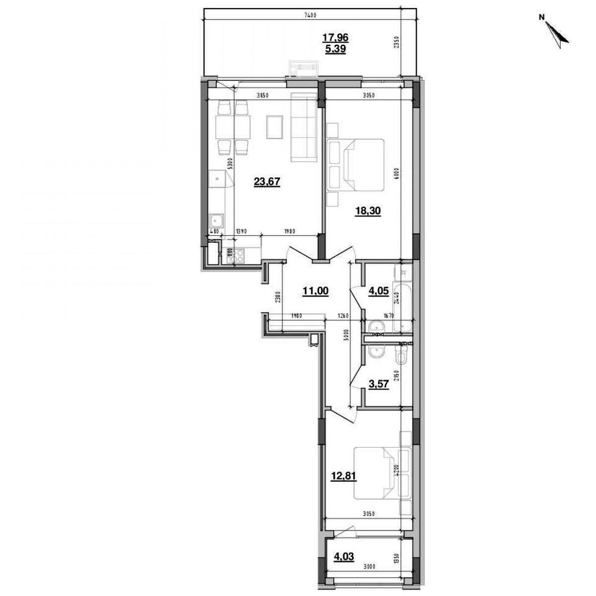
Кількість кімнат — дві.
Поверх —1 з 9.
Квартира в 0-циклі, тобто ще без ремонту.
Загальна площа — 82.9 м², житлова — 31.11 м², кухня — 23.67 м².
Опалення — будинкове.
Санвузол — один, роздільний.
Лоджія — одна.
Патіо — одне.
Будинок введено в експлуатацію в 2025.
Продаж із правом власності.
Є можливість придбати квартиру за державною програмою Є оселя.
Особливості даної квартири — вихід з кухні на власне подвірʼя (патіо). Для комплексу обрана малоповерхова забудова, яка не створюватиме дисонанс з архітектурою старого міста. Будинки виконані в мінімалістичному стилі з каскадною поверховістю, перепадами висоти поверхів та косими покрівлями. «ЖК Вежа» вважається інфраструктурним центром «Містечка Підзамче» де буде розташована власна школа, інші об'єкти для комфорту мешканців та висока оглядова вежа із загальним доступом. У ЖК передбачений гостьовий та наземний п'ятиповерховий паркінг.
Поруч з будинком: у власну інфраструктуру комплексу входять супермаркети, магазини, ресторани, кав'ярні, аптеки, відділення банків та інші сервіси для комфортного життя майбутніх мешканців. Також у районі новобудов є кілька продуктових магазинів, супермаркет «Фуршет», «АТБ» та ринок «Підзамче». Поруч дитячий садок №55, дошкільний центр №144 та №121. Для доросліших дітей школа №7, №20, трохи далі школа-гімназія «Галицька», школа №37 з поглибленою французькою, №8 з поглибленою німецькою та польська школа №24. 2 хвилини до спортивного залу «Прайд», 3 хвилини до фітнес-клубу «Позитив», 6 хвилин до легкоатлетичної секції Olympus Premium та 9 хвилин до фітнес-клубу Pride Elite Gym. Розташування в історичній частині Львова — парк Високий Замок, Фабрика Бачевського, Фабрика повидла та інші пам'ятники архітектури та історії розвитку міста. Паркові зони у пішому доступі — 700 метрів до парку Знесіння, 950 метрів до Скверу на Валах.
Ми надаємо повний цикл: девелопмент, дизайн проект, ремонт та подальший продаж, або професійне управління нерухомістю для задачі в оренду.
Код обʼєкта: 4595 (2)
ПРОДАЖ КВАРТИРИ З ВЛАСНИМ ПАТІО
0-ЦИКЛ
Адреса — місто Львів, вулиця Богдана Хмельницького, 207.
Кількість кімнат — дві.
Поверх —1 з 9.
Квартира в 0-циклі, тобто ще без ремонту.
Загальна площа — 82.9 м², житлова — 31.11 м², кухня — 23.67 м².
Опалення — будинкове.
Санвузол — один, роздільний.
Лоджія — одна.
Патіо — одне.
Будинок введено в експлуатацію в 2025.
Продаж із правом власності.
Є можливість придбати квартиру за державною програмою Є оселя.
Особливості даної квартири — вихід з кухні на власне подвірʼя (патіо). Для комплексу обрана малоповерхова забудова, яка не створюватиме дисонанс з архітектурою старого міста. Будинки виконані в мінімалістичному стилі з каскадною поверховістю, перепадами висоти поверхів та косими покрівлями. «ЖК Вежа» вважається інфраструктурним центром «Містечка Підзамче» де буде розташована власна школа, інші об'єкти для комфорту мешканців та висока оглядова вежа із загальним доступом. У ЖК передбачений гостьовий та наземний п'ятиповерховий паркінг.
Поруч з будинком: у власну інфраструктуру комплексу входять супермаркети, магазини, ресторани, кав'ярні, аптеки, відділення банків та інші сервіси для комфортного життя майбутніх мешканців. Також у районі новобудов є кілька продуктових магазинів, супермаркет «Фуршет», «АТБ» та ринок «Підзамче». Поруч дитячий садок №55, дошкільний центр №144 та №121. Для доросліших дітей школа №7, №20, трохи далі школа-гімназія «Галицька», школа №37 з поглибленою французькою, №8 з поглибленою німецькою та польська школа №24. 2 хвилини до спортивного залу «Прайд», 3 хвилини до фітнес-клубу «Позитив», 6 хвилин до легкоатлетичної секції Olympus Premium та 9 хвилин до фітнес-клубу Pride Elite Gym. Розташування в історичній частині Львова — парк Високий Замок, Фабрика Бачевського, Фабрика повидла та інші пам'ятники архітектури та історії розвитку міста. Паркові зони у пішому доступі — 700 метрів до парку Знесіння, 950 метрів до Скверу на Валах.
Ми надаємо повний цикл: девелопмент, дизайн проект, ремонт та подальший продаж, або професійне управління нерухомістю для задачі в оренду.
Код обʼєкта: 4595 (2)
Деталі
В квартирі 2 кімнати. Планування кімнат Роздільне. У квартирі є Ванна. Загальний стан квартири - Без ремонту. Власник погоджується продати по програмі єВідновлення. Без комісії
У квартирі є

| Активних оголошень | 24 |
| Ексклюзивних об'єктів | 1 |
| Рекламна активність | 560 |
| Останній візит на сайт | сьогодні |
Рекомендувати


















