55 000 $
1 309
$/м²
Джона Ленона вул., (Будинок 1)
Монолітно-каркасна
Новобудова
2015 рік побудови
3 тиж. тому
3 міс. тому
91 (сьогодні 0,
вчора 1)
Опис
м.Львів, вул. Джона Леннона
сучасний мікрорайон Щурата
ЖК бізнес класу Леннона Резидент
від забудовника resident development
1 черга будівництва
Продаж 1 кімнатної квартири
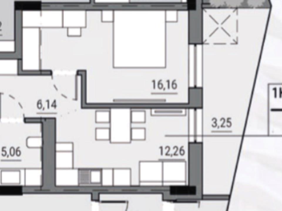
Площа квартири: 42.02 кв/м
Поверх: 13/16
Ціна: 53600$
Здача будинку запланована на третій квартал 2026 року
Продаж по переуступці
Переуступку оплачує власник
Будинок має зовнішні стіни з керамоблоку товщиною 250 мм, внутрішні стіни з газоблоку, будинок утеплений мінватою, сучасні підʼїзди, дизайнерські холи, підземний дворівневий та гостьовий паркінги
Квартира має правильне планування, некутова, сонячна південно-східна сторона
Опалення: два альтернативних джерела живлення (індивідуальне від тепломережі та збільшена потужність електроенергії яка заводиться в квартиру, що дозволяє встановити електричний котел)
Квартира має панорамний вигляд на місто і Високий Замок, а також простору терасу
Новий сучасний мікрорайон, який стрімко розбудовується. Це буде містечко в місті з повністю власною інфраструктурою, басейнами, тенісними кортами, дитячими і тренажерними майданчиками та багато іншого
сучасний мікрорайон Щурата
ЖК бізнес класу Леннона Резидент
від забудовника resident development
1 черга будівництва
Продаж 1 кімнатної квартири
Площа квартири: 42.02 кв/м
Поверх: 13/16
Ціна: 53600$
Здача будинку запланована на третій квартал 2026 року
Продаж по переуступці
Переуступку оплачує власник
Будинок має зовнішні стіни з керамоблоку товщиною 250 мм, внутрішні стіни з газоблоку, будинок утеплений мінватою, сучасні підʼїзди, дизайнерські холи, підземний дворівневий та гостьовий паркінги
Квартира має правильне планування, некутова, сонячна південно-східна сторона
Опалення: два альтернативних джерела живлення (індивідуальне від тепломережі та збільшена потужність електроенергії яка заводиться в квартиру, що дозволяє встановити електричний котел)
Квартира має панорамний вигляд на місто і Високий Замок, а також простору терасу
Новий сучасний мікрорайон, який стрімко розбудовується. Це буде містечко в місті з повністю власною інфраструктурою, басейнами, тенісними кортами, дитячими і тренажерними майданчиками та багато іншого
Деталі
В квартирі 1 кімната, висота стелі 2.72 метра, Технологія будівництва - Монолітно-каркасна, Тип будинку - Новобудова. Планування кімнат Роздільне. У квартирі є Ванна. Будинок побудований в 2015 році. Загальний стан квартири - Без ремонту. Комісія за послуги 5 %
У квартирі є

Кушнір Леся
Рієлтор
| Активних оголошень | 6 |
| Ексклюзивних об'єктів | 0 |
| Рекламна активність | 133 |
| Останній візит на сайт | 3 тижні тому |
Рекомендувати
Історія зміни ціни
| 16.02.2026 | + 1 400 $ | 55 000 $ |
| 30.01.2026 | 53 600 $ |
Адреса
ЖК Lennona Residents
будинків здано
10
рік заснування
2016
будинків в процесі
27











