107 770 $
1 364
$/м²
Промислова вул., (Будинок 4.1)
Монолітно-каркасна
Спец. проект
2026 рік побудови
2 міс. тому
2 міс. тому
11 (сьогодні 1,
вчора 0)
Опис
ПРОДАЖ 2К | ЖК FATHER | RIEL
Локація: вул. Промислова 50-52, Шевченківський р-н
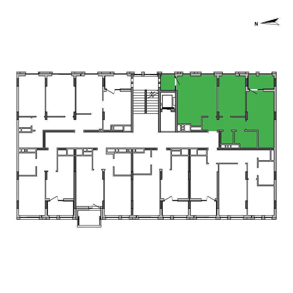
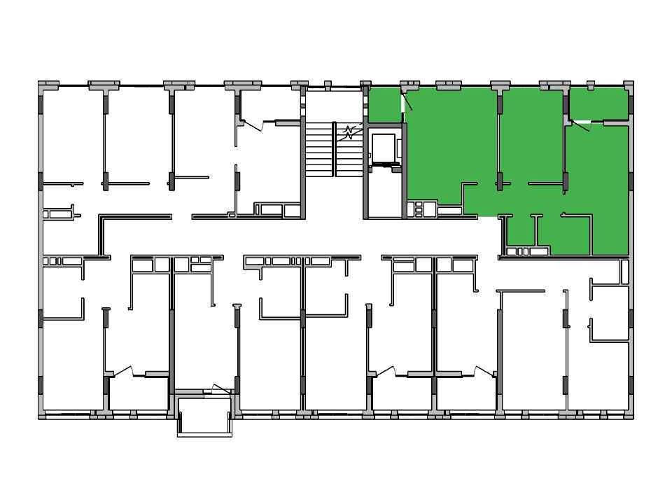
кімнат: 2
площа: 79/33/24.5
поверх: 4/7
опалення: індивідуальний (газовий котел)
секція:4.1
готовність: 3кв 2027р
Квартира в 0-циклі(тобто без ремонту)
У квартирі продумане планування, ізольовані спальні, простора кухня-вітальня, 2 санвузли та 2 засклених лоджії.
Є можливість придбати у розтермінування
Проєкт Father реалізується у форматі Rel Family Style створеному для сучасних молодих пар та сімей, які прагнуть жити в комфортному середовищі
Ця квартира - лише частина нашої колекції, в даному ЖК. Маємо ще як мінінмум 4 варіанти альтернатив. Телефонуйте, оглянемо декілька за один візит
Тел.[телефон приховано]
Локація: вул. Промислова 50-52, Шевченківський р-н
кімнат: 2
площа: 79/33/24.5
поверх: 4/7
опалення: індивідуальний (газовий котел)
секція:4.1
готовність: 3кв 2027р
Квартира в 0-циклі(тобто без ремонту)
У квартирі продумане планування, ізольовані спальні, простора кухня-вітальня, 2 санвузли та 2 засклених лоджії.
Є можливість придбати у розтермінування
Проєкт Father реалізується у форматі Rel Family Style створеному для сучасних молодих пар та сімей, які прагнуть жити в комфортному середовищі
Ця квартира - лише частина нашої колекції, в даному ЖК. Маємо ще як мінінмум 4 варіанти альтернатив. Телефонуйте, оглянемо декілька за один візит
Тел.[телефон приховано]
Деталі
В квартирі 2 кімнати, висота стелі 2.7 метра, Технологія будівництва - Монолітно-каркасна, Тип будинку - Спец. проект. Є газ. Є 2 балкони. Будинок побудований в 2026 році. Загальний стан квартири - Без ремонту. Безбар'єрність: пандус, дверні отвори в будинку шириною понад 0.9 м, паркувальні місця для осіб з інвалідністю, ліфт, пристосований до крісла колісного. Гаряча вода - газовий котел. Кількість санвузлів: 2. Тип кухні - кухня-студія. Кількість спален: 2. Комісія за послуги 3 %
Планування

Адреса
ЖК Father
будинків здано
87
рік заснування
2003
будинків в процесі
56












