ПРЕМІУМ Комісія 5%
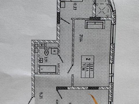
73.96 / 33.87 / 14 м²
поверх 6 з 7
5 днів тому
1 тиж. тому
20 (сьогодні 1, вчора 2)
Опис
Продаж двокімнатної квартири у новобудові по вул. Миколайчука.

Житловий комплекс від забудовника Галжитлобуд. Цегляне будівництво.
Планова здача 4 кв 2026 року.

Зручне планування квартири: дві ізольовані кімнати та простора кухня. Два санвузли та лоджія.
Дахова котельня.

Район, що активно розбудовується!
Телефонуйте!
Деталі
В квартирі 2 кімнати. Загальний стан квартири - Без ремонту. Комісія за послуги 5 %
АН  Христини Магировської
Верифікований профіль
PRO аккаунт
Професійний акаунт
3
Роки досвіду
2
Роки на сайті
Активних оголошень 22
Ексклюзивних об'єктів 0
Рекламна активність 5495
Останній візит на сайт 5 днів тому
Рекомендувати
Адреса
Вашу скаргу прийнято!
Оберіть спосіб підтвердження
Щоб вашу рекомендацію було зараховано, підтвердіть свою особистість
* Особисті дані не відображатимуться на сайті та слугуватимуть лише для підтвердження особистості.
Як верифікуватись через Дію?
Зчитайте QR-код сканером у застосунку Дія й підтвердьте авторизацію Дія.Підписом
QR-код буде дійсний ще 02:00
Як верифікуватись через Bankid?
Верифікація BankID відкриється у новому вікні. Якщо сторінка верифікації не відкрилася, вікно було заблоковане вашим браузером.
Щоб дозволити відкриття вікна, виконайте такі кроки:

1. Перевірте адресний рядок браузера на повідомлення про помилку або піктограму блокування. Натисніть на нього.
2. Якщо у вас встановлено блокувальник спливаючих вікон, тимчасово відключіть його для цього сайту.
3. Перевірте налаштування вашого браузера і переконайтеся, що блокування спливаючих вікон вимкнено або налаштовано на дозвіл відкриття цього вікна.

Якщо проблема залишається невирішеною, зверніться до нашої служби підтримки.
Як верифікуватись через Дію?
Верифікація Дія відкриється у новому вікні. Якщо сторінка верифікації не відкрилася, вікно було заблоковане вашим браузером.
Щоб дозволити відкриття вікна, виконайте такі кроки:

1. Перевірте адресний рядок браузера на повідомлення про помилку або піктограму блокування. Натисніть на нього.
2. Якщо у вас встановлено блокувальник спливаючих вікон, тимчасово відключіть його для цього сайту.
3. Перевірте налаштування вашого браузера і переконайтеся, що блокування спливаючих вікон вимкнено або налаштовано на дозвіл відкриття цього вікна.

Якщо проблема залишається невирішеною, зверніться до нашої служби підтримки.
Вітаємо!
Рекомендацію зараховано!
Незабаром рекомендація зʼявиться на сторінці рієлтора.
Рекомендацію не зараховано.
Ви вже залишали рекомендацію даному рієлтору.
В пропозиції є незбережені дані.