49.3 / 14.3 / 16.5 м²
поверх 9 з 18
Монолітно-каркасна
Спец. проект
2026 рік побудови
сьогодні
1 міс. тому
22 (сьогодні 0, вчора 3)
Опис
Код об'єкта: 380360. АН "Атланта".

Продаж 1-кім. квартири в ЖК Auroom Air по вул. Топольна в Шевченківському районі міста.

ЖК Auroom Air, це комплекс бізнес класу який вирізняється якістю будівництва ( цегляні стіни, якісне утеплення фасаду , 7-камерні вікна, дизайнерські холи, фінські ліфти) Також, в Auroom Air передбачено міжшкільний ресурсний центр на базі Ліцею №81.
Хороша інвестиція для життя та здачі в оренду.

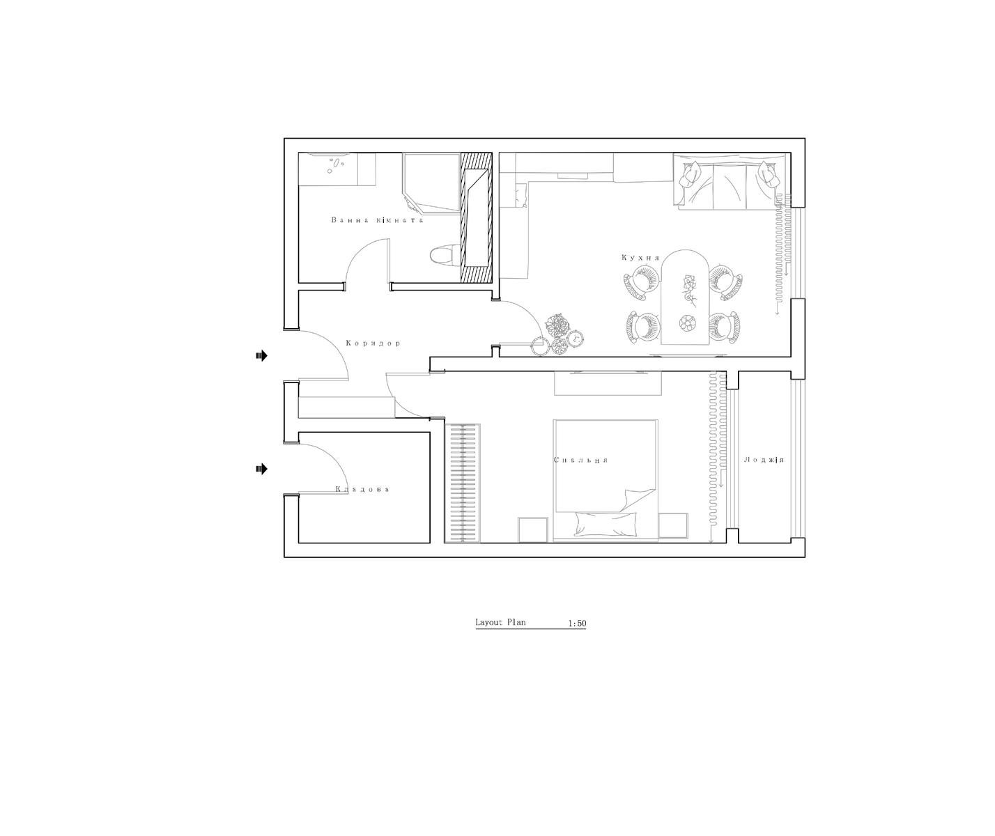
Квартира розташована на 9 поверсі з просторою кухнею, суміжним санвузлом та спальною кімнатою площею 14.5 м2 з виходом на лоджію. До квартири йде комора яку можна переобладнати під гардероб. Стан квартири після забудовників. Чистова стяжка, штукатурка. Aur oom Air забезпечено резервним живленням.

Чудова локація з розвиненою інфраструктурою, будинок межує з ТЦ Спартак, поруч безліч магазинів, аптек та продуктовий ринок. Садочки та школи в пішій доступності. Зручний доїзд до центру міста, великий вибір громадського транспорту.

За додатковою інформацією телефонуйте!
Деталі
В квартирі 1 кімната, висота стелі 3 метра, Технологія будівництва - Монолітно-каркасна, Тип будинку - Спец. проект. Немає газу. Є балкон. Будинок побудований в 2026 році. Загальний стан квартири - Без ремонту. Гаряча вода - електричний бойлер. Кількість санвузлів: 1. Тип кухні - кухня-студія. Кількість спален: 1. Комісія за послуги 5 %
Атланта Агенція Нерухомості
Верифікований профіль
PRO аккаунт
Професійний акаунт
Gold partner
6
Років досвіду
3
Роки на сайті
Активних оголошень 62
Ексклюзивних об'єктів 0
Рекламна активність 40628
Останній візит на сайт 3 дні тому
Рекомендувати
Адреса
Вашу скаргу прийнято!
Оберіть спосіб підтвердження
Щоб вашу рекомендацію було зараховано, підтвердіть свою особистість
* Особисті дані не відображатимуться на сайті та слугуватимуть лише для підтвердження особистості.
Як верифікуватись через Дію?
Зчитайте QR-код сканером у застосунку Дія й підтвердьте авторизацію Дія.Підписом
QR-код буде дійсний ще 02:00
Як верифікуватись через Bankid?
Верифікація BankID відкриється у новому вікні. Якщо сторінка верифікації не відкрилася, вікно було заблоковане вашим браузером.
Щоб дозволити відкриття вікна, виконайте такі кроки:

1. Перевірте адресний рядок браузера на повідомлення про помилку або піктограму блокування. Натисніть на нього.
2. Якщо у вас встановлено блокувальник спливаючих вікон, тимчасово відключіть його для цього сайту.
3. Перевірте налаштування вашого браузера і переконайтеся, що блокування спливаючих вікон вимкнено або налаштовано на дозвіл відкриття цього вікна.

Якщо проблема залишається невирішеною, зверніться до нашої служби підтримки.
Як верифікуватись через Дію?
Верифікація Дія відкриється у новому вікні. Якщо сторінка верифікації не відкрилася, вікно було заблоковане вашим браузером.
Щоб дозволити відкриття вікна, виконайте такі кроки:

1. Перевірте адресний рядок браузера на повідомлення про помилку або піктограму блокування. Натисніть на нього.
2. Якщо у вас встановлено блокувальник спливаючих вікон, тимчасово відключіть його для цього сайту.
3. Перевірте налаштування вашого браузера і переконайтеся, що блокування спливаючих вікон вимкнено або налаштовано на дозвіл відкриття цього вікна.

Якщо проблема залишається невирішеною, зверніться до нашої служби підтримки.
Вітаємо!
Рекомендацію зараховано!
Незабаром рекомендація зʼявиться на сторінці рієлтора.
Рекомендацію не зараховано.
Ви вже залишали рекомендацію даному рієлтору.
В пропозиції є незбережені дані.