82 000 $
1 206  $/м²
Рудненська вул. (Білогорська), (3 черга (будинок 1))
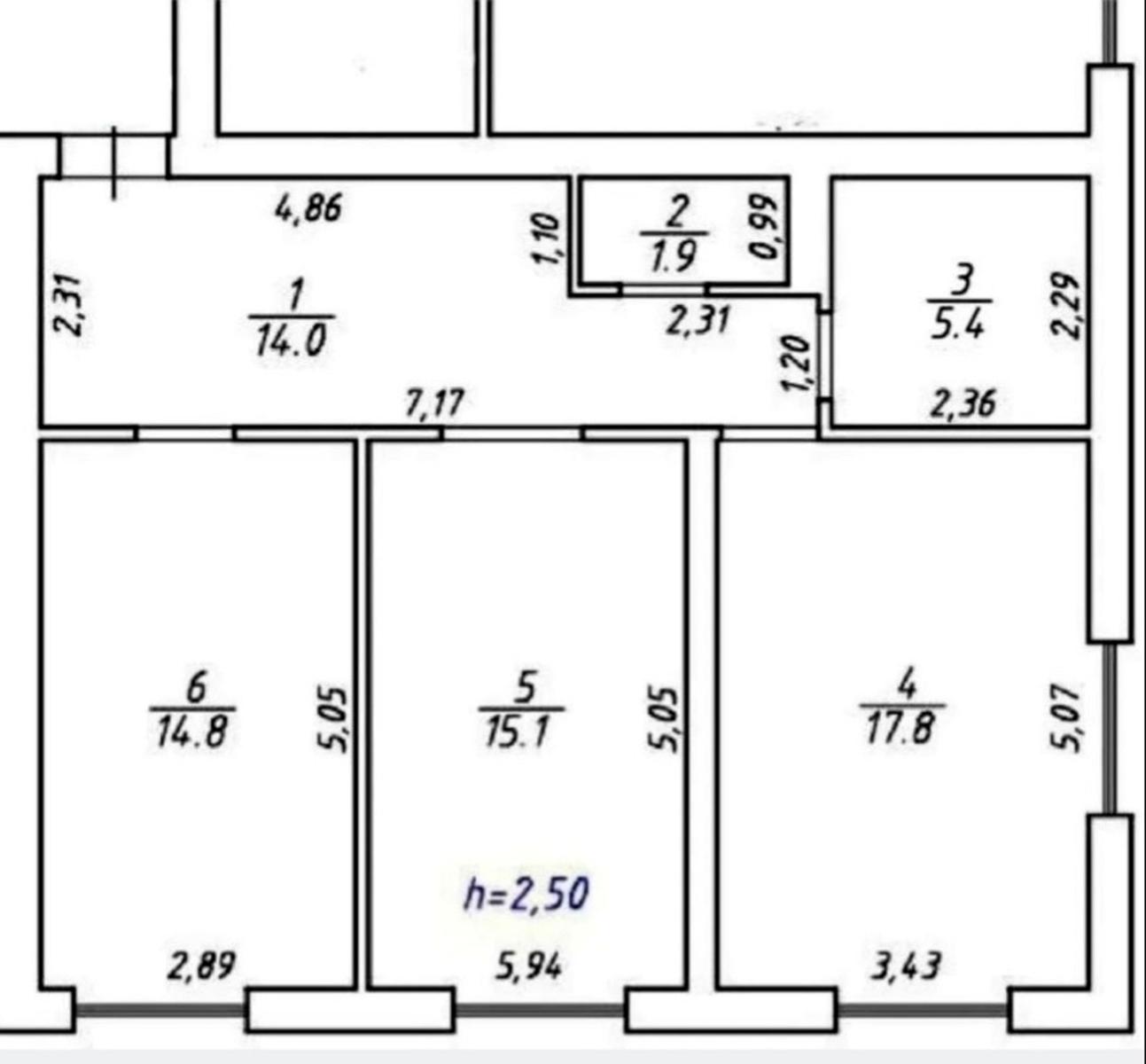
68 / 30 / 18 м²
поверх 11 з 12
Монолітно-каркасна
Спец. проект
2025 рік побудови
сьогодні
3 дні тому
4 (сьогодні 1, вчора 0)
Опис
Продаж 2-кімнатної квартири в ЖК Riel City

📍 вул. Рудненська, 8
🏢 11 поверх
📐 68 м²

Секція здана в експлуатацію, можна одразу оформляти право власності!

Світла та простора 2-кімнатна квартира з гарним плануванням. Оптимальний 11 поверх — комфортний для проживання та з хорошим видом.



Переваги:
✔ Сучасний житловий комплекс
✔ Будинок введений в експлуатацію
✔ Можливість одразу оформляти право власності
✔ Зручна локація, швидкий доїзд до центру
✔ Розвинена інфраструктура району

Квартира підійде як для власного проживання, так і для інвестиції.

📞 Деталі за телефоном / в приватні повідомлення.
Деталі
В квартирі 2 кімнати, Технологія будівництва - Монолітно-каркасна, Тип будинку - Спец. проект. Планування кімнат Роздільне. Будинок побудований в 2025 році. Загальний стан квартири - Без ремонту. Комісія за послуги 5 %
AVANGARD
Верифікований профіль
9
Місяців досвіду
8
Місяців на сайті
Активних оголошень 32
Ексклюзивних об'єктів 0
Рекламна активність 3000
Останній візит на сайт 2 дні тому
Рекомендувати
Адреса
будинків здано 87
рік заснування 2003
будинків в процесі 48
Вашу скаргу прийнято!
Оберіть спосіб підтвердження
Щоб вашу рекомендацію було зараховано, підтвердіть свою особистість
* Особисті дані не відображатимуться на сайті та слугуватимуть лише для підтвердження особистості.
Як верифікуватись через Дію?
Зчитайте QR-код сканером у застосунку Дія й підтвердьте авторизацію Дія.Підписом
QR-код буде дійсний ще 02:00
Як верифікуватись через Bankid?
Верифікація BankID відкриється у новому вікні. Якщо сторінка верифікації не відкрилася, вікно було заблоковане вашим браузером.
Щоб дозволити відкриття вікна, виконайте такі кроки:

1. Перевірте адресний рядок браузера на повідомлення про помилку або піктограму блокування. Натисніть на нього.
2. Якщо у вас встановлено блокувальник спливаючих вікон, тимчасово відключіть його для цього сайту.
3. Перевірте налаштування вашого браузера і переконайтеся, що блокування спливаючих вікон вимкнено або налаштовано на дозвіл відкриття цього вікна.

Якщо проблема залишається невирішеною, зверніться до нашої служби підтримки.
Як верифікуватись через Дію?
Верифікація Дія відкриється у новому вікні. Якщо сторінка верифікації не відкрилася, вікно було заблоковане вашим браузером.
Щоб дозволити відкриття вікна, виконайте такі кроки:

1. Перевірте адресний рядок браузера на повідомлення про помилку або піктограму блокування. Натисніть на нього.
2. Якщо у вас встановлено блокувальник спливаючих вікон, тимчасово відключіть його для цього сайту.
3. Перевірте налаштування вашого браузера і переконайтеся, що блокування спливаючих вікон вимкнено або налаштовано на дозвіл відкриття цього вікна.

Якщо проблема залишається невирішеною, зверніться до нашої служби підтримки.
Вітаємо!
Рекомендацію зараховано!
Незабаром рекомендація зʼявиться на сторінці рієлтора.
Рекомендацію не зараховано.
Ви вже залишали рекомендацію даному рієлтору.
В пропозиції є незбережені дані.