торгівельне приміщення, приміщення для надання послуг
407 м²
1 тиж. тому
1 тиж. тому
12 (сьогодні 0,
вчора 0)
Опис
Оренда комерційних площ у ТЦ, Одеса
Люстдорфська дорога, 114
Відкриття: жовтень 2025 року
Загальна характеристика об’єкта
• Торговий центр розташований у щільно заселеному, активному районі
• Якірні орендарі: супермаркет VARUS (~2 000 м²), аптека Фармація, Вина світу
• Загальна кількість приміщень: понад 10
• Поверховість: 3 рівні (1-й, 2-й, 3-й поверхи)
• Паркінг: 43 місця, включно з 5 місцями для маломобільних груп
• Графік роботи: щоденно з 07:00 до 23:40
Доступні площі
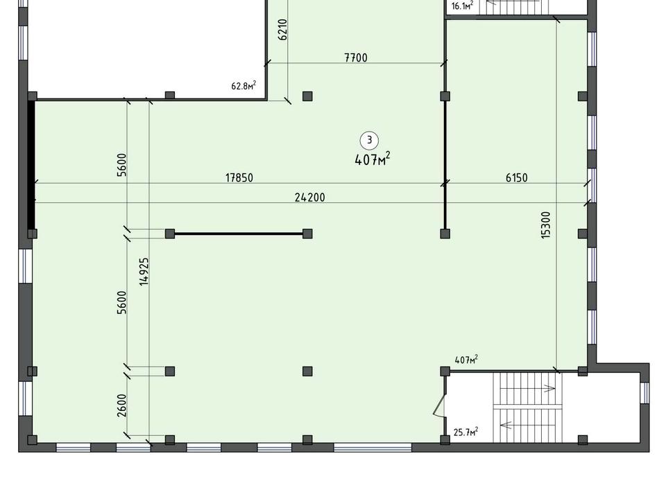
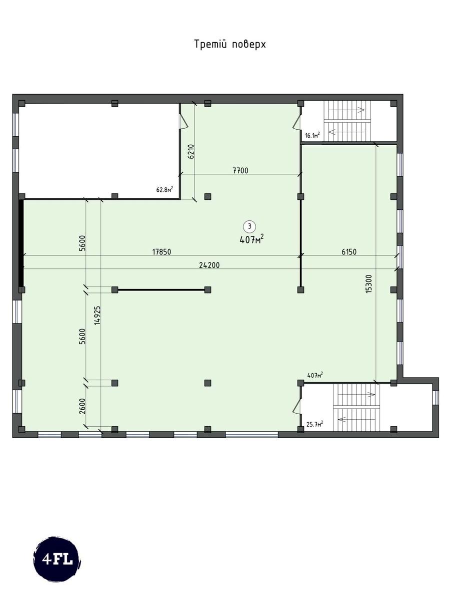
• 3-й поверх — 407 м²
Локація та оточення
• Поруч — житлові комплекси Новий Люстдорф, Continent, Via Roma, що формують стабільну зону проживання
• У безпосередній близькості: АТБ, SM Market, METRO, ROZETKA, ZEEKR, школа, дитячий садок
• Зручні заїзди з трьох вулиць, активний пішохідний та автомобільний трафік
Ключові переваги
• Потужний трафік завдяки супермаркету-якорю
• Платоспроможна аудиторія — мешканці з середнім та вищим рівнем доходу
• Якісне комерційне оточення
Деталі
Об'єкт комерційної нерухомості, Клас A, Частина будівлі, Приміщення для надання послуг, Торгівельне приміщення. Об'єкт на 1, 3 поверхах, У будівлі 3 поверхи
Публікація оголошень доступна для зареєстрованих користувачів в ролі “Рієлтор” чи “Власник“.
Якщо на вашій сторінці АН залишились оголошення, які ви хочете опублікувати, будь ласка, напишіть нам за ким із рієлторів вашого агентства їх закріпити.
Зареєструйте рієлторів АН на RIELTOR.UA, та привʼяжіть їхні акаунти до акаунту АН, щоб:
бачити сукупну статистику та витрати по оголошенням ваших рієлторів,
поповнювати баланс вашим рієлторам,
бачити в кабінеті всі оголошення, створені вашими рієлторами,
оголошення рієлторів були брендовані логотипом вашого АН