400 000 $
1 270  $/м²
приміщення вільного призначення
315 м²
1959 рік побудови
2 тиж. тому
4 міс. тому
9 (сьогодні 1, вчора 0)
Опис
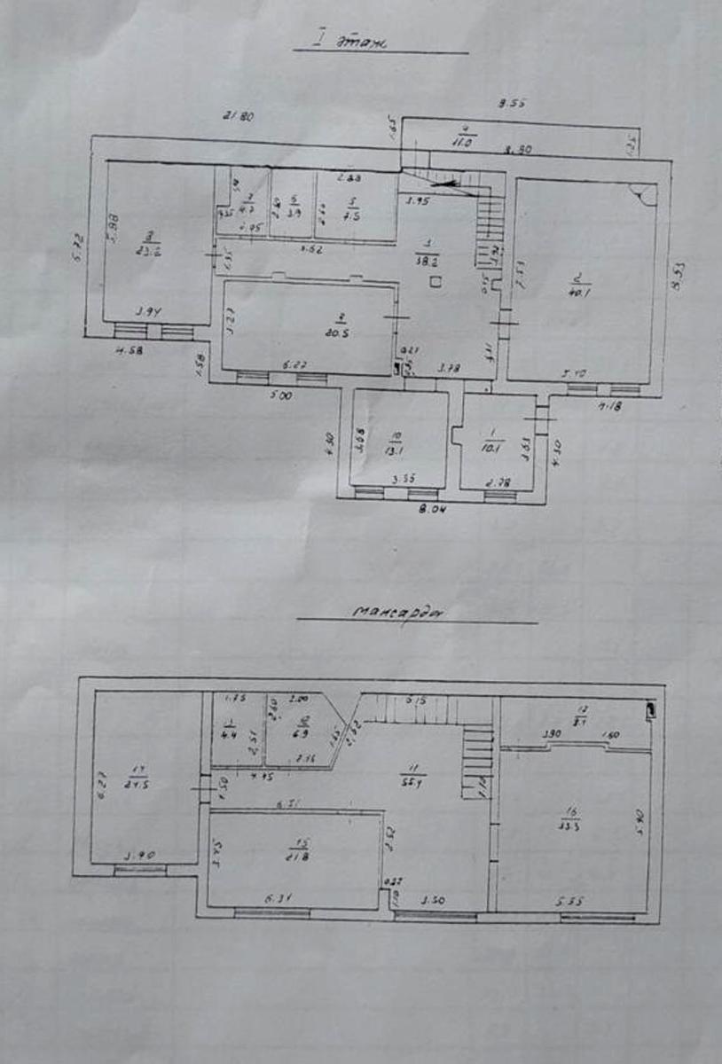
№2572 Предлагаем к продаже отдельно стоящее 2-х этажное офисное здание в р-не Французского бульвара.

Общая площадь 315 кв.м. Распланирован на 9 кабинетов. 2 сан узла. Выполнен капитальный ремонт. Дорогостоящая мебель. Есть действующий камин. Коммуникации заведены. Автономное отопление от 2-х контурного котла.

Располагается на участке, площадью 3,5 соток. Оборудована зона барбекю. Предусмотрены парковочный места внутри двора и перед зданием. Удобное расположение - два заезда.

Можно использовать под любой вид деятельности.
Деталі
Об'єкт комерційної нерухомості, Клас A, Окремо стояча будівля, Готова будівля, Приміщення вільного призначення. Об'єкт на 1 поверсі, У будівлі 2 поверхи. Будинок побудований в 1959 році. Комісія за послуги 5 %
Верифікований профіль
Silver partner
8
Років досвіду
8
Років на сайті
Активних оголошень 159
Ексклюзивних об'єктів 0
Рекламна активність 0
Останній візит на сайт вчора
Рекомендувати
Адреса
Вашу скаргу прийнято!
Оберіть спосіб підтвердження
Щоб вашу рекомендацію було зараховано, підтвердіть свою особистість
* Особисті дані не відображатимуться на сайті та слугуватимуть лише для підтвердження особистості.
Як верифікуватись через Дію?
Зчитайте QR-код сканером у застосунку Дія й підтвердьте авторизацію Дія.Підписом
QR-код буде дійсний ще 02:00
Як верифікуватись через Bankid?
Верифікація BankID відкриється у новому вікні. Якщо сторінка верифікації не відкрилася, вікно було заблоковане вашим браузером.
Щоб дозволити відкриття вікна, виконайте такі кроки:

1. Перевірте адресний рядок браузера на повідомлення про помилку або піктограму блокування. Натисніть на нього.
2. Якщо у вас встановлено блокувальник спливаючих вікон, тимчасово відключіть його для цього сайту.
3. Перевірте налаштування вашого браузера і переконайтеся, що блокування спливаючих вікон вимкнено або налаштовано на дозвіл відкриття цього вікна.

Якщо проблема залишається невирішеною, зверніться до нашої служби підтримки.
Як верифікуватись через Дію?
Верифікація Дія відкриється у новому вікні. Якщо сторінка верифікації не відкрилася, вікно було заблоковане вашим браузером.
Щоб дозволити відкриття вікна, виконайте такі кроки:

1. Перевірте адресний рядок браузера на повідомлення про помилку або піктограму блокування. Натисніть на нього.
2. Якщо у вас встановлено блокувальник спливаючих вікон, тимчасово відключіть його для цього сайту.
3. Перевірте налаштування вашого браузера і переконайтеся, що блокування спливаючих вікон вимкнено або налаштовано на дозвіл відкриття цього вікна.

Якщо проблема залишається невирішеною, зверніться до нашої служби підтримки.
Вітаємо!
Рекомендацію зараховано!
Незабаром рекомендація зʼявиться на сторінці рієлтора.
Рекомендацію не зараховано.
Ви вже залишали рекомендацію даному рієлтору.
В пропозиції є незбережені дані.