Фільтри
1 оголошення
1 оголошення
75 000 $
833 $/м²

Зарічна

БЕЗ КОМІСІЇ єОселя єВідновлення
90 / 43 / 24 м²
1 поверх
7 сот
3 кімнати
2024 рік побудови
2 міс. тому
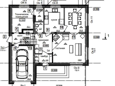
Продам будинок з газобетону, на 7 сотках землі. Документи всі в порядку. 12кВт(380V 3 фази). Фасад декоративна штукатурка. Металочерипиця, утеплення на 200мм. Двір вкладений тротуарною плиткою. Свердловина, зливна яма. В будинку три кімнати, гардиробна, ванна, і кухня гостина з виходом на терасу. Тех, приміщення. Тепла підлога, положений кахель у кухні- гостиній ваній та коридорі, розведена електрика по будинку. Я власник.
Тетяна
Тетяна
Власник
19 оголошень
Home Dev
33 000 $
413 $/м²

Залізничний провулок

Відеотур
80 / 50 / 7 м²
1 поверх
18 сот
3 кімнати
1 тиж. тому
Будинок 80 м.кв., усі комунікації, 3 кімнати, санвузол, кухня. Є газ, вода, двоконтурний котел. У будинку є камін. Земельна ділянка 18 соток, ділянка рівна, хозспоруди, льох, колодязь. Високі стелі, гарний стан. Будинок цегла/шлаколітой, Підгородне, гарна локація, все поруч. Звоните и поехали смотреть! С уважением Ваш риэлтор Алпеев Алексей Могу помочь Вам по всем нюансам купли, продажи, аренды и оформления недвижимости В т.ч. по всем Гос. Программы, Постановления №206, №214, №280, №719, Сертификаты на покупку жилья «Є-Відновлення» id: 802679
Рієлтор
PEREMOGA
135 000 $
409 $/м²

2-га Бузкова

330 / 100 / 10 м²
2 поверхи
12 сот
5 кімнат
1 тиж. тому
В продаже отличный для жизни дом в элитном поселке «Звездный» (Подгороднее).Площадь дома 330 кв.м.О доме:Добротный просторный дом, постройка из качественных материалов. Все коммуникации присутствуют.Общая площадь 330 кв.м.Планировка:Капитальный цокольный этаж – большой гараж на два авто, топочная, постирочная, баня, комната отдыха. Можно использовать как убежище.1 этаж – просторная прихожая, большая кухня, санузел, гостинная – столовая с действующим камином.2-й этаж – три комнаты, санузел.Участок 12 соток, приватизирован, кадастр, ухожен.Отличное месторасположение, тихая спокойная улица для комфортной жизни. Звоните! Светлана Звирко АН Peremoga
PRO аккаунт
Рієлтор
Сертифікований рієлтор СФНУ
Home Dev
230 000 $
801 $/м²

Перемога

Відеотур
287 / 100 / 20 м²
2 поверхи
11 сот
4 кімнати
1 міс. тому
Продам шикарний 2-поверховий будинок! Підгородне! Загальна площа 287,3 м. кв. Планування: 1 поверх - вітальня, 2 спальні, 2 з/в, кухня зимова + кухня-веранда літня (з опаленням) 2 поверх - більярдна, сауна, спальня та з/в Три види опалення - три котли: Газовий, електричний, твердопаливний -1 поверх. Підлога з підігрівом. Є генератор. Свердловина своя! Ділянка 15 соток (приватизована). Ландшафтний дизайн. На території шикарний сад, теплиця та басейн! Гараж на 2 машини. Автоматичні ворота. Відеоспостереження та сигналізація. Хороша інфраструктура Все поряд - школа, садок, магазини та маршрутки. 15 км від будинку до центру Дніпра (Міст-Сіті) Телефонуйте та поїхали дивитися! З повагою Ваш рієлт...
Рієлтор
125 000 $
463 $/м²

Коротка

єОселя єВідновлення
270 / 200 / 35 м²
2 поверхи
25 сот
6 кімнат і більше
1 тиж. тому
Продається добротний будинок в тихому місці ( тупикова вулиця) міста Підгородне. Будинок збудований з якісних матеріалів, які служитимуть вам і вашим онукам. Стіни утеплені 100 пінопластом, збудовані з цегли. МП вікна. Два поверхи плюс зручний повноцінний підвал, де розташована сауна, душові, санвузол і кімната відпочинку. В будинку є гараж і приміщення з газовим двоконтурним котлом. На першому поверсі велика вітальня з каміном, санвузол з душовою, простора кухня і спальня. На другому поверсі розташовано 3 спальні і гардеробна кімната. На ділянці є літня кухня з навісом, допоміжні приміщення, фруктовий сад, квітник та можливість садити городину. Навіть завести курочок, бо приватизована діл...
Рієлтор
Home Dev
70 000 $
753 $/м²

Новомосковська

93 / 75 / 15 м²
1 поверх
12 сот
3 кімнати
2 міс. тому
Продам 3к будинок у підгороднему + вул Новомосковська + будинок 2017 року + загальна площа 93м2 + планування кухня - вітальня та дві окремі спальні + також гардероб та топочна + житлова площа 75м2 + ділянка 12 соток + опалення автономне, електричне 380/16/5квт + водяна тепла підлога, та батареї у спальнях + мʼяка крівля + гарні сусіди + асфальтований підʼїзд + в 10 хвилинах пляж Ціна 70000$ Зараз будинок в оренді Розглянемо безготівковий розрахунок запрошую на перегляд
Рієлтор
PEREMOGA
140 000 $
933 $/м²

Яворницького

150 / 100 / 18 м²
2 поверхи
10 сот
5 кімнат
3 тиж. тому
У продажу сучасний, цегляний затишний будинок- повна чаша загальною площею 150м. кв. Повністтю автономний, енергонезалежний будинок у тихому місці, вдалині від інфраструктурних об'єктів у м. Підгородне. У двоповерховому будинку є чотири окремих спальні, просторна зала з каміном, кухня, їдальня, два сан. вузла на кожному поверсі, тех. приміщення для зберігання та гараж. Всі кімнати з затишними меблями та сучасною технікою. У дворі заїзд та паркування паркінг для двох машин, на ділянці 8,5 сот зроблено ландшафтний дизайн з газоном та гойдалками. Комфорт досягається зовнішним утепленням будинку, теплою підлогою, інверторними кондіціонерами. Сонячні панелі на даху, власна свердловина глибиною 18...
PRO аккаунт
Рієлтор
Сертифікований рієлтор СФНУ
Home Dev
18 500 $
411 $/м²

СТ Экспресс

Відеотур
45 / 30 / 5 м²
2 поверхи
4 сот
2 кімнати
4 дні тому
Продам дачу в СТ Экспресс г. Подгородное Общая площадь 45 м2 2 этажа Участок 4 сотки ровный (есть кадастровый номер) Состояние советское Отопления нет, вода не заведена Вокруг приличные соседи проживающие круглогодично Большой бонус - нет отключений электричества! Стоимость: 18 500 долл. Телефонуйте та поїхали дивитися! З повагою Ваш рієлтор Алпеєв Олексій
Рієлтор
PEREMOGA
38 000 $
543 $/м²

Мостова

70 / 40 / 8 м²
1 поверх
10 сот
3 кімнати
1 міс. тому
Продам 3-к будинок у Підгородньому! Рівна прямокутна ділянка 10 соток — ідеальна під забудову, сад або господарство. До річки Кільчень всього 200 м — тиха зелена зона поряд. 🏡 Про будинок: • 3 кімнати • нове автономне газове опалення • власна свердловина 🌿 На ділянці: • літня кухня • господарські споруди • зручний під’їзд Підходить під сертифікат. Звоните! Светлана Звирко АН Peremoga
PRO аккаунт
Рієлтор
Сертифікований рієлтор СФНУ
PEREMOGA
37 000 $
389 $/м²

Кобзарська

95 / 70 / 7 м²
1 поверх
13 сот
5 кімнат
1 міс. тому
🔑 Продам чепурненький будинок у Підгородному! Затишний та доглянутий будинок площею 95 м² розташований на просторій ділянці 13 соток у тихому районі вулиці Жовтневої (Чарівної). Ідеальний варіант для комфортного та спокійного життя. 🏡 Планування та переваги: • 5 окремих кімнат • простора вітальня • кухня • санвузол • погріб • господарські споруди • город із каркасом теплиці • гараж 🔥 Опалення: газовий котел 💧 Вода: свердловина 📍 Локація: до магазину та зупинки транспорту — лише 250 метрів. Будинок має все необхідне, щоб одразу заїхати і жити у зручному, тихому місці. Звоните! Светлана Звирко АН Peremoga
PRO аккаунт
Рієлтор
Сертифікований рієлтор СФНУ
120 000 $
638 $/м²

миру

188 / 65 / 20 м²
2 поверхи
15 сот
4 кімнати
4 дні тому
Терміновий продаж!! Це будинок, що збудувала Наталі. Два поверхи та цоколь, система термобудинок (термоізоляція та енергоефективність). Будинок монолітний, починаючи з самого підвалу до криши. Висота стелі 3.5м, у підвалі 4м. Кожний поверх 60м2. У будинку два окремих незалежних входа, як дві квартири зі всіма зручностями - ремонт, кухня, санвузол, дві кімнати. Будинок електричний, на вулиці є зарядна станція для електромобіля. А це літня кухня, яка знаходиться поруч з будинком. що збудувала Наталі. По факту це окрема квартира з ремонтом, кухнею та санвузлом. Над нею є ще дві кімнати з окремим входом. Поруч лз літнею кухнею знаходиться великий. глубокий, сухий та зручний льох. Картопля, овоч...
Рієлтор
PEREMOGA
37 500 $
354 $/м²

Широка

106 / 80 / 12 м²
1 поверх
9 сот
5 кімнат
1 міс. тому
Продам будинок в м. Підгородне, розташований в гарному місці (біля Епіцентру) Загальна площа будинку 106 кв.м Планування: три окремі (просторі) кімнати-спальні; велика зала 26,5кв.м; кімната-вітальня; кухня; котельня; санвузол. Стіни будинку - шлакобенот Дах - шифер (у гарному стані) Вікна - металопластик Будинок у житловому стані, потребує ремонту Велике подвір'я на якому розташовані: гараж, невеликий будиночок з двома кімнатми в одній пічка діюча та газова плита, друга кімната для відпочинку також є сарай, туалет, літній душ, Ділянка 9 соток зі своїм виходом до річки Зручне розташування, де поряд багато магазинів, громадський транспорт, поряд Епіцентр, річка Широкий фасад діля...
PRO аккаунт
Рієлтор
Сертифікований рієлтор СФНУ
Home Dev
30 000 $
698 $/м²

Сагайдачного

Відеотур
43 / 36 / 7 м²
1 поверх
20 сот
2 кімнати
1 тиж. тому
Пропоную в продажу будинок в м.Підгородне по вул.Сагайдачного(червона лінія) Загальною площею в 43м2 + літня кухня 36м2 2 окремі кімнати Є кімната , яку можна зробити під санвузол(санвузол на вулиці) Газове опалення Вода колодязь та колонка Гараж на одну машину + місце під авто в дворі Зручна транспортна розв'язка , біля будинку в 5м знаходиться зупинка громадського транспорту Розвинена інфаструктура,приватний дитячий садочок в 5хв , гімназія , магазини Можливість розрахунку по сертифікату Звоните и поехали смотреть! С уважением Ваш риэлтор Алпеев Алексей Могу помочь Вам по всем нюансам купли, продажи, аренды и оформления недвижимости В т.ч. по всем Гос. Программы, Постановления №2...
Рієлтор
Home Dev
65 000 $
694 $/м²

Першотравневий

Відеотур
94 / 47 / 10 м²
2 поверхи
4 сот
4 кімнати
2 тиж. тому
Будинок зі своїм берегом річки Кільчень | Підгородне Продається двоповерховий цегляний будинок біля води у тихому мальовничому місці м. Підгородне, недалеко від Дніпра. Головна перевага — власний берег річки Кільчень та прямий вихід до води. Характеристики будинку • Загальна площа: 93,6 м² • Житлова площа: 46,6 м² • 2 поверхи • Земельна ділянка: 4,26 сотки • Цегляний будинок Комунікації • Два види опалення: • газовий котел • твердопаливний котел • Вода — власний колодязь • Електрика Додатково • Цокольний поверх під будинком (може використовуватись як укриття або підвал) • Господарські будівлі • Літня кухня • Сад • Вихід до річки Локація м. Підгородне Поруч: • річка Кі...
Рієлтор
PEREMOGA
165 000 $
786 $/м²

Смарагдова

210 / 120 / 30 м²
2 поверхи
20 сот
4 кімнати
1 міс. тому
Продам будинок - мрію, який знаходиться в м. Підгородньому на затишній вулиці, всього в 5 хвилинах від Дніпра. Автоматичні ворота відкривають Вам двір з земельною ділянкою площею 20 соток та двоповерховим будинком площею 210 кв.м. У дворі можна вільно припаркувати чотири автомобіля. По всьому периметру ландшафтний дизайн з автоматичним поливом, за яким ретельно дбають професійні фахівці. Охайна зелений газон, ялинки, сосни, берізки, фруктові дерева, спів птахів та тиша навкруги дають можливість насолоджуватись часом з сім’єю та друзями круглий рік. Якщо говорити про будинок – то, це мрія багатьох людей: все продумано до дрібниць, ззовні утеплений, вкритий мармуровою крихтою, утеплений дах, з...
PRO аккаунт
Рієлтор
Сертифікований рієлтор СФНУ
PEREMOGA
32 000 $
485 $/м²

Криворізька

66 / 42 / 7 м²
1 поверх
10 сот
4 кімнати
1988 рік побудови
1 тиж. тому
Продам будинок м. Підгородне, вул. Криворізька 3. Будинок з шлакоблоку 1988 року побудови. Загальною площею 66 м.кв. Сплановано в дві роздільні кімнати, три прохідні, кухня, санвузол, веранда. Ділянка 10 соток (кадастровий номер) Будинок в жилому стані, але потребує ремонту. Дах шиферний, перекриття дерев'яні. Вікна дерев'яні. У будинку є всі комунікації, електрика, газ, вода. Опалення газовий котел і є пічне, підігрів води бойлер. Ділянка рівна та доглянута по фасаду 20,8м. На ділянці є споруди господарського призначення, альтанка. Місце для трьох авто. Звоните! Светлана Звирко АН Peremoga
PRO аккаунт
Рієлтор
Сертифікований рієлтор СФНУ
110 000 $
1 100 $/м²

Широка

100 / 55 / 10 м²
1 поверх
10 сот
3 кімнати
3 дні тому
Продам дом 100 м.кв из крымского камня обложен декоративным кирпичом . В дом заведен свет, газ, вода. В доме три отдельные комнаты, кухня, туалет, ванная. Состояние хорошее. Участок 10 соток, приватизирован. Двор широкий, есть заезд под несколько авто. На территории двора расположен небольшой домик, газифицирован, есть хоз. постройки. Все ухоженно. Дом расположен в хорошем месте вся инфраструктура в шаговой доступности. Документы в порядке. Торг уместен.
Рієлтор
Home Dev
70 000 $
753 $/м²

Зразкова

єВідновлення
93 / 22 / 51 м²
1 поверх
12 сот
3 кімнати
2 тиж. тому
+ будинок 2017 року + загальна площа 93м2 + планування кухня - вітальня та дві окремі спальні + також гардероб та топочна + ділянка 12 соток + опалення автономне, електричне 380/16/5квт + водяна тепла підлога, та батареї у спальнях + мʼяка крівля + гарні сусіди + асфальтований підʼїзд + в 10 хвилинах пляж Зараз будинок в оренді Ціна 70 000 $ Розглянемо безготівковий розрахунок Телефонуйте та поїхали дивитися! З повагою Ваш рієлтор Алпеєв Олексій
Рієлтор
Home Dev
17 900 $
448 $/м²

Довженка

Відеотур
40 / 30 / 6 м²
1 поверх
12 сот
2 кімнати
4 дні тому
Для тих, хто планує будувати собі будинок є прекрасна пропозиція. У місті Підгородне на доглянутій ділянці десять соток невеликий будинок дозволяє вам жити в ньому та и будувати новий. Будинок знаходиться в 550 м від вулиці Шосейна, в районі вул. Геологів, де є магазини та зупинки транспорту. Сам будинок складається із двох кімнат, кухні та комірчини, яка може перетворитись у санвузол. Опалення газом. У дворі дві свердловини із питною водою, септик. Бонус будинку, споруди, які вам стають в пригоді навіть при новому будинку: це капітальний гараж, літня кухня з газом, погріб та сауна на дровах. Телефонуйте та поїхали дивитися! З повагою Ваш рієлтор Алпеєв Олексій id: 695464
Рієлтор
Home Dev
82 000 $
745 $/м²

наб. 2-А

Відеотур
110 / 49 / 29 м²
1 поверх
10 сот
3 кімнати
2 тиж. тому
Продам просторный , светлый , очень теплый дом! + высокий цоколь + добротные шлаколитые стены + крыша утепления на ( зимой тепло , летом проходно) + в строительстве дома использовали только качественные и экологически чистые материалы + дом строили для себя + продуманно все до мелочей + экономное электро отопление + облагороженный участок Телефонуйте та поїхали дивитися! З повагою Ваш рієлтор Алпеєв Олексій id: 714349
Рієлтор