120 000 грн/міс
142  грн/м²
БЕЗ КОМІСІЇ Огнівка
торгівельне приміщення, приміщення вільного призначення, приміщення для надання послуг, офісне приміщення
847 м²
вчора
5 міс. тому
47 (сьогодні 0, вчора 0)
Опис
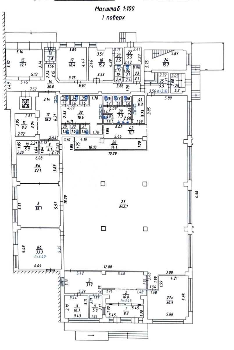
Пропонується офісне приміщення площею 847 м² ідеальний варіант для розміщення IT-компанії, кол-центру, навчального центру, спортзалу, представництва чи великого офісу.

Основні характеристики:

Загальна площа: 847 м²

Зручне планування можливість зонування під потреби орендаря

Сучасні інженерні комунікації

Система опалення, кондиціювання та вентиляції

Власний генератор безперебійна робота навіть під час відключень електроенергії

Окремий вхід, місце для паркування
Адреса: м. Полтава, вул. Колективна, 10

Простір, який створений для ефективної роботи вашої команди!

Деталі та перегляд за телефоном: [телефон приховано]
Згорнути
Помешкання: Двері шириною понад 90 см • Вбиральня для людей з інвалідністю • Коридорний простір понад 1,8 м
Вхід в будинок: Пандус • Вхід шириною понад 90 см • Тактильна табличка зі шрифтом Брайля
Характеристика будівлі: стан: нормальний • фасадне приміщення • частина будівлі
Характеристика приміщення: висота стелі, м: 3.2 • утеплення: зовнішнє • вільне (open space) • кабінетне
Опалення: автономна котельня • індивідуальне газове • індивідуальне електричне
Підігрів води: бойлер
Приміщення: санвузол: в приміщенні • кухня: в приміщенні • кімната для відпочинку • котельня / бойлерна • комора • гардероб • хол • переговорна
Обладнання • меблі • зручності: обідня зона • електрична плита • мікрохвильова піч • шафа-гардероб • Вбудована кухня • диван • холодильник • кондиціонер • електрика • газ • інтернет
Коли немає світла: є інтернет • є мобільний зв'язок • є водопостачання • працює опалення • є резервне живлення • є газ
На території є: стоянка для автівок: відкрита
Деталі
Об'єкт комерційної нерухомості, Частина будівлі, Офісне приміщення, Приміщення для надання послуг, Приміщення вільного призначення, Торгівельне приміщення. Об'єкт на 1 поверсі, У будівлі 2 поверхи. Приміщення вільного планування. Безбар'єрність: пандус, дверні отвори в будинку шириною понад 0.9 м. Без комісії
FLATPRIME
Верифікований профіль
7
Місяців досвіду
7
Місяців на сайті
Активних оголошень 5
Ексклюзивних об'єктів 0
Рекламна активність 3661
Останній візит на сайт вчора
Рекомендувати
Адреса
Вашу скаргу прийнято!
Оберіть спосіб підтвердження
Щоб вашу рекомендацію було зараховано, підтвердіть свою особистість
* Особисті дані не відображатимуться на сайті та слугуватимуть лише для підтвердження особистості.
Як верифікуватись через Дію?
Зчитайте QR-код сканером у застосунку Дія й підтвердьте авторизацію Дія.Підписом
QR-код буде дійсний ще 02:00
Як верифікуватись через Bankid?
Верифікація BankID відкриється у новому вікні. Якщо сторінка верифікації не відкрилася, вікно було заблоковане вашим браузером.
Щоб дозволити відкриття вікна, виконайте такі кроки:

1. Перевірте адресний рядок браузера на повідомлення про помилку або піктограму блокування. Натисніть на нього.
2. Якщо у вас встановлено блокувальник спливаючих вікон, тимчасово відключіть його для цього сайту.
3. Перевірте налаштування вашого браузера і переконайтеся, що блокування спливаючих вікон вимкнено або налаштовано на дозвіл відкриття цього вікна.

Якщо проблема залишається невирішеною, зверніться до нашої служби підтримки.
Як верифікуватись через Дію?
Верифікація Дія відкриється у новому вікні. Якщо сторінка верифікації не відкрилася, вікно було заблоковане вашим браузером.
Щоб дозволити відкриття вікна, виконайте такі кроки:

1. Перевірте адресний рядок браузера на повідомлення про помилку або піктограму блокування. Натисніть на нього.
2. Якщо у вас встановлено блокувальник спливаючих вікон, тимчасово відключіть його для цього сайту.
3. Перевірте налаштування вашого браузера і переконайтеся, що блокування спливаючих вікон вимкнено або налаштовано на дозвіл відкриття цього вікна.

Якщо проблема залишається невирішеною, зверніться до нашої служби підтримки.
Вітаємо!
Рекомендацію зараховано!
Незабаром рекомендація зʼявиться на сторінці рієлтора.
Рекомендацію не зараховано.
Ви вже залишали рекомендацію даному рієлтору.
В пропозиції є незбережені дані.