3
90 000 $
744  $/м²
Комісія 4% ПЕРЕУСТУПКА ЖК Комфорт
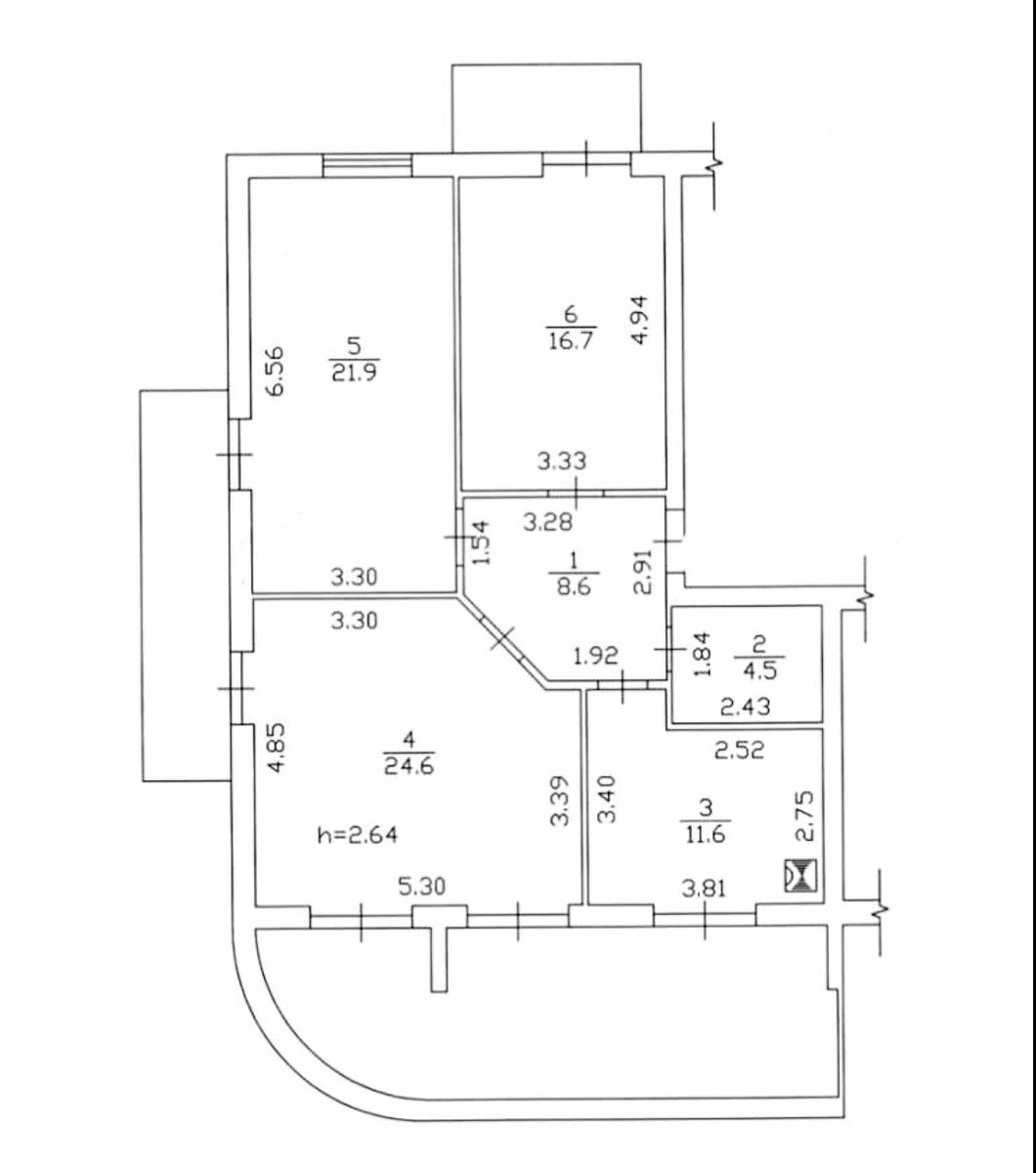
121 / 63 / 12 м²
поверх 6 з 8
Блочна
Спец. проект
2023 рік побудови
2 тиж. тому
6 міс. тому
67 (сьогодні 0, вчора 0)
Опис
Ваша мрія про простору квартиру в центрі Полтави здійснилася!

Шукаєте ідеальне житло для родини? Ця 3-кімнатна квартира в новобудові 2023 року площею 121 м2 створена, щоб дарувати відчуття свободи, затишку та комфорту.

Уявіть: три окремі світлі кімнати (25, 22 і 17 м2), простора кухня, яку можна збільшити до 20 м2, величезна лоджія і два балкони для ранкової кави чи вечірнього відпочинку. А з панорамних вікон 5-го поверху відкривається неймовірний вид на місто!

Завдяки індивідуальному опаленню у квартирі завжди буде саме той мікроклімат, який вам потрібен. А стан від забудовника – це справжній чистий аркуш: ви зможете створити дизайн на свій смак і втілити найсміливіші ідеї.

Це більше, ніж просто квартира – це ексклюзивне планування за розумною ціною у серці Полтави.

Подібні варіанти довго не чекають! Телефонуйте вже сьогодні – і ми допоможемо вам зробити перший крок до нового життя у власній квартирі мрії.

Умови співпраці:
Послуги АН від 2-6%, залежно від обраного пакета.

Лояльність.

1. Для наших захисників ЗСУ, ТРО, АТО — 20% знижка на послуги АН
2. Для ВПО — 15% знижка на послуги АН
3. Повторна купівля через наше АН - 15% знижка на послуги АН
4. Власник-покупець - 20% знижка на послуги АН
Деталі
В квартирі 3 кімнати, висота стелі 2.7 метра, Технологія будівництва - Блочна, Тип будинку - Спец. проект. Планування кімнат Роздільне. Є газ. Є 3 балкони. Будинок побудований в 2023 році. Загальний стан квартири - Без ремонту. Безбар'єрність: дверні отвори в будинку шириною понад 0.9 м, паркувальні місця для осіб з інвалідністю. Гаряча вода - газовий котел. Кількість санвузлів: 1. Працює без світла - вода, газ. Тип кухні - окрема кухня. Кількість спален: 2. Комісія за послуги 4 %
Дім24
Верифікований профіль
Сертифікат
АФНУ
4
Роки досвіду
5
Років на сайті
Активних оголошень 11
Ексклюзивних об'єктів 0
Рекламна активність 0
Останній візит на сайт сьогодні
Рекомендувати
Планування

Історія зміни ціни
05.03.2026 - 2 000 $ 90 000 $
02.10.2025 92 000 $
Адреса
Вашу скаргу прийнято!
Оберіть спосіб підтвердження
Щоб вашу рекомендацію було зараховано, підтвердіть свою особистість
* Особисті дані не відображатимуться на сайті та слугуватимуть лише для підтвердження особистості.
Як верифікуватись через Дію?
Зчитайте QR-код сканером у застосунку Дія й підтвердьте авторизацію Дія.Підписом
QR-код буде дійсний ще 02:00
Як верифікуватись через Bankid?
Верифікація BankID відкриється у новому вікні. Якщо сторінка верифікації не відкрилася, вікно було заблоковане вашим браузером.
Щоб дозволити відкриття вікна, виконайте такі кроки:

1. Перевірте адресний рядок браузера на повідомлення про помилку або піктограму блокування. Натисніть на нього.
2. Якщо у вас встановлено блокувальник спливаючих вікон, тимчасово відключіть його для цього сайту.
3. Перевірте налаштування вашого браузера і переконайтеся, що блокування спливаючих вікон вимкнено або налаштовано на дозвіл відкриття цього вікна.

Якщо проблема залишається невирішеною, зверніться до нашої служби підтримки.
Як верифікуватись через Дію?
Верифікація Дія відкриється у новому вікні. Якщо сторінка верифікації не відкрилася, вікно було заблоковане вашим браузером.
Щоб дозволити відкриття вікна, виконайте такі кроки:

1. Перевірте адресний рядок браузера на повідомлення про помилку або піктограму блокування. Натисніть на нього.
2. Якщо у вас встановлено блокувальник спливаючих вікон, тимчасово відключіть його для цього сайту.
3. Перевірте налаштування вашого браузера і переконайтеся, що блокування спливаючих вікон вимкнено або налаштовано на дозвіл відкриття цього вікна.

Якщо проблема залишається невирішеною, зверніться до нашої служби підтримки.
Вітаємо!
Рекомендацію зараховано!
Незабаром рекомендація зʼявиться на сторінці рієлтора.
Рекомендацію не зараховано.
Ви вже залишали рекомендацію даному рієлтору.
В пропозиції є незбережені дані.